1/6
UrbanScape
关注

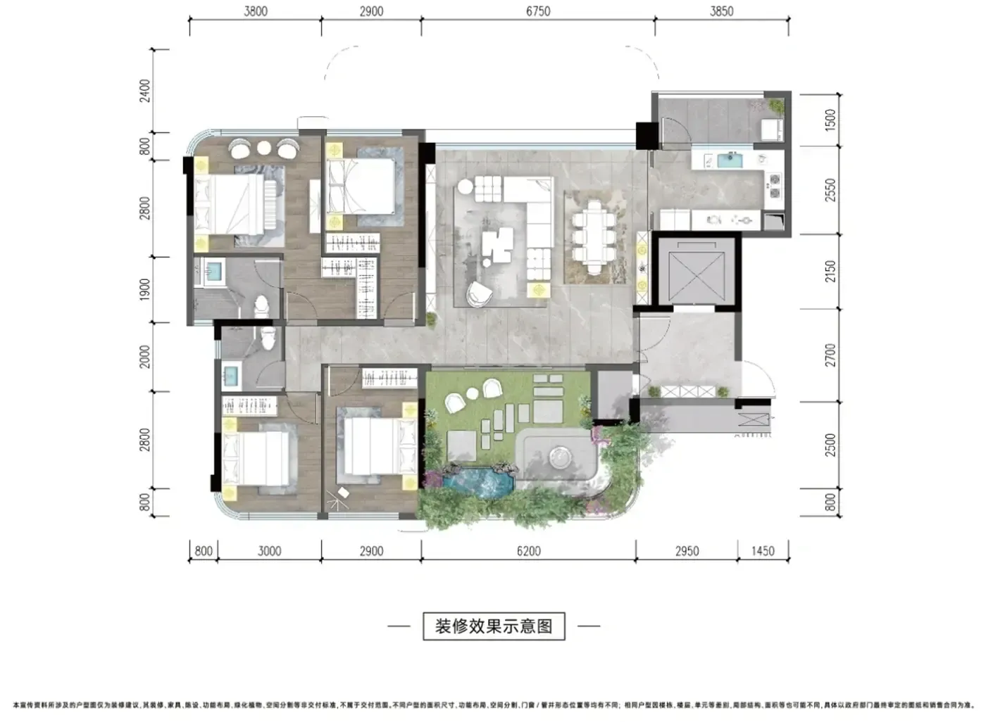
设计师一招让200平叠拼多出40㎡?这届年轻人买房真会省!

听说现在重庆叠拼圈流行"偷面积"?某楼盘业主群炸了:同户型邻居家凭空多出个阳光书房!这届设计师太会了!

传统叠拼VS错层设计:

▼ 普通叠拼:楼梯占10㎡,地下室常年积灰

▼ 错层叠拼:挑高6米做夹层,楼梯变身旋转书廊

▼ 常规户型:主卧套间挤占客厅面积

▼ 创新布局:下沉式客厅+悬浮卧室,采光面翻倍

实测案例:北区某新盘135㎡叠拼,通过3步完成空间魔术:

1️⃣ 纵向切割:餐客厅挑空设计,凭空"长出"20㎡

2️⃣ 错层重组:主卧下沉45cm,打造专属衣帽长廊

3️⃣ 夹层利用:楼梯转角暗藏茶室,层高极限利用

现在懂行的品质生活者,看房必问这3句:

▶ 层高能否做局部挑空?

▶ 非承重墙是否可改造?

▶ 地下室能否直通花园?

那些说叠拼浪费面积的,怕是没见过真正会设计的。你家户型是不是也藏了惊喜?#房产干货 #空间改造 #重庆买房

该内容疑似使用AI技术合成,请谨慎甄别

编辑于2025-06-07 重庆

投诉
#错层设计 #空间优化 #重庆房产 #户型改造 #家装趋势
说点什么…