1/5
我有一个苹果和桃儿
关注

天澜道11号交付翻车?业主群炸出真相

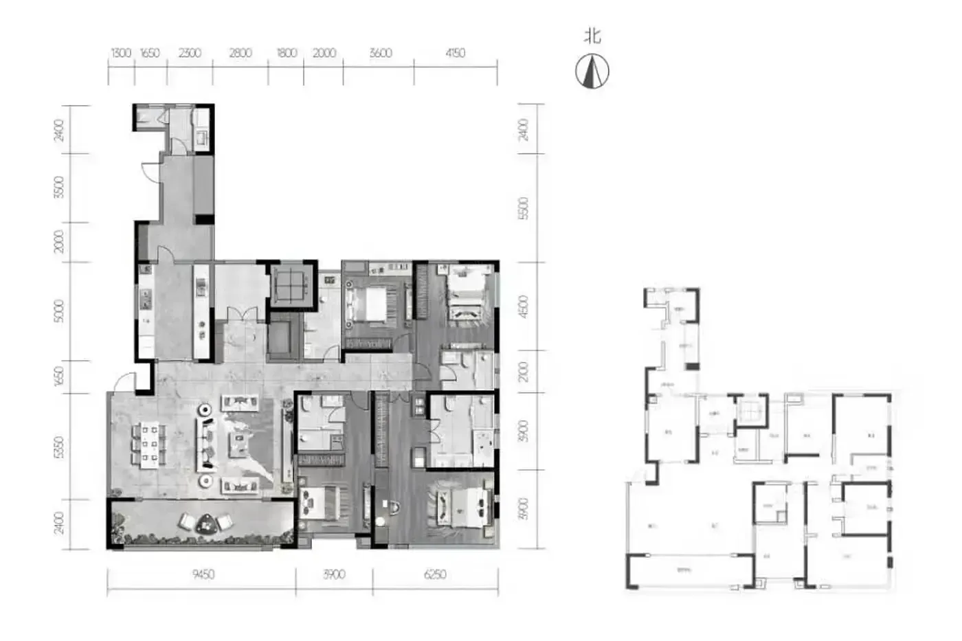
江北嘴豪宅圈最近炸了——天澜道11号交付现场,业主群有人把开发商的精装墙砸了!听说这位90后设计师出身的业主,竟把主卧飘窗改成全景咖啡角。

上周末探访时,正撞见业主李姐举着激光测距仪和工程部battle。原本2.7米宽的飘窗被她拆成270°观景台,晨光斜照时确实像悬浮在云端喝手冲。但物业提醒:外立面承重结构不能动,得保留原始金属包边。

"精装房就像预制菜,要改造成私房菜得看户型底子。"李姐翻出户型图给我看,253㎡的LDK厅居然藏着三处承重墙,最终她用移动轨道柜解决了餐厨分区难题。不过次卫暗间问题确实存在,建议后期加装新风弥补。

交付半年的业主们总结出三大真相:江景阳台能打9分但西晒明显,建议选东户;全屋智能系统偶有卡顿,需预留检修口;物业响应速度堪比海底捞,但垃圾分类时段太严格。看完样板间别急着走,记得拿红外线仪测墙面平整度!

房子不该是流水线产品,好户型要经得起生活改造。正如李姐咖啡杯上写的:"在水泥森林里,总要留一扇能看见光的窗。"建议看房时带本《小家越住越大》,你会有新发现。

该内容疑似使用AI技术合成,请谨慎甄别

编辑于2025-06-06 重庆

投诉
#重庆买房攻略 #大平层测评 #生活空间改造 #精装房避坑 #江北嘴豪宅
说点什么…