1/3
小天天天天610
关注

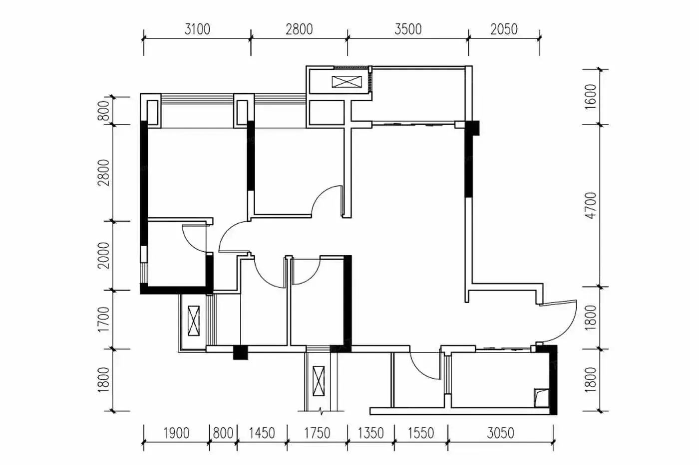
信达九珑郡被吐槽最多的网红盘?装标豪横但飘窗鸡肋

花130万在九龙坡买装标豪横的网红盘值不值?今天带你看清信达九珑郡的真实居住体验!

【装标豪横但飘窗鸡肋】开发商宣称的装修交付确实到位:全屋智能门锁+可视对讲,主卧套间带独立卫浴。但飘窗台面直接外挂空调机位,想改咖啡角?不好意思这个飘窗根本打不掉!

【动静分区藏玄机】建面77㎡三房户型把客厅和次卧放在电梯井两侧,主卧藏在走廊尽头。优点是私密性强,缺点是次卧距离厨房油烟区仅隔一堵墙——深夜煮泡面可能吵醒孩子。

【收纳系统玩真的】餐边柜预留了嵌入式冰箱位,玄关柜深度做到40cm能放鞋盒。不过阳台栏杆封窗后,开发商预留的洗烘叠放区实际只有1.2米进深,大件四件套可能卡在滚筒里转不开。

这里能给你品牌地产的安心感,能收获地铁站500米的便利,但你要接受飘窗无法打掉的现实,要适应次卧和厨房的微妙距离。值不值?看完这些细节你心里该有答案了。

该内容疑似使用AI技术合成,请谨慎甄别

编辑于2025-05-25 重庆

投诉
#重庆楼市 #户型设计 #装修避坑 #生活美学 #九龙坡买房
说点什么…