1/10
newhouse85177275
关注

龙玺御园洋房南北通透大三居,133平仅90万,可装复式

标题:自家龙玺御园南北通透大三居,133平诚意出售90万✨

正文:

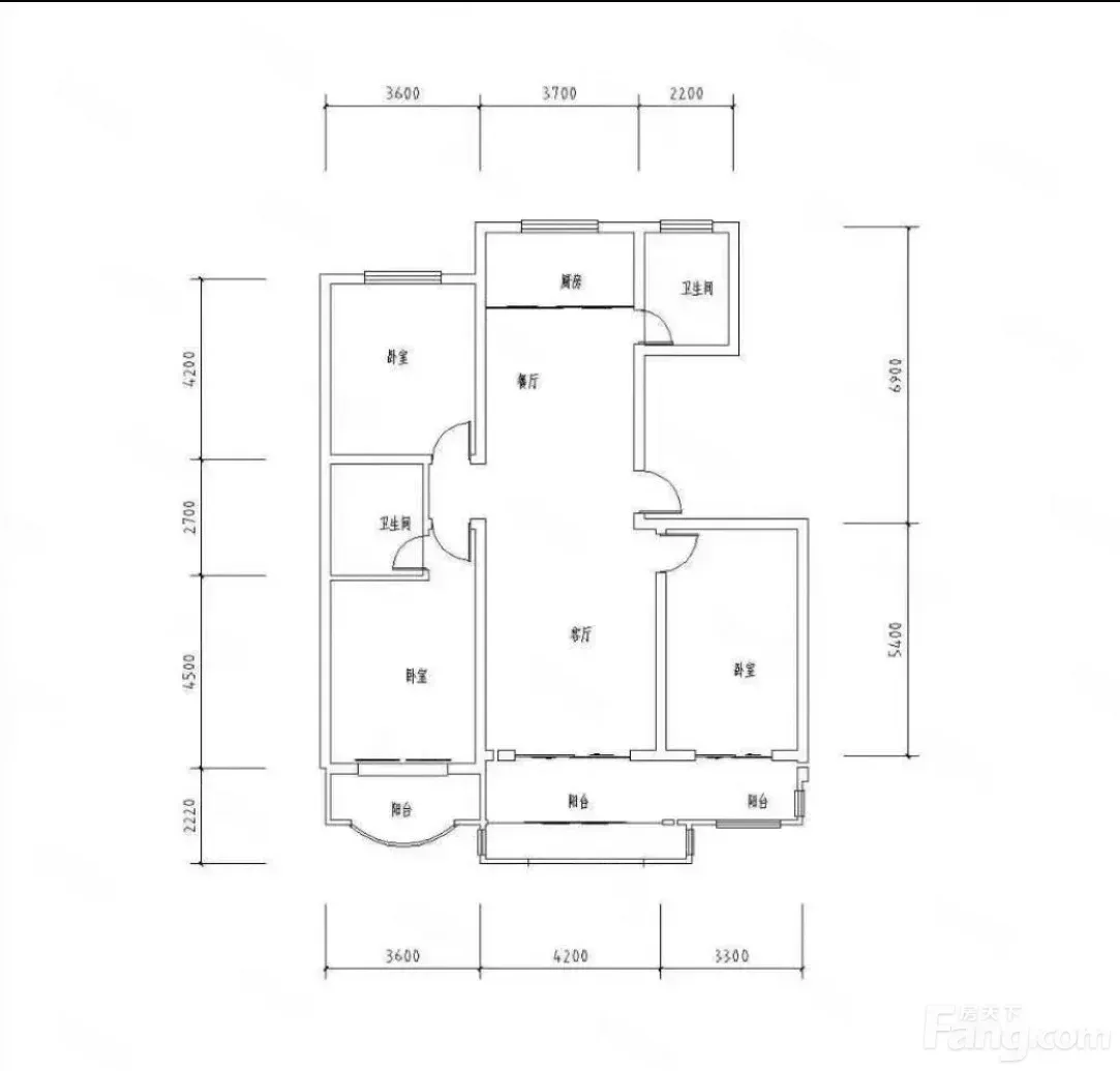
这套房子是我家在龙玺御园16号楼的自住房🏠,鼎盛王朝正对面,位置特别好找!133.9平的建筑面积,南北通透的格局,阳光从早晒到晚🌞,夏天穿堂风特别凉快,住着真心舒服~

我家是3室2厅2卫的方正户型,主卧朝南带独立卫生间🚿,私密性超好;另外两间卧室大小刚刚好,孩子写作业、老人休息都够用。最爱客厅连着的大阳台🌱,平时晾衣服、养绿植都超方便,下午坐着喝茶看街景超惬意!

小区环境安静🌳,物业管家随叫随到,住了5年从没操心过。步行5分钟就有菜市场🥬和超市,鼎盛王朝商圈吃饭逛街超方便~现在因为工作调动诚心出售,90万的总价在同地段真的很难得,欢迎来看房呀!🔑

编辑于03-13 承德

投诉
说点什么…