1/5
吉林美食地图
关注

长春宽城春和景明|地铁口居然能住出松弛感?

"朋友来我家第一句话:你这户型是样板间吧?"发完这条动态后,春和景明这个盘彻底火了!

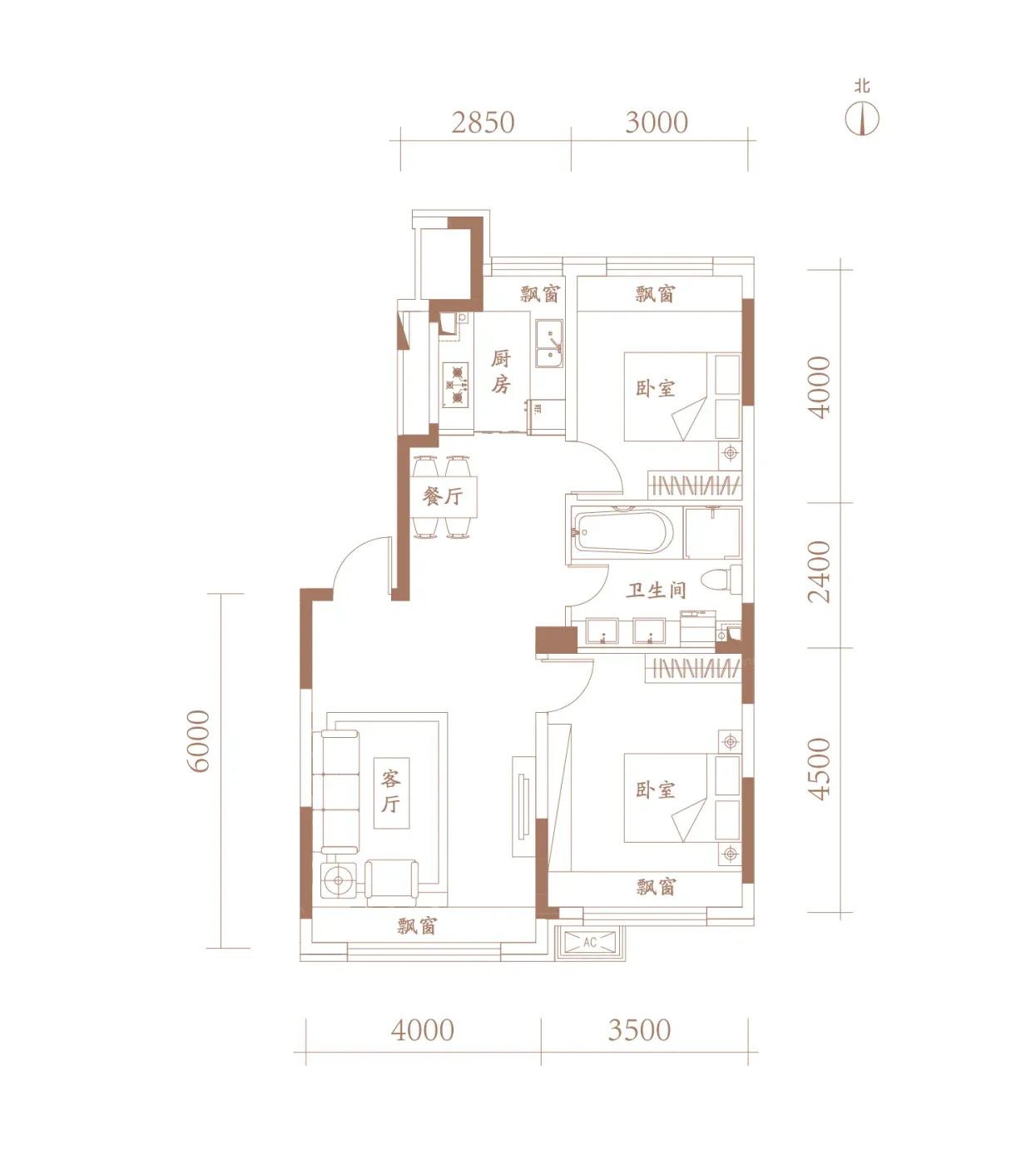
作为把87㎡三居爆改成咖啡屋的户主,必须唠唠这个盘的户型魔法:7.2米双飘窗被我改成咖啡角,动静分区自带洄游动线,周末瘫在沙发就能看孩子写作业。

但说点大实话:

1⃣ 主卧门对卫生间,建议后期加个屏风

2⃣ 厨房U型布局虽合理,但烟道占空间

3⃣ 阳台包进客厅后,晾晒区得重新规划

最戳我的是2.35低密社区,站在飘窗前看35%绿化的园林,有种住在美术馆的错觉。地铁口步行实测8分钟,鞍山路菜场就在楼下,烟火气和精致感拿捏得刚好。

房子是容器,生活才是内容物。这个把「春和景明」写进楼书里的楼盘,确实把宋徽宗画里的诗意过成了日常。评论区聊聊你最想改造哪个空间~

该内容疑似使用AI技术合成,请谨慎甄别

编辑于2025-05-31 长春

投诉
#长春新房 宽城买房 地铁房 装修灵感 户型设计
说点什么…