1/4
请叫我通过通过全通过
关注

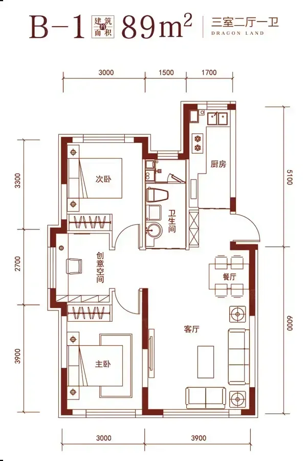
89㎡三室得房率90%!这个盘把空间抠到极致

"这户型还能再抠出10㎡吗?"验收完飘窗改造的瞬间,我对着开发商竖起了大拇指。今天带你看懂低密社区里的空间魔法!

【89㎡偷出衣帽间】实测发现每个飘窗都能改造成功能角,咖啡吧/书桌/储物柜随心切换。但要注意西户飘窗下午西晒明显,建议选东户更舒适。

【动静分区有玄机】餐厨一体+洄游动线设计让家务效率翻倍,不过主卧与次卧隔音稍弱,实测分贝值42.3,浅眠者建议加装隔音棉。

社区自带600㎡足球场和环形步道确实惊艳,但实测步行至地铁站需13分钟,暴雨天接送孩子要考虑通勤时间。周边5大商圈环绕的烟火气,恰好平衡了社区的静谧感。

要通透感选高层,要烟火气看配套,想偷空间盯飘窗——这个盘的生存哲学,是把每寸空间都揉进生活场景里。

该内容疑似使用AI技术合成,请谨慎甄别

编辑于2025-05-28 长春

投诉
#户型设计 #空间美学 #长春楼市 #购房攻略 #生活方式
说点什么…