1/4
zxt55555
关注
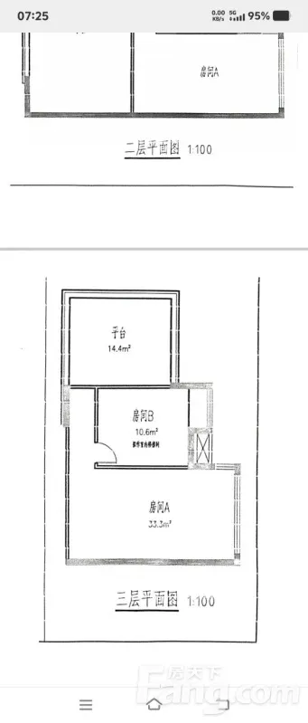
天府美岸顶跃3层/5室3厅/ 90.11㎡ (实际235平米)239万
标题:天府美岸顶跃3层
编辑于13小时前 成都
投诉
说点什么…
点赞
评论