1/4
小宝马Sweety
关注

天府新区打工人看过来!湖光玖里这份「反卷居住指南」有点东西

听说最近成都人买房只有两种选择——能准时下班回家的,和需要跨城通勤的。今天实测的湖光玖里,硬是把「反卷」刻进了户型里。

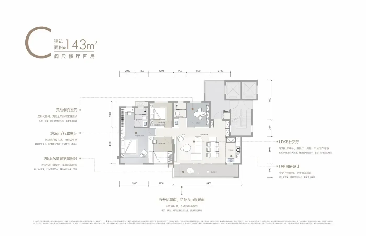
先说个反常识:绕城外≠配套差。项目自带三公园环绕的天然氧吧系统,实测步行5分钟就能到地铁6号线麓山大道站,比某些三环盘更懂通勤党的痛。143㎡四房户型竟然藏着「双洄游动线」,客厅和书房形成8米长的自由活动区,瑜伽垫能直接铺在飘窗旁,这届开发商终于懂躺平青年的居家需求了。

但别急着心动!实测发现厨房操作台面只有3.6米,对于爱做烘焙的家庭可能施展不开。好在装修交付配置了洗碗机和蒸烤箱,算是弥补了部分遗憾。教育配套确实能打,隔壁就是天府七中小学部,但想要顶级医疗资源还得往华西那边跑。

这样的房子像极了当代年轻人的生活哲学——在躺平与奋斗间找平衡点。就像项目自带的35%绿化率,既给足呼吸空间,又不失生活烟火气。当你在飘窗咖啡角看着晚霞时,或许会突然发现:原来生活和工作真的可以不用二选一。

该内容疑似使用AI技术合成,请谨慎甄别

编辑于2025-05-26 成都

投诉
#成都买房攻略 #天府新区生活 #改善住宅 #装修交付 #麓山板块
说点什么…