1/6
高月元sq
关注

顺义北京润园,给纠结通勤的改善家庭一个新答案

最近圈里人都在聊一个现象:当你还在为市区老破小的学区房挣扎时,另一批追求生活品质的家庭,已经把目光投向了容积率1.01的土地。顺义北京润园就是这样一个存在。

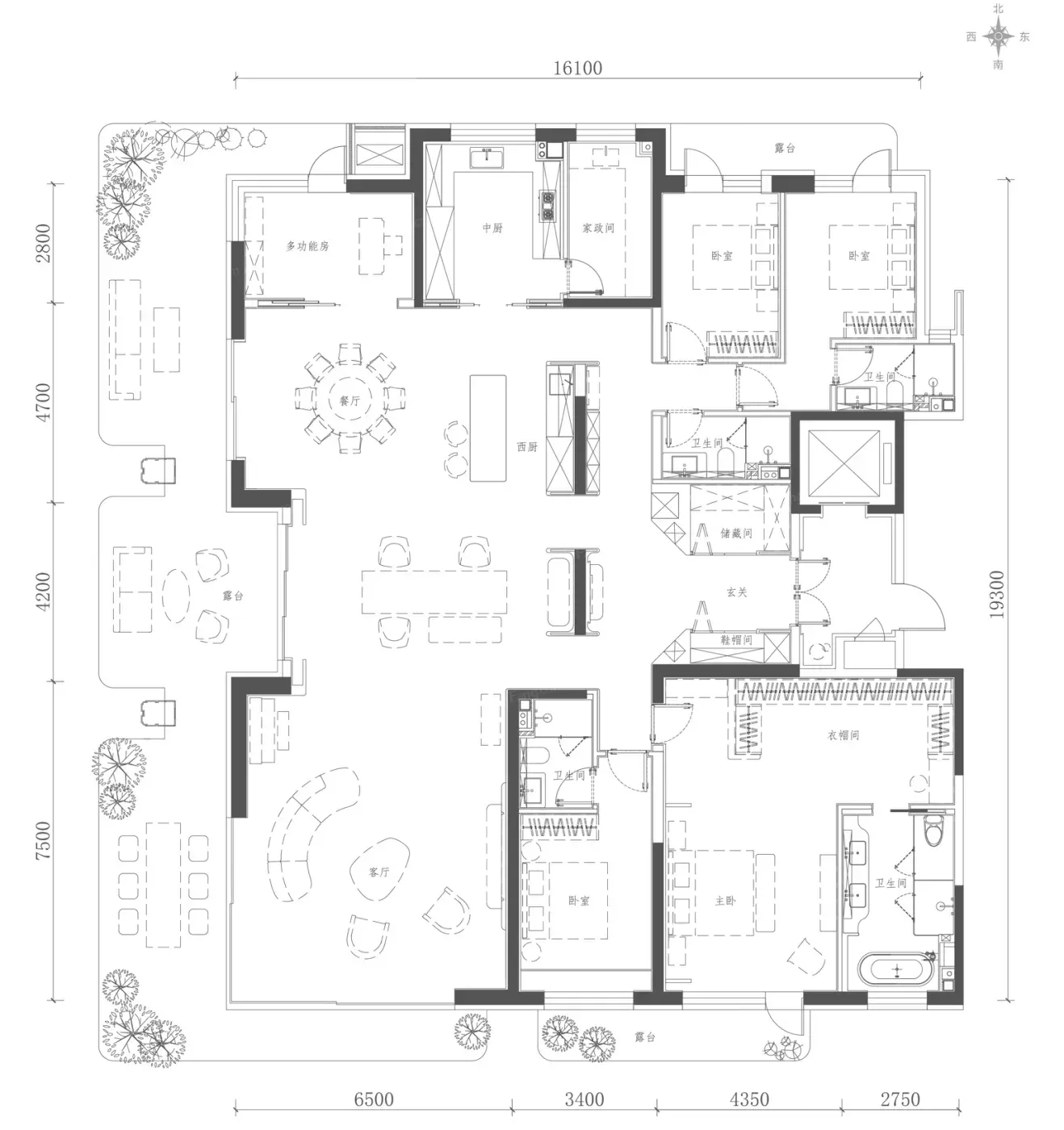
作为从业多年的观察者,我必须说它的产品力确实能打。1.01的容积率,在北京近十年的土地出让里,是屈指可数的低密指标,这意味着更宽松的楼间距和社区氛围。更实在的是得房率,部分户型超过130%,相当于用更经济的方式获得了更大的实际使用空间,对多代同堂的家庭很友好。从市场反馈看,其销售表现也印证了这类产品的稀缺价值。

当然,没有完美的房子。它的位置在中央别墅区,对于工作生活圈在城六区的朋友来说,通勤是需要权衡的现实。此外,271㎡起步的面积段,也决定了它主要面向的是对空间有硬性需求的改善型家庭。

总结一下:如果你对低密度、高空间利用率有执着追求,且能接受相应的通勤半径,那么这个盘的产品稀缺性值得重点考察。但若你的日常高度依赖市中心,则需要谨慎评估。产品力,永远是穿越周期的硬通货。

该内容疑似使用AI技术合成,请谨慎甄别

编辑于04-01 北京

投诉
#北京润园 #顺义新房 #中央别墅区 #低密度住宅 #高得房率 #别墅改善
说点什么…