1/6
城市发展观
关注

朝阳区孙河组团2902-73地块B4综合性商业金融服务业用地项目方案公示

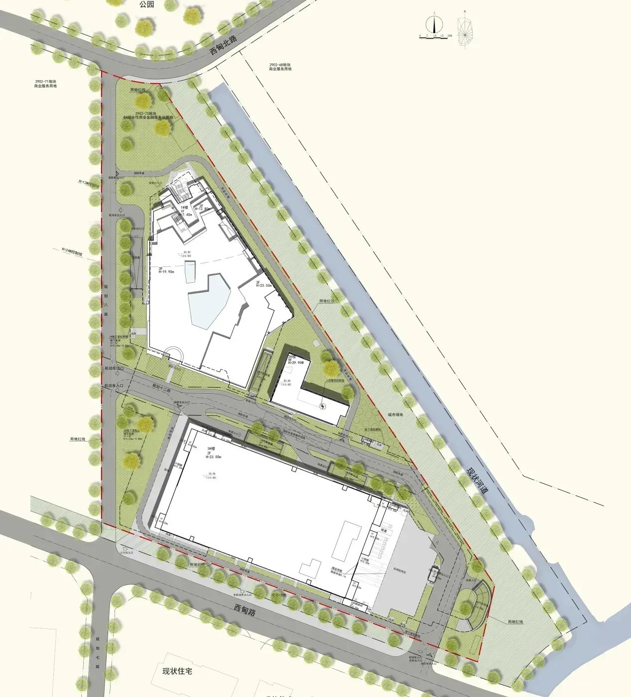
朝阳区孙河组团2902-73地块B4综合性商业金融服务业用地项目位于朝阳区孙河乡。东、南至规划绿地,西至2902-71地块边界,北至西甸北路。建设单位为北京兴昶房地产开发有限公司,现委托中国建筑标准设计研究院有限公司进行了规划方案设计(具体方案和规划指标详见附图)。

根据《城乡规划法》、《北京市城乡规划条例》等有关规定,现就规划方案进行公示,征求规划地段内利害关系人和公众的意见,依据市规划自然资源委《关于做好房屋建筑工程规划设计方案批前公众参与的通知(试行)》等文件要求,公示期限自公布之日起7个工作日。公示期间,若有意见,请向我局提交反馈意见。我局将及时研究,并将采信结果在本网站通告。逾期不提交的,视为无意见。

编辑于02-24 北京

投诉
#北京规划 #城市发展 #朝阳规划 #孙河板块别墅区规划
说点什么…