1/4
顺儿
关注

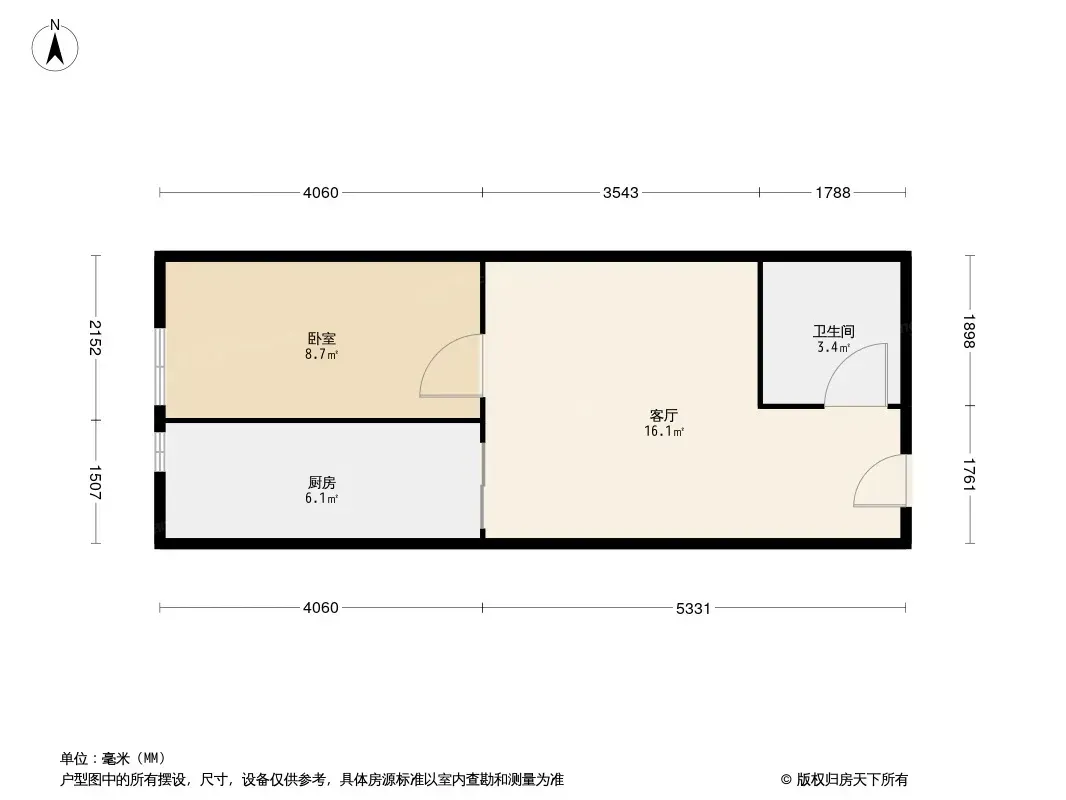
朝阳 美立方 1室1厅 56.99㎡ 129万

标题:朝阳美立方自住精装一居室诚意出售✨

正文:

这套房子是我自己住了5年的小家🏠 位于朝阳区双营路11号院的美立方小区 真心舍不得卖 但因为工作调动不得不忍痛割爱😢

我家在15层(总高16层) 56.99㎡的一室一厅 东南朝向采光超级好☀️ 每天清晨阳光洒进来特别舒服 2011年的房子保养得跟新的一样 小区环境安静又干净

最喜欢的是这个户型设计 虽然面积不大但特别实用 我一个人住刚刚好 客厅和卧室都朝东南 冬天暖和夏天通风 晾衣服也特别方便👚

小区物业很负责 24小时保安巡逻 楼下就是便利店和餐馆 步行10分钟到地铁站🚇 周边商场超市一应俱全 生活超便利

现在挂牌129万 这个价格在朝阳区真的很划算 要不是急着换城市工作 真的舍不得卖 欢迎来看房 保证你会爱上这个温馨的小窝💕

#北京买房 #朝阳房产 #业主直售 #一居室 #美立方

编辑于1天前 北京

投诉
说点什么…