1/6
住宅观察智库
关注

94600元/㎡买三环洋房值吗?135㎡起户型真实测评

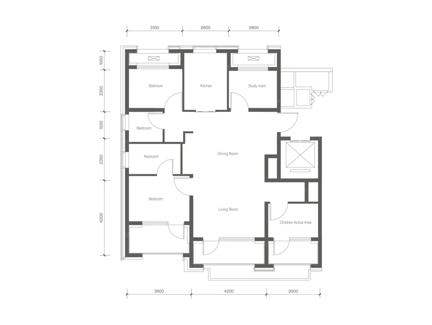
三环边的洋房社区,究竟藏着多少生活惊喜与妥协?最近实地探访某主城改善盘时,发现它就像个矛盾综合体——会所大堂的香氛与门外杂乱的街巷形成魔幻折叠。我在园林里遇见一对看房夫妻,妻子摸着仿古砖墙感慨"这才是理想的家",丈夫却望着窗外高压线苦笑:"这景观每天看真的不会有落差?"

项目确实手握王牌:金茂璞系基因让每个转角都充满仪式感,192㎡户型甚至奢侈地做了双洄游动线。但周边老旧的社区界面像未撕掉的标签,2.75容积率虽低于周边,窄马路早晚高峰仍可能堵成停车场。有趣的是,它用城市更新概念打动了不少老丰台人,数据显示近9个月月均成交27套的背后,藏着改善群体对主城生活的执念。

房子终将成为生活方式的载体。当你看重三环的烟火气,就要接纳它的岁月痕迹;向往金茂的品质标准,就要匹配相应的预算刻度。建议真正走进社区感受早晚光线,在样板间模拟真实生活动线——毕竟再美的效果图,都要经过柴米油盐的检验。

该内容疑似使用AI技术合成,请谨慎甄别

编辑于01-12 北京

投诉
#北京新房测评 #丰台改善住宅 #三环洋房 #金茂品质 #四居室户型 #东铁营街区
说点什么…