楼盘规划解码
关注

关于北京市海淀区西北旺镇永丰产业基地(新)H地块HD00-0401-0132地块二类城镇住宅用地项目方案的公示

一、项目情况说明

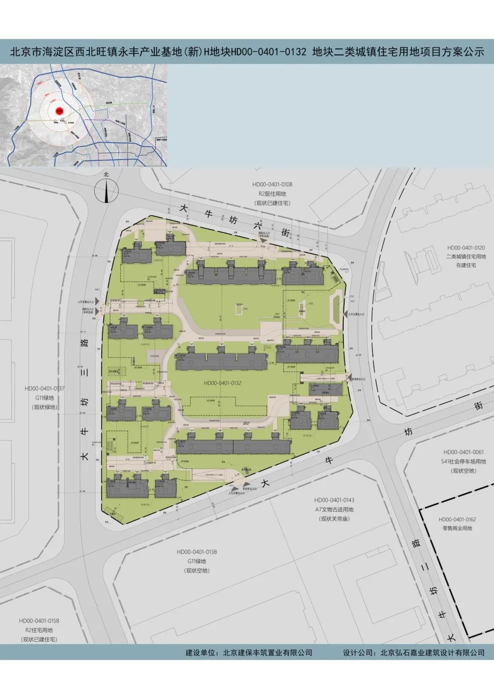
北京市海淀区西北旺镇永丰产业基地(新)H地块HD00-0401-0132 地块二类城镇住宅用地项目位于海淀区西北旺镇, HD00-0401-0132地块,北至大牛坊六街,东至大牛坊二路,南至大牛坊一街,西至大牛坊三路。建设用地面积27581.838平方米。

本项目建设单位为北京建保丰筑置业有限公司,设计单位为北京弘石嘉业建筑设计有限公司。按照建设单位及设计单位现阶段设计方案,项目拟建设内容为商品住宅及居住公共服务设施。本项目总建筑面积73889.12平方米,地上总建筑面积46889.12平方米,地下总建筑面积27000平方米,容积率为1.7,建筑层数为地上11层,地下2层,建筑高度32.95米,绿地率30%。(方案有关指标以最终审批为准)。

二、规划设计方案总平面图

三、意见反馈方式与期限

对该项目进行公示,听取公众意见,公示期限为7个工作日(截止日期为2025年9月16日)。公示期间,如有意见,请在北京市规划和自然资源委员会网站或通过邮箱(hdssk@ghzrzyw.beijing.gov.cn)提交意见。个人意见请签署真实姓名、住址及联系方式,组织或单位意见应加盖公章,并注明联系人及联系方式。逾期未提交的,视为无意见。

对反馈意见进行研究,并将采信结果在北京市规划和自然资源委员会网站http://ghzrzyw.beijing.gov.cn/上进行通告。

编辑于2025-12-15 北京

投诉
#楼盘规划 #保利建工·嘉华天珺 #北京楼市
说点什么…