1/5
楼盘规划解码
关注

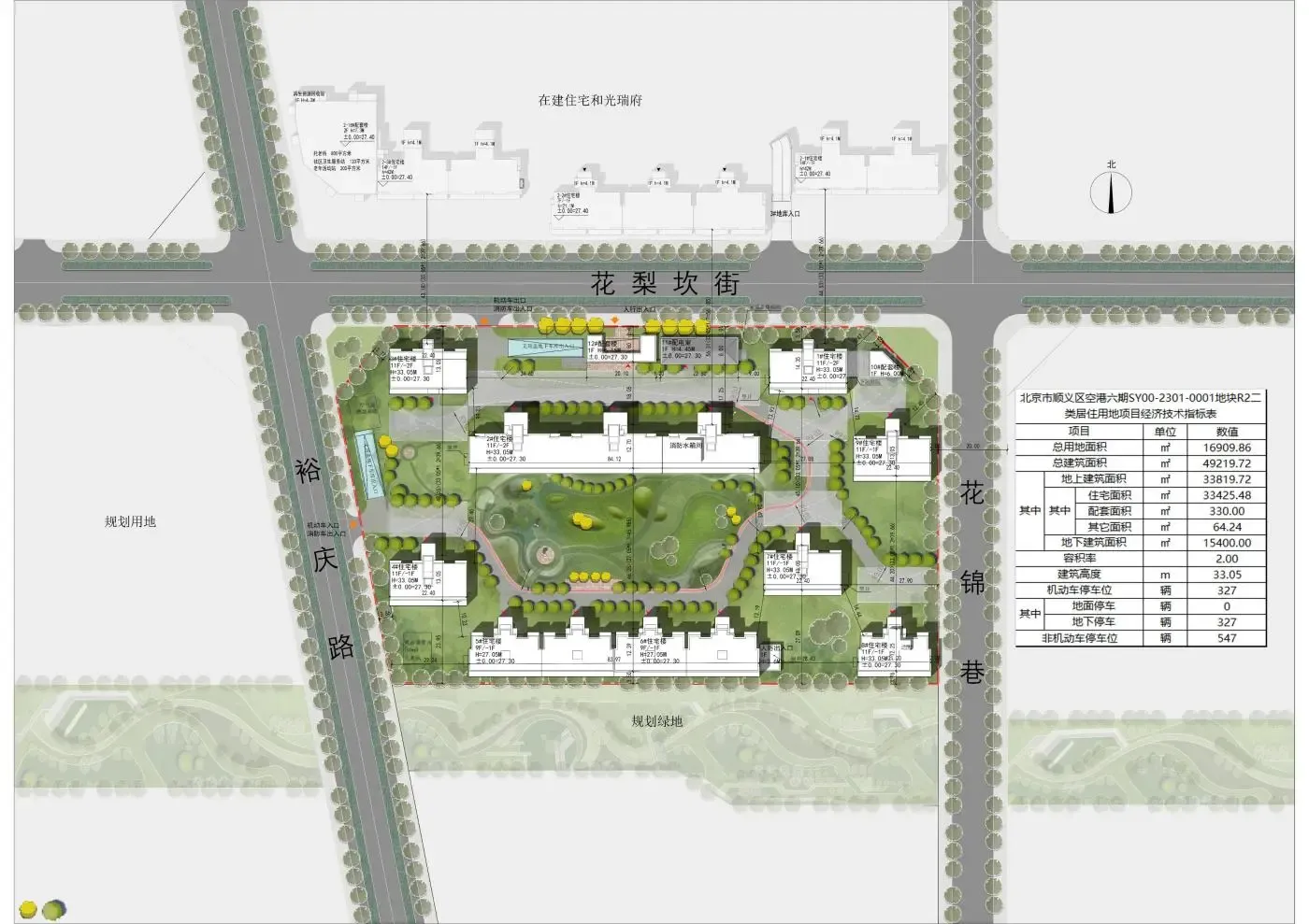
关于北京市顺义区空港六期SY00-2301-0001地块R2二类居住用地项目规划建筑方案的公示

该项目位于首都机场临空经济示范区范围内,四至范围为:

东至花锦巷,西至裕庆路,南至城市绿化带,北至花梨坎街。该

项目用地为国有出让居住用地,本次申报项目总用地面积为

16909.86 平方米,总建筑面积为 49219.72 平方米,其中地上建

筑面积为 33819.72 平方米,地下建筑面积为 15400.00 平方米

(最终以规划行政许可为准)。

目前,该项目规划建筑方案已编制完成,为落实北京城市总

体规划、顺义区分区规划对城市设计的要求及区政府对提升顺义

城市品质的指示精神,现将该项目规划建筑方案予以公示,听取

公众意见,公示期限为 7 天(自发布之日算起)。

编辑于2025-12-15 北京

投诉
#楼盘规划 #保利建工·星宸和煦 #北京楼市
说点什么…