楼盘规划解码
关注

关于丰台区大红门街道大红门一期A区棚户区改造项目FT00-0516-0006、FT00-0516-0009地块R2二类居住用地、A334托幼用地项目规划设计方案的公示

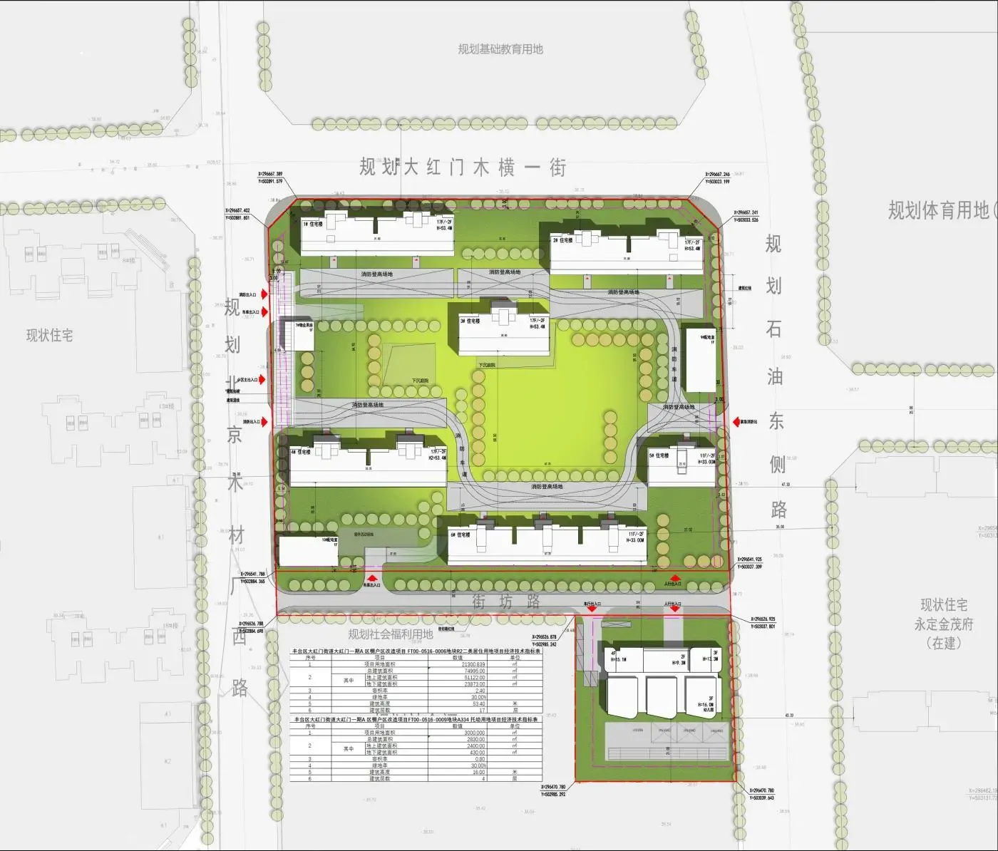
丰台区大红门街道大红门一期A区棚户区改造项目FT00-0516-0006、FT00-0516-0009地块R2二类居住用地、A334托幼用地项目位于丰台区大红门街道,四至为东至规划石油东侧路,南至规划社会福利用地,西至规划北京木材厂西路,北至规划大红门木横一街。建设用地面积约2.43公顷(其中FT00-0516-0006地块建设用地面积2.13公顷平方米、FT00-0516-0009地块建设用地面积0.3公顷)。

本项目建设单位为华润置地开发(北京)有限公司,设计单位为北京弘石嘉业建筑设计有限公司。按照建设单位及设计单位现阶段设计方案,FT00-0516-0006地块R2二类居住用地拟建设内容为住宅及配套设施,总建筑面积约7.5万平方米,其中地上建筑面积约5.1万平方米,地下建筑面积约2.4万平方米,建筑高度约53.4米(最高),容积率2.4,绿地率30%(方案有关指标以最终审批为准),FT00-0516-0009地块A334 托幼用地拟建设内容为幼儿园,总建筑面积约0.28万平方米,其中地上建筑面积约0.24万平方米,地下建筑面积为0.04万平方米,建筑高度16米,容积率0.8,绿地率30%(方案有关指标以最终审批为准)。

现根据《中华人民共和国城乡规划法》、《北京市城乡规划条例》有关规定并参照市规自委《关于做好房屋建筑工程规划设计方案批前公众参与的通知(试行)》(京规自发〔2022〕319号),对该项目规划设计方案总平面图进行现场公示,听取公众意见,公示期限自公布之日起7个工作日。公示及采信结束后,我局将依建设单位申请核发该项目“多规合一”协同平台会商意见。利害关系人应当在公示期内,按照公示要求的方式提交反馈意见,个人意见应签署真实姓名、住址及联系方式,组织或单位意见应加盖公章,并注明联系人及联系方式。逾期不提交的,视为没有意见。我局将及时对反馈意见进行研究,并将采信结果在北京市规划和自然资源委员会网站http://ghzrzyw.beijing.gov.cn/上进行通告。

联系电话:83779722

公众意见反馈邮箱:bjftsjs100071@163.com

北京市规划和自然资源委员会丰台分局

2024年2月

编辑于2025-12-15 北京

投诉
#楼盘规划 #中环悦府 #北京楼市
说点什么…