楼盘规划解码
关注

关于丰台区北宫镇辛庄村II区棚户区改造土地开发项目A-05-1、A-06-1地块R2二类居住用地规划设计方案的说明

关于丰台区北宫镇辛庄村II区棚户区改造土地开发项目A-05-1、A-06-1地块R2二类居住用地规划设计方案的说明

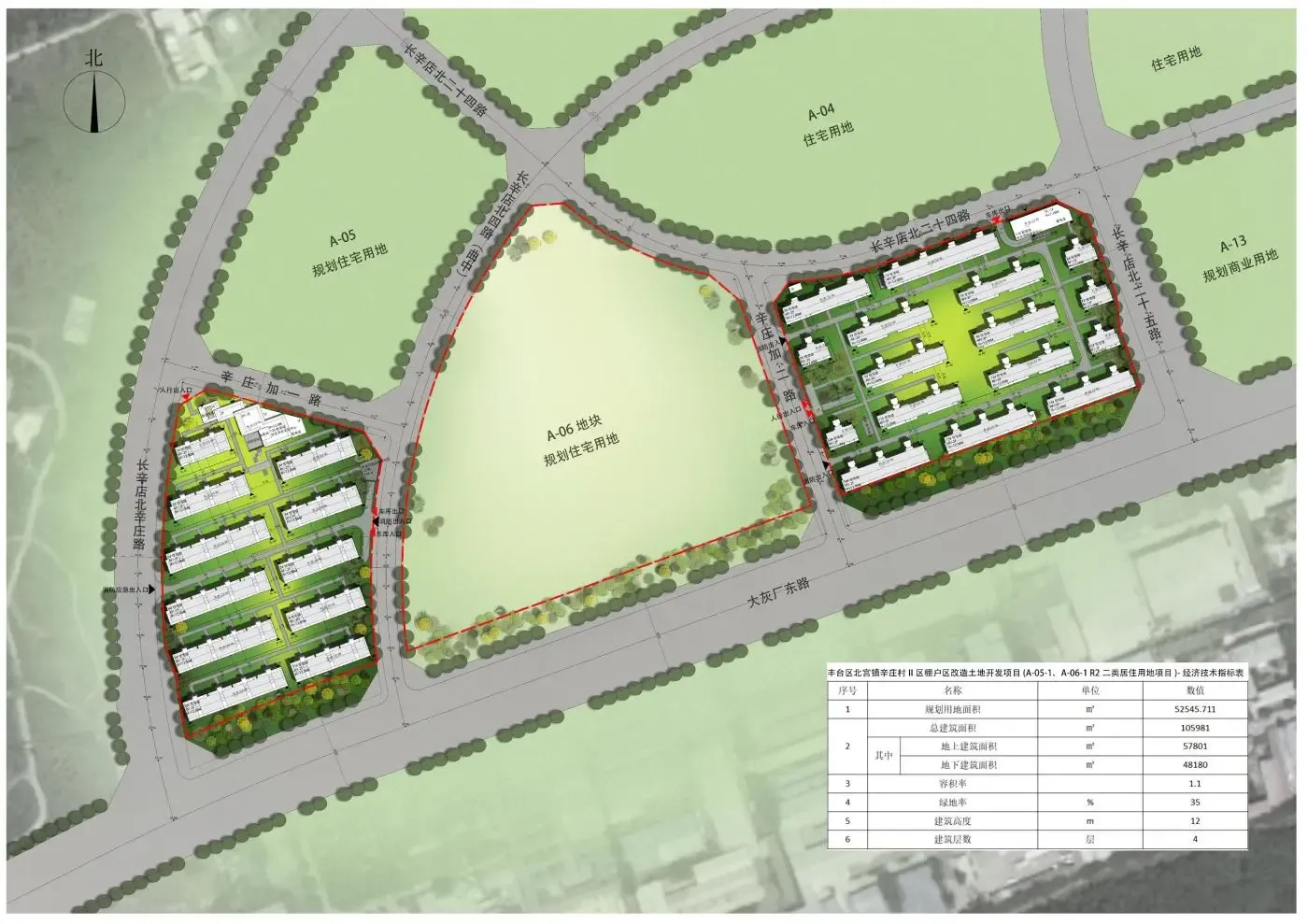
丰台区北宫镇辛庄村II区棚户区改造土地开发项目A-05-1、A-06-1地块R2二类居住用地位于丰台区北宫镇,东至长辛店北二十五路,南至大灰厂东路,西至长辛店北辛庄路,北至长辛店北二十四路,建设用地面积约5.25公顷。

本项目建设单位为北京中海盈通房地产开发有限公司,设计单位为筑博设计股份有限公司。按照建设单位及设计单位现阶段设计方案,项目拟建设内容为住宅及配套设施,总建筑面积约105981平方米,其中地上建筑面积约57801平方米,地下建筑面积约48180平方米,建筑高度12米(最高),容积率1.1,绿地率35%(方案有关指标以最终审批为准)。

现根据《中华人民共和国城乡规划法》、《北京市城乡规划条例》有关规定以及市规自委《关于做好房屋建筑工程规划设计方案批前公众参与的通知(试行)》(京规自发〔2022〕319号),对该项目规划设计方案总平面图进行现场公示,听取公众意见,公示期限自公布之日起7个工作日。利害关系人应当在公示期内,按照公示要求的方式提交反馈意见,个人意见应签署真实姓名、住址及联系方式,组织或单位意见应加盖公章,并注明联系人及联系方式。逾期不提交的,视为没有意见。我局将及时对反馈意见进行研究,并将采信结果在北京市规划和自然资源委员会网站http://ghzrzyw.beijing.gov.cn/上进行通告。

联系电话:63836967

公众意见反馈邮箱:bjftsjs100071@163.com

附件:项目规划设计方案总平面图

北京市规划和自然资源委员会丰台分局

2023年11月

编辑于2025-12-15 北京

投诉
#楼盘规划 #中海·永定玖里 #北京楼市
说点什么…