1/5
城市发展观
关注

关于现代种业全产业链智慧示范园设计方案公示

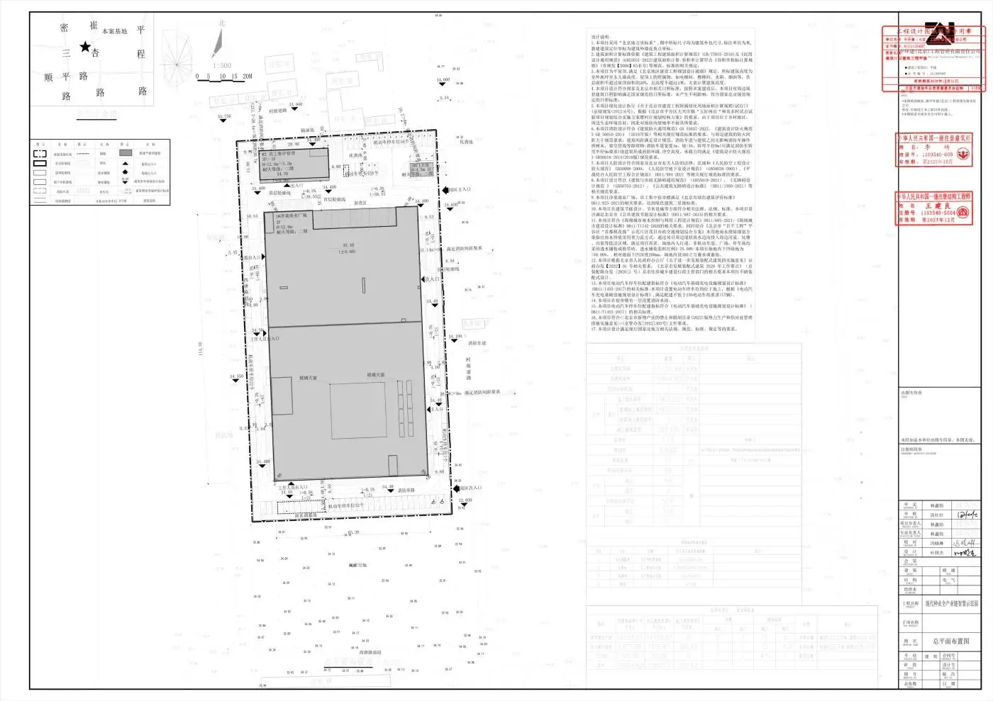
现代种业全产业链智慧示范园位于北京市平谷区大兴庄镇西柏店村,项目四至:东至村庄道路,西至西唐路,南至现状空地,北至宅基地。建设主体为大兴庄镇西柏店村经济合作社。规划用地性质为商业用地(0901),建设内容为净菜商业广场、员工集中宿舍楼、门卫室,建设用地规模13736.48平方米,总建筑面积15964.82平方米,其中地上建筑面积15603.2平方米、地下建筑面积361.62平方米,容积率1.14,建筑高度12米,地上3层,地下1层,因项目位于乡村地区,绿地率不做具体要求(方案相关指标以最终审批文件为准)。按照城乡规划法等有关法律、法规、规范、规定,对该项目设计方案进行公示,听取公众意见,现将有关情况公示如下:

一、设计方案总平面示意图及设计方案效果图示意图。

二、本项目公示地点为本项目现场及北京市规划和自然资源委员会网站,公示期为7个工作日。

三、公示期间,若有意见,请在网站发表评论或直接向我局提交书面意见。个人提交意见应当签署真实姓名,住址及联系方式。单位应加盖公章,注明联系人及联系方式。请将书面反馈意见邮寄至我局(邮寄地址:北京市平谷区林荫北街5号,邮编:101200),反馈日期以邮戳为准。逾期不提交的,视为无意见。

四、我局将及时研究收到的反馈意见,采信结果将在北京市规划和自然资源委网站进行通告。

北京市规划和自然资源委员会平谷分局

2025年8月29日

2025-11-13 北京

投诉
#北京规划 #城市发展 #平谷规划
说点什么…