1/5
楼盘规划解码
关注

关于北京市延庆新城YQ00-0205-0001地块R2二类居住用地项目设计方案的公示

为贯彻落实《延庆分区规划(国土空间规划)(2017年-2035年)》和《北京延庆区新城YQ00-0205街区控制性详细规划(街区层面)(2023年—2035年)》,更好满足居民刚性住房和多样化改善性住房需求,拟在新城YQ00-0205-0001地块新建北京市延庆新城YQ00-0205-0001地块R2二类居住用地项目。经过前期多轮研究和修改完善,目前设计方案已基本稳定。根据《中华人民共和国城乡规划法》《北京市城乡规划条例》的有关规定,现对项目设计方案进行公示,充分征求和听取公众意见建议,公示期限7个工作日(2025年8月4日-2025年8月12日)。公示期内公众可通过以下途径和方式提出反馈意见:

1.登录市规划自然资源委官方网站查看公告。

2.电子邮箱:ghssk123@163.com。

3.通信地址:北京市延庆区香苑街6号区规自分局(邮政编码:102100),并请在信封上注明“延庆新城YQ00-0205-0001地块R2二类居住用地项目设计方案意见”字样。

公示监督电话:(010)60166991。

公示完成后,可登录市规划自然资源委官方网站查看公示采信情况。

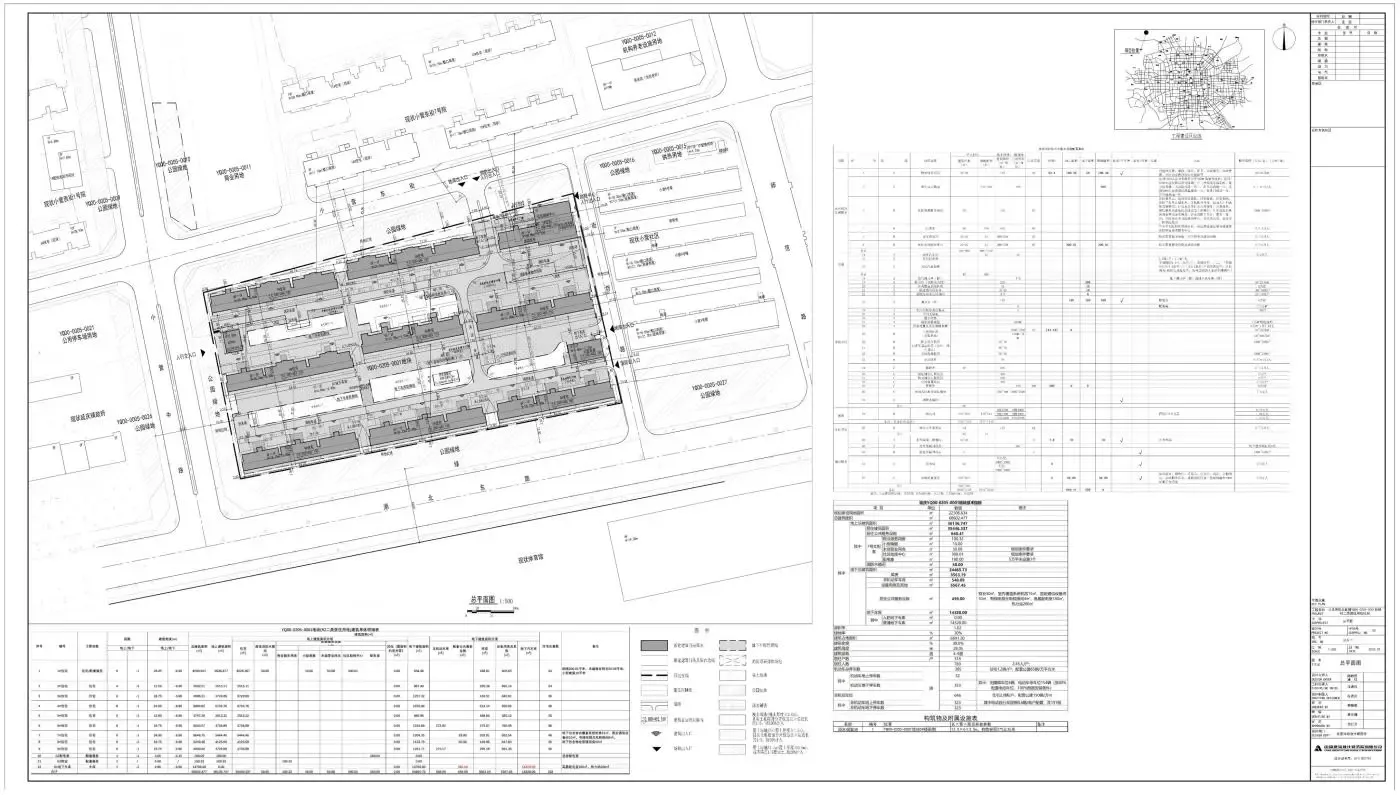
方案基本情况:北京市延庆新城YQ00-0205-0001地块R2二类居住用地项目,位于延庆区新城0205街区,东至规划街坊路,南至湖北东路,西至小营中路、北至小营东街,建设单位为北京程源置业有限公司。该项目规划用地性质为R2二类居住用地,建设用地面积22306.634平方米,总建筑面积60602.477平方米,其中,地上建筑面积36136.747平方米,地下建筑面积24465.73平方米,容积率1.62,建筑高度28.05米,地上9层,地下2层,绿地率30%,建筑密度30%,机动车停车位385个(含无障碍停车位4个,充电车位154个),非机动车停车位646个(含电动自行车停车位191个),具体指标以最终审定的设计方案为准。

编辑于2025-11-13 北京

投诉
#楼盘规划 #中建·臻源府 #北京楼市
说点什么…