1/4
楼盘规划解码
关注

关于石景山区中关村科技园区石景山园北Ⅰ区1605-650地块项目设计方案的公示

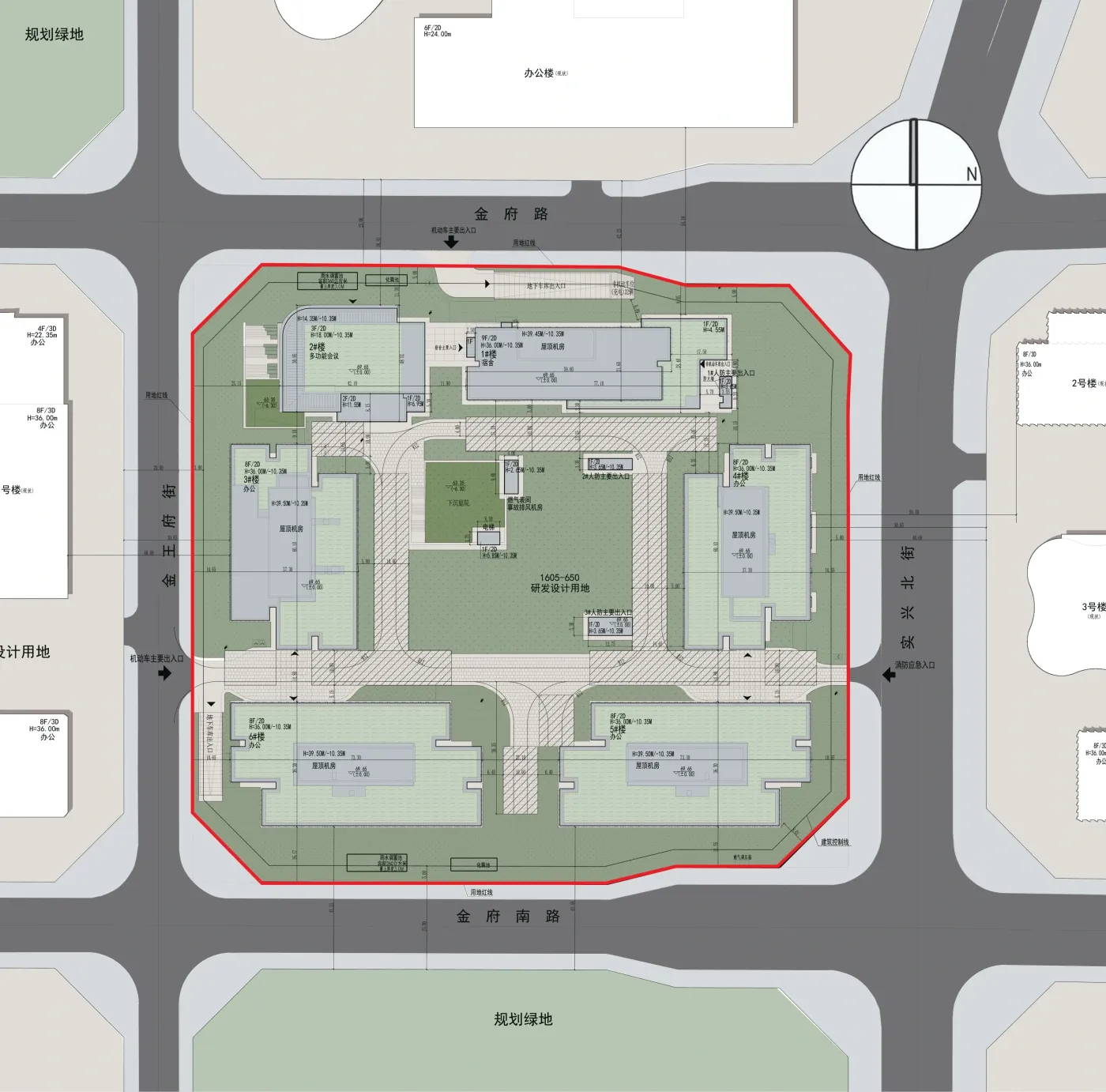
北京保恒置业发展有限公司委托中国建筑设计研究院有限公司对石景山区中关村科技园区石景山园北Ⅰ区1605-650地块项目进行规划方案设计(详见附图)。

根据《中华人民共和国城乡规划法》及《北京市城乡规划条件》有关规定,现对该项目设计方案进行公示,听取公众意见。公示期限自公布之日起7个工作日(方案有关指标以最终审批为准)。

项目位置:石景山区中关村科技园区

项目范围:东至实兴北街,南至金府南路,西至金王府街,北至金府路。

规划用地性质:B23研发设计用地。

建设用地面积:32636.736平方米。

总建筑规模:126009.11平方米,其中地上建筑规模78328平方米,地下建筑规模47681.11平方米。

公示期间,若有意见,请发表在评论区向我分局提交反馈意见,我分局将及时对反馈意见进行研究,并将采信结果在本网站公布。逾期未提交的,视为无意见。

2025-11-13 北京

投诉
#楼盘规划 #京土储挂(石)[2023]072号 #北京楼市
说点什么…