1/4
城市发展观
关注

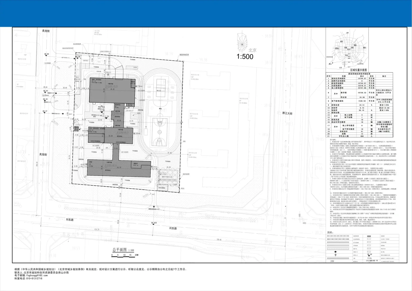
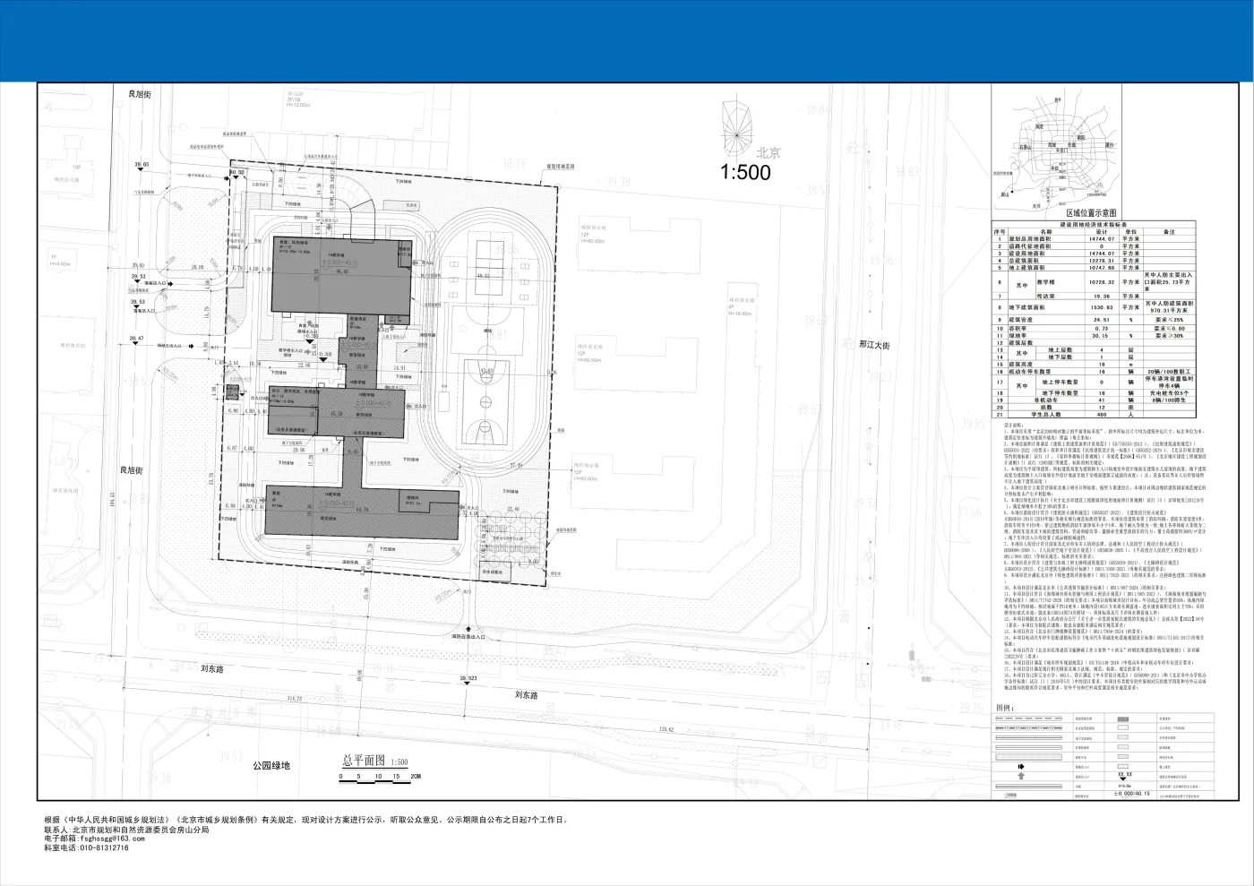
关于房山区良乡镇邢家坞小学项目规划设计方案的公示

房山区良乡镇邢家坞小学项目规划设计方案已编制完成。本项目为新建项目,根据《中华人民共和国城乡规划法》、《北京市城乡规划条例》有关规定,现对该项目规划设计方案进行公示,听取公众意见,公示期限自公布之日起7个工作日。

房山区良乡镇邢家坞小学项目位于良乡镇中心区FS04-0100-6023地块,东侧紧邻零售商业用地,南侧为代征绿地和规划刘东路,西侧为代征绿地和良旭街,北侧紧邻北京市房山区幼师实验幼儿园。项目总建筑面积 12278.31平方米,其中地上 10747.68 平方米,地下1530.63平方米,建筑高度18米。具体指标以最终审定的方案为准。

公示期间,若有意见,请在下方评论区反馈,我分局将及时会同建设单位对反馈意见进行研究,并将采信结果在市规划自然资源委网站上发布通告,逾期未提交的,视为无意见。

编辑于2025-11-13 北京

投诉
#北京规划 #城市发展 #房山规划 #良乡规划
说点什么…