1/4
楼盘规划解码
关注

北京市朝阳区大郊亭624地块项目方案公示

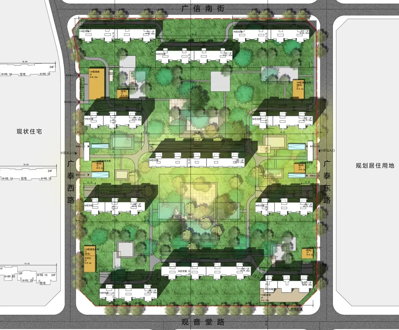
北京市朝阳区大郊亭624地块项目位于北京市朝阳区南磨房乡,东至广泰东路西红线,西至广泰西路东红线,南至观音堂路北红线,北至广信南街南红线,规划用地性质为R2二类居住用地。本项目总用地规模约112317.99平方米,总建筑规模约517391.88平方米,其中:地上建筑规模约340917.86平方米(广华新城居住区平均规划综合容积率2.8),建筑高度79.05米,绿地率35.01%。建设单位为中国国家机关公务员住宅建设服务中心。

目前建设单位已委托华通设计顾问工程有限公司完成设计方案编制(具体规划和规划指标详见附图)。根据《城乡规划法》、《北京市城乡规划条例》等有关规定,现就规划方案进行公示,征求规划地段内利害关系人和公众的意见,依据市规划自然资源委《关于做好房屋建筑工程规划设计方案批前公众参与的通知(试行)》等文件要求,公示期限自公布之日起7个工作日。公示期间,若有意见可向我局反馈,我局将及时研究,并将采信结果在本网站通告。逾期不提交的,视为没有意见。

编辑于2025-11-13 北京

投诉
#楼盘规划 #广华新城 #北京楼市
说点什么…