1/3
城市发展观
关注

关于大兴区庞各庄镇中心卫生院新建工程项目规划设计方案公示(公示期限7个工作日)

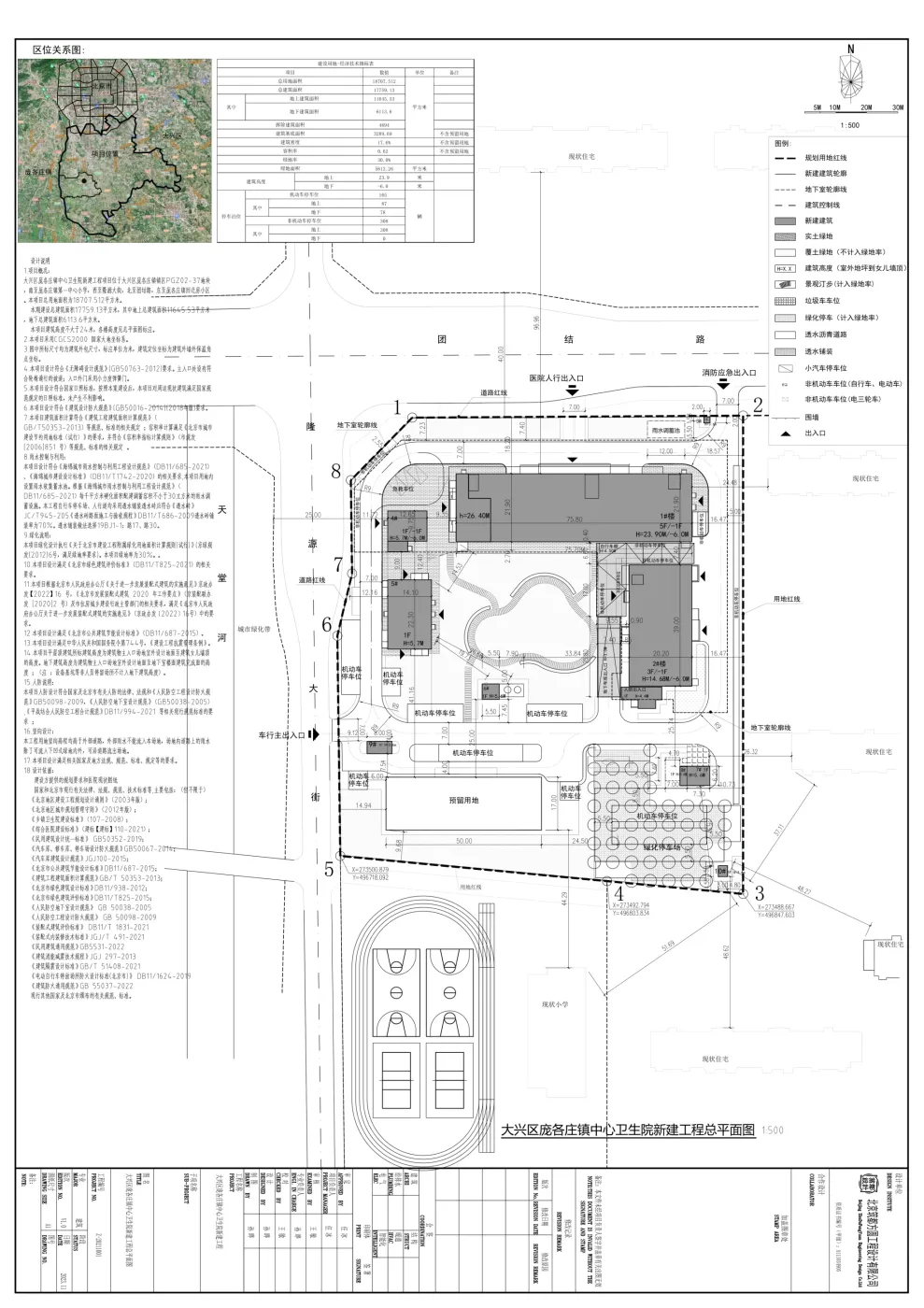
大兴区庞各庄镇中心卫生院新建工程项目位于大兴区庞各庄镇。用地:南邻庞各庄镇第一中心小学,西邻隆源大街,北邻团结路,东邻庞各庄镇回迁房。

本次申报项目规划总用地面积18707.512平方米,规划总建筑面积17759.13平方米,其中地上建筑面积11645.53平方米,地下建筑面积6113.6平方米。建设单位为北京市大兴区庞各庄镇人民政府,目前建设单位已完成设计方案编制,依据《北京市城乡规划条例》等有关法律规定,现将有关情况公示如下:

一、设计方案总平面图(详见附件)。

二、项目公示周期为7个工作日。

三、本次公示地点为本项目现场和北京市规划和自然资源委员会网站(http://ghzrzyw.beijing.gov.cn/)

四、公示期间,如有反馈意见,请在网站发表评论或直接向北京市规划和自然资源委员会大兴分局(地址:大兴区金华寺东路1号;联系电话:010-50911588转2)提交反馈意见。直接向大兴分局提交意见的个人应当签署真实姓名,住址及联系方式;组织或单位应加盖公章,注明联系人及联系方式。我分局将及时研究,并将采信结果在北京市规划和自然资源委网站进行通告。逾期不提交的,视为无意见。

2025-11-13 北京

投诉
#北京规划 #城市发展 #大兴规划 #庞各庄规划
说点什么…