1/5
楼盘规划解码
关注

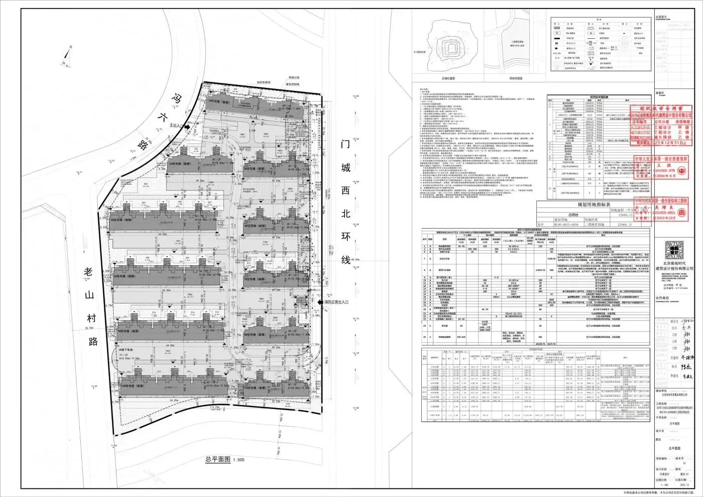
关于北京市门头沟区永定镇南区棚户区改造和环境整治项目MC00-0015-6050地块R2二类居住用地项目规划设计方案总平面图的公示

项目位置:该项目位于北京市门头沟区永定镇,东至门城西北环线,西至冯六路及老山村路,南至规划万佛堂沟,北至规划MC00-0015-0049公园绿地。

事由:北京信和京西置业有限公司拟新建北京市门头沟区永定镇南区棚户区改造和环境整治项目MC00-0015-6050地块R2二类居住用地项目,建设用地面积23004.15平方米,总建筑面积57146.94平方米(详见附图)。为做好规划设计方案批前公众参与工作,对项目规划设计方案在项目现场及北京市规划和自然资源委员会网站予以公示。

法律依据和公示时限:根据城乡规划法等法律、法规、规章和规定及《北京市规划和自然资源委员会关于做好房屋建筑工程规划设计方案批前公众参与的通知(试行)》(京规自发[2022]319号)要求,现将该项目规划设计方案总平面图进行公示,听取公众意见。公示期为从2023年02月09日至2023年02月17日,共7个工作日。

反馈意见:公示期间,若有意见,请直接向我局提交书面意见或在北京市规划和自然资源委员会网站反馈意见。个人应签署真实姓名、住址及联系方式;单位应加盖公章,注明联系人及联系方式。直接向我局反馈书面意见的请邮寄至我局(邮寄地址:北京市门头沟区新桥大街48号,邮编:102300),反馈日期以邮戳为准。逾期不提交的,视为无意见。我局将及时研究收到的反馈意见,采信结果将在北京市规划和自然资源委员会网站进行通告。

北京市规划和自然资源委员会门头沟分局

2023年02月09日

2025-11-13 北京

投诉
#楼盘规划 #中建长安麓院 #北京楼市
说点什么…