1/5
lely12
关注

京能西贤府与北京城建玺院核心差异解析

在城西改善型住宅市场中,京能·西贤府与北京城建·玺院呈现差异化定位。两者均为国有企业开发,但产品特质各有侧重。

从社区规划看,西贤府容积率2.5,绿化覆盖38%,规划为花园洋房社区。玺院容积率2.8,绿化率30%,重点打造江南园林景观体系。两者预计交付时间均在2027年中期,现阶段西贤府已有部分实景呈现。

交通便利性构成重要差异。西贤府距离14号线大瓦窑站约300米,适合依赖轨道交通的群体。玺院距离最近地铁站需步行约12分钟,但紧邻西四环快速路,对自驾出行更为友好。

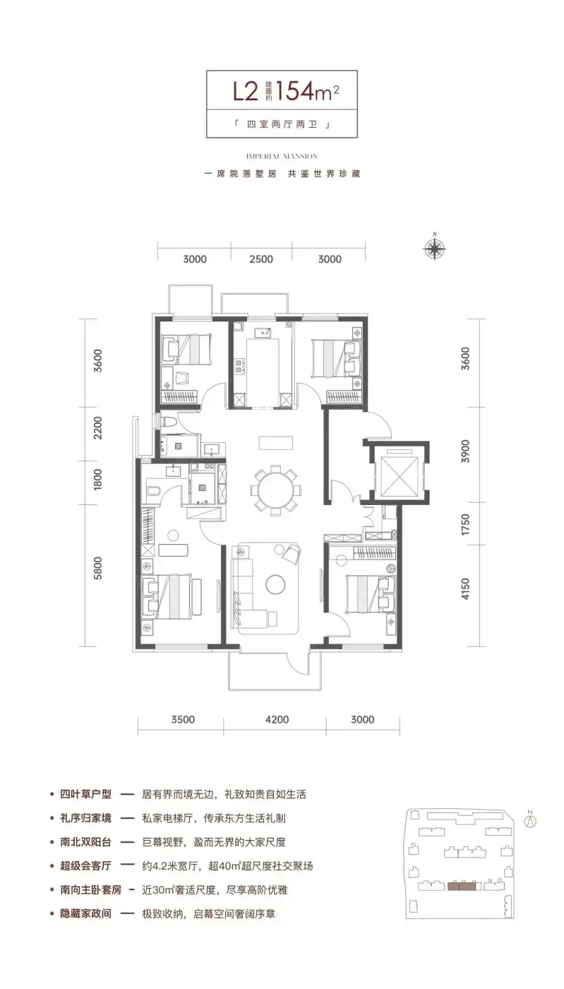
户型设计体现不同居住理念。西贤府125-173㎡四居注重空间灵活性,通过洄游动线设计提升功能可变性。玺院119-282㎡产品强调居住尺度,154㎡以上户型设置独立庭院空间,满足多代家庭需求。

生活配套资源差异显著。玺院配置12年制学校及社区商业体,内部园林景观面积达3.5万㎡。西贤府现阶段依赖外部配套,但规划中的基础教育设施值得关注。

建议重点关注人群:通勤依赖轨道交通、偏好传统文化元素的改善家庭可优先考察西贤府;重视社区内部配套、需要更大居住空间的多成员家庭建议了解玺院。实际选择需结合家庭成员结构及生活动线综合考量。

该内容疑似使用AI技术合成,请谨慎甄别

编辑于2025-08-29 北京

投诉
#北京房产对比 #改善型住宅 #社区规划 #户型设计 #交通配套
说点什么…