1/6
链家小徐sq
关注

北京百平户型优化解析:主卧套间功能实现方案

本次分析针对北京市场百平方米级户型改造需求,重点探讨主卧套间功能实现可能性。需求核心包含双人浴缸配置、独立衣帽间规划及两居室布局,以下为适配项目技术解析。

房山新城投项目116㎡三居室,通过调整北向次卧可实现衣帽间改造。主卫1.8米开间需选用扇形嵌入式浴缸,建议保留700mm通行宽度。现房属性支持实地测量改造,需特别注意排水管径是否适配浴缸规格。

昌平某项目104㎡三室户型,合并北向书房与主卧形成完整套间系统。主卫4.6㎡空间采用扇形浴缸需调整淋浴区布局,预装收纳系统可提升空间利用率。该项目改造需提前确认承重结构,建议保留至少650mm设备检修通道。

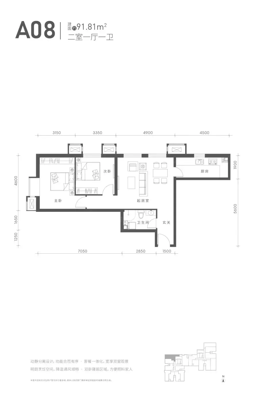
海淀某改造项目91㎡户型,创新采用走道空间打造镜面移门衣帽区。卫生间配置1.5米坐泡式浴缸需配合壁挂式卫浴设备,建议采用集成式通风系统保障使用舒适度。该方案需评估老房管线迁移可行性。

现场勘查需重点关注三要素:卫生间门洞宽度需满足700mm设备进场要求;楼板荷载需达到300kg/㎡标准;排水管道建议预装止逆阀防倒灌。建议携带设备尺寸图比对管道井位置,优先选择南北向明卫配置。

改造方案建议优先选择非承重墙占比30%以上的户型,卫浴区防水建议做到1.8米高度。收纳系统规划可结合墙体结构,采用通顶柜体提升空间利用率。

该内容疑似使用AI技术合成,请谨慎甄别

编辑于2025-08-27 北京

投诉
#北京房产 #户型改造 #居住品质 #空间优化 #卫浴设计
说点什么…