1/6
淘气俏皮彤
关注

北京133㎡改善型户型设计趋势解析

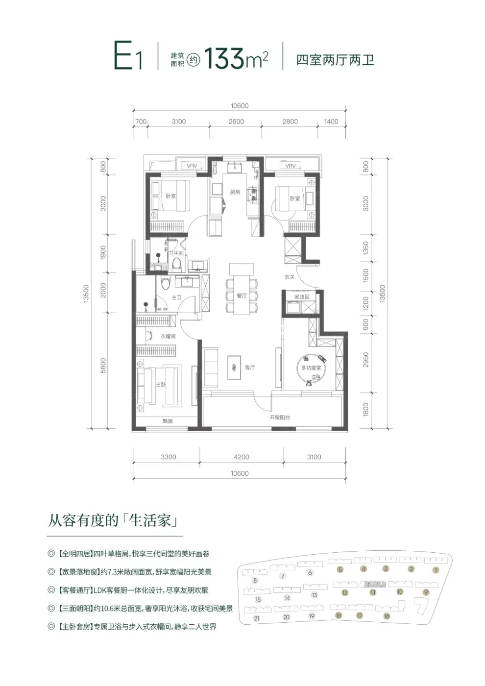
北京市面上133㎡改善户型呈现创新设计思路。昌平马池口区域某项目打造133㎡四居单元,采用南北通透格局形成三面采光效果。主卧套房配置独立卫浴,双次卧与多功能空间形成动静分离布局,家政区域设置单独通道提升日常便利性。

丰台大瓦窑片区某173㎡户型创新融入传统建筑元素,外立面宋式回形纹飞檐设计颇具辨识度。主卧飘窗预留改造空间,可转换为小型休闲区域。双入口家政间设计实现洁污分离,保留空间扩展可能性。

当前主流户型呈现三大设计共性:南向12-14米采光面保障双卧与客厅采光需求,75-82%实用率优于常规高层产品。收纳体系实现全屋覆盖,8-12㎡储物空间包含玄关柜、衣帽间等多功能模块。科技系统方面,新风与中央空调已成为改善型住宅标配。

建议选房时通过官方户型图获取精准尺寸参数,重点关注客厅4.2米以上开间尺度与主卧3.6米进深指标。厨房优先选择L型或U型操作台布局,确保烹饪动线合理性。样板间考察需注意家具比例缩放现象,建议携带激光测距仪现场复核关键尺寸。

该内容疑似使用AI技术合成,请谨慎甄别

编辑于2025-08-27 北京

投诉
#北京住宅户型 #空间设计指南 #改善型住房 #功能分区 #选房参考
说点什么…