1/7
房天下网签
关注

越秀·星樾爆火背后,真适合生活吗?

谁不想要81.6%得房率+现房交付?但当我在朱辛庄踩盘时,却发现这个网红盘藏着三大真相!

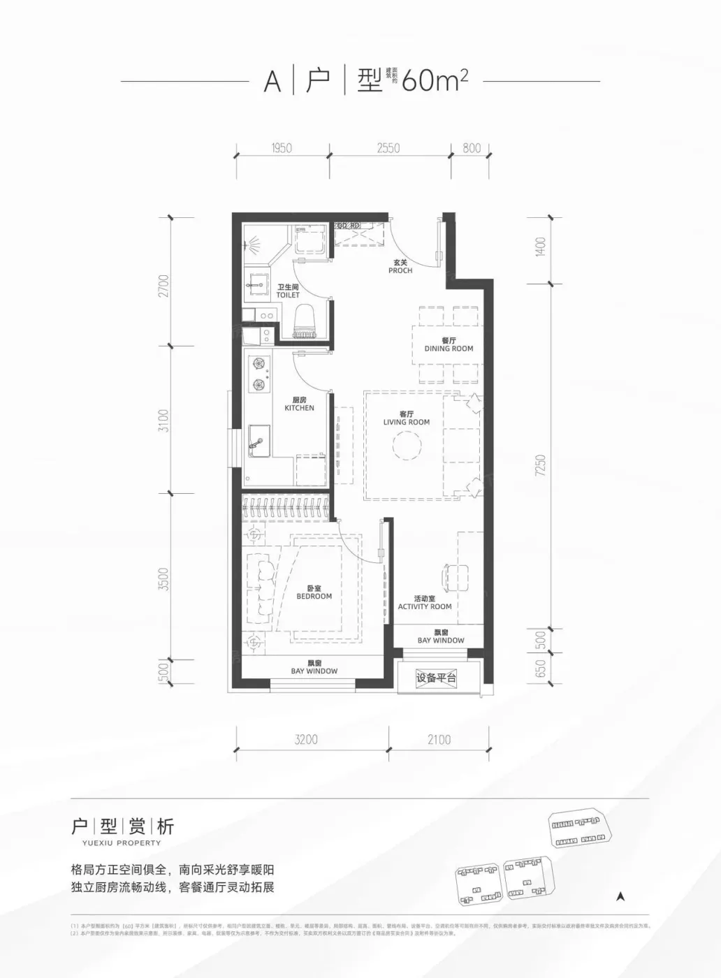
【户型魔术师也有软肋】96㎡三居能塞下双飘窗+LDK一体化确实香,但60㎡一居的玄关柜就藏在厨房背后,拿个快递要绕场一周!高拓飘窗变身咖啡角的改造术,更适合动手能力强的品质生活家。

【现房也怕买家秀】中轴樱花大道实景比效果图矮了半截,星空儿童乐园的塑胶地面还没交房就晒褪色。好在中央空调配智能马桶的「收房即住」承诺算数,科勒五金在阳光下确实闪着人民币的光泽。

【地铁房生存法则】离朱辛庄站876米是真,但三期东侧贴着地铁高架轨道!实测关窗后噪音分贝勉强能忍,但夜猫子想看星空会客厅的浪漫?建议自备降噪耳机。隔壁中海寰宇未来和大华启宸府正在贴身肉搏,想买这里的宝子建议先围观三个月价格战。

该内容疑似使用AI技术合成,请谨慎甄别

编辑于2025-08-21 北京

投诉
#北京新房测评 #户型设计 #现房真相 #朱辛庄楼市 #生活场景规划
说点什么…