1/3
南浪
关注
户型图
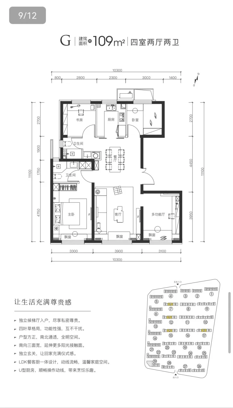
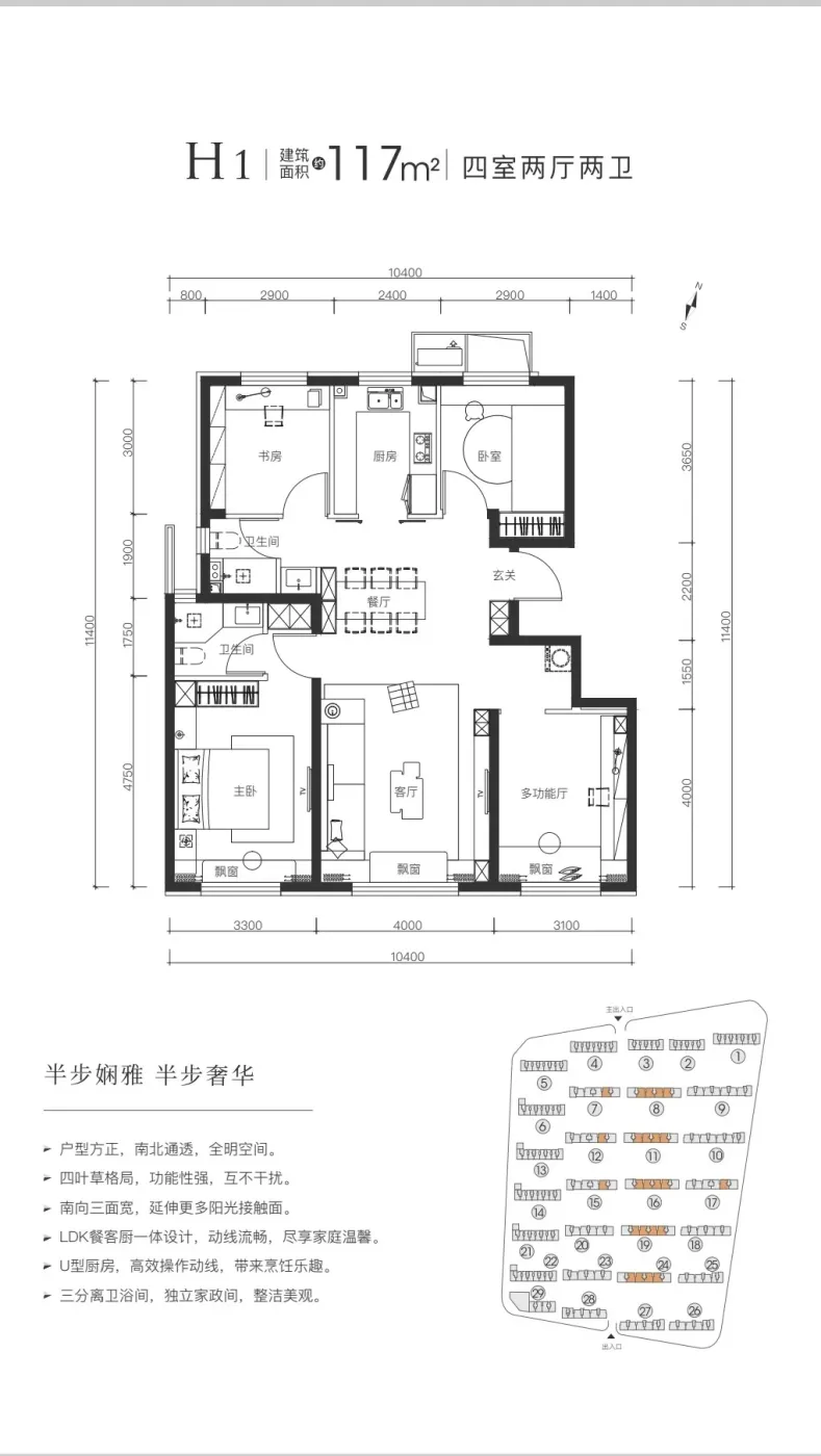
88-108-109-127户型图
2025-07-31 北京
投诉
说点什么…
点赞
评论