1/7
房圈资源库
关注

西城广安门新盘测评:通勤族&多孩家庭选这里值吗?

最近发现个魔幻现象:有人吐槽西城新房荒,转头就被玺源台·承玺63平起的小户型啪啪打脸。但这里真能同时满足通勤便利和二胎家庭需求吗?

闺蜜小林的故事特别有意思。夫妻俩在西单上班,大宝要读北京小学,二宝嗷嗷待哺,偏要找带双卫的户型。第一次看房就惊了:10号线六里桥站步行500米,早高峰通勤稳了;北京小学+十四中等名校环伺,确实是教育王牌区。但135平户型总价2000万+,次卧飘窗不能拆改,晾衣杆都没处挂。

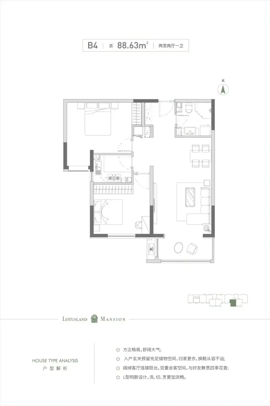
开发商很懂空间魔法,88平两居做了双飘窗咖啡角,配合4米面宽客厅确实诱人。但容积率4.0的硬伤摆着,27.7%的绿化率在二环外略显拘谨。看样板间时发现个细节:儿童房和老人房隔着客厅对角分布,深夜冲奶确实不扰眠,但户型图上看动静分区的走廊有3米浪费空间。

真相往往是立体的:这里确实是西城教育+交通双王炸,但低密改善客群要接受楼间距的现实。就像咖啡角改造术的辩证法则,空间利用总有得失。记住,房子是容器,生活才是内核。

该内容疑似使用AI技术合成,请谨慎甄别

编辑于2025-07-21 北京

投诉
#北京楼市 #西城买房攻略 #户型改造 #教育配套 #通勤房产
说点什么…