1/6
宅居百宝箱
关注

通州梨园新盘测评|能建·京玥兰园,地铁旁的家能打几分?

临河里地铁旁的家,真的适合新生代家庭吗?最近实地探访这个总价460万起的新盘,发现三个有意思的观察点:

①【位置双刃剑】步行792米到1号线临河里站的通勤便利,和周边育才学校构成核心卖点。不过项目北侧的老旧社区群芳园,让城市界面形成明显新旧割裂感。

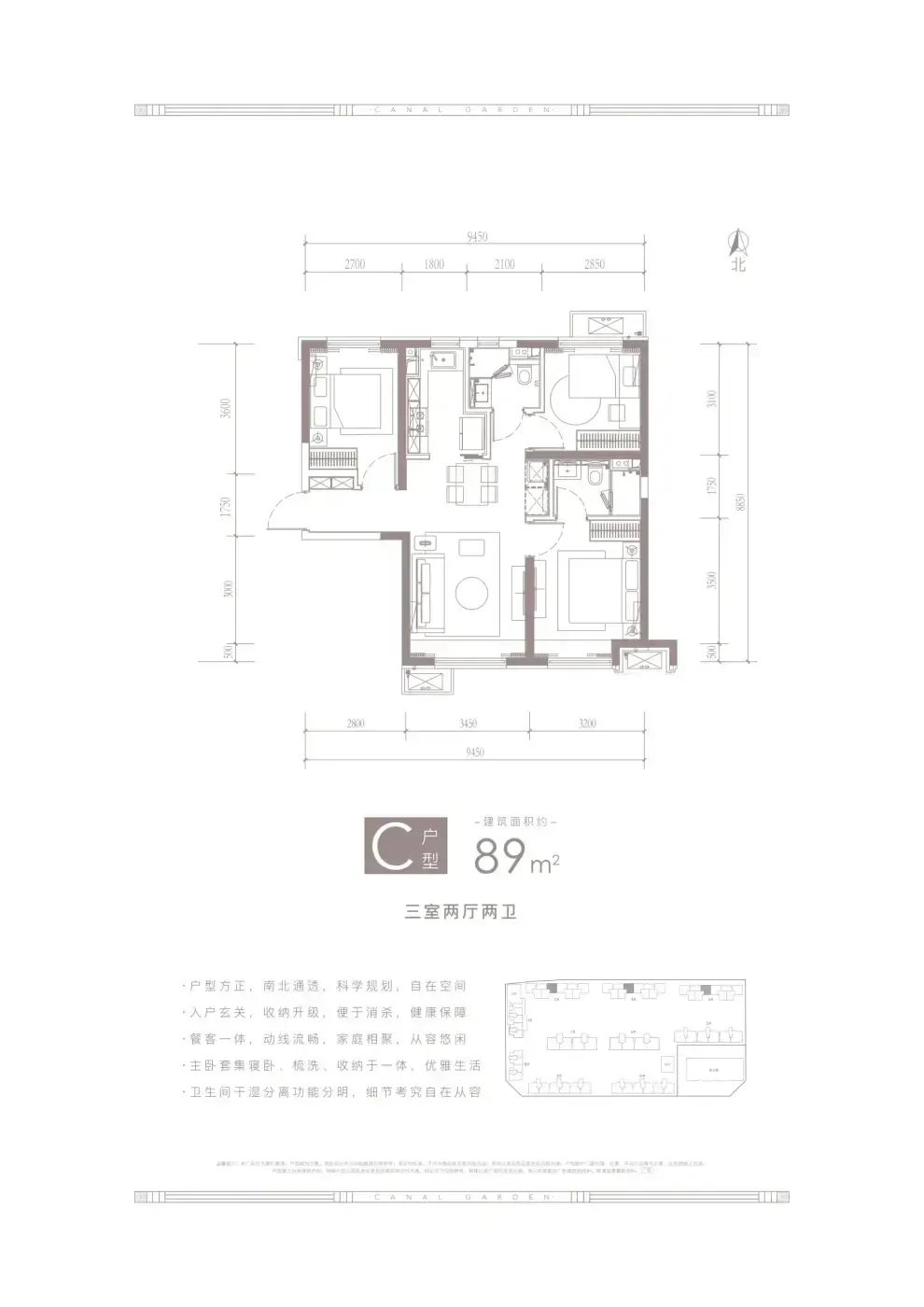
②【户型魔法师】主力75-135㎡户型确实玩转空间美学。举个栗子,89㎡三居通过「L型全景窗+双卫设计」,比周边同面积竞品多出约4㎡功能空间。不过135㎡四居北向次卧存在暗卫硬伤,建议选房时带把量角器测采光角度。

③【施工现形记】关注度最高的精装细节,从最新验房报告看:门窗划痕、壁纸拼缝等「小毛病」出现率约63%,但水电隐蔽工程合格率达92%。建议准业主收房时重点检查五金件松脱问题。

当社区东南角的群芳园菜市场烟火气飘进新居阳台,这种新老交替的融合感,或许就是京玥兰园最真实的日常。选择这里的你,既要享受它的烟火气,也要包容它的成长空间。

该内容疑似使用AI技术合成,请谨慎甄别

编辑于2025-06-13 北京

投诉
#北京新房测评 #梨园生活圈 #户型空间美学 #地铁房攻略 #收房避坑指南
说点什么…