1/4
程龙sq
关注

元启:家门口的学校,楼下是地铁站,但卧室飘窗太浪费?

最近北京楼市有个怪现象:要么选元启,要么在通勤路上认输。这个盘把黄城根小学和19号线南延线打包塞进600米生活圈,但飘窗面积快赶上半个卧室了...

■ 名校+地铁=完美生活?这个公式在元启可能要被重新计算

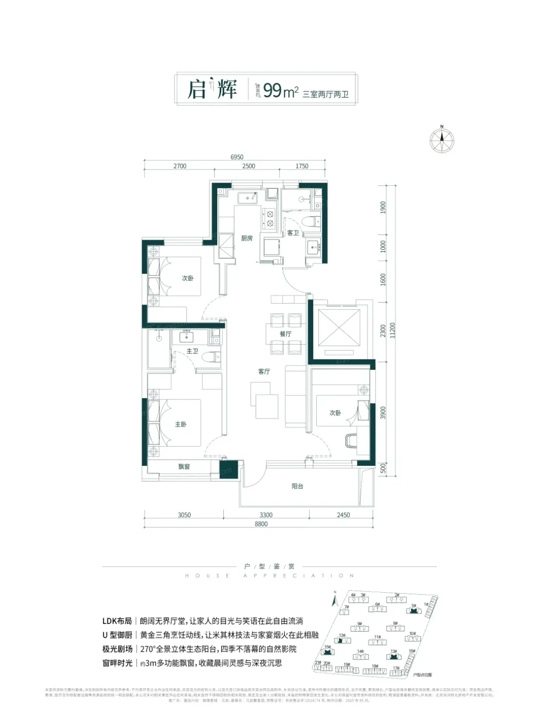
当别人在卷得房率时,元启的户型却在做「空间置换术」。比如88㎡三房把飘窗做到2米长,看似白送面积实则压缩了收纳空间——想象清晨在飘窗喝咖啡看书的画面很美好,但衣柜只能做成嵌入式才够用。

■ 动静分区暗藏「生活动线陷阱」

主推的99㎡三房户型把厨房放在入户门对角,取完快递要穿过整个客厅才能拆箱。倒是142㎡四房的双玄关设计,给遛狗回家留足了消杀缓冲区。

■ 西红门商圈还在「加载中」的AB面

楼下规划中的15万㎡商业体让人心动,但现阶段想喝杯星巴克得步行1.2公里。好在自带下沉会所把泳池、健身房提前兑现,雨天也能假装在度假。

当你纠结飘窗该改书桌还是猫爬架时,早高峰的地铁已经帮你抢到座位;当孩子在名校操场奔跑时,你可能正在盘算超市动线怎么优化...这就是元启给的辩证生活——用看得见的确定性,对冲发展中的未知数。

该内容疑似使用AI技术合成,请谨慎甄别

编辑于2025-06-06 北京

投诉
#北京新房测评 生活方式研究所 户型改造灵感 通勤族必备 西红门生活圈
说点什么…