1/6
菲菲sq
关注

通州打工人注意!万科东庐双地铁+九年一贯制,但户型选择要当心

听说最近通州只有两种房子:抢到万科东庐的,和没抢到的。作为深耕房地产20年的观察者,必须提醒各位:抢手≠完美!

打破一个认知误区——地铁盘未必适合所有人

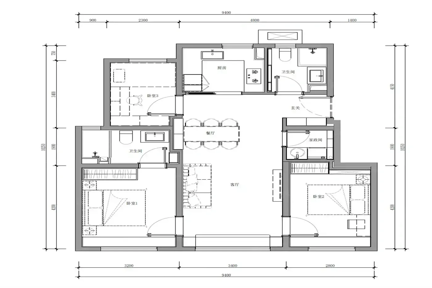
项目距离物资学院路站步行15分钟,对996打工人确实友好。但注意看户型:65㎡两居室总价近400万,主卧开间仅2.7米,放完床过道只剩30cm。这种户型给早出晚归的年轻人当过渡房尚可,但家有老人孩子就略显局促。

隐藏的学区真相要看清

虽然配建九年一贯制学校,但划片范围尚未公布。周边竞品缦云ONE、国誉朝华都在同个教育圈,建议关注2024年招生简章。不过项目容积率2.0确实碾压周边3.0+的竞品,低密社区对改善家庭更友好。

三居室暗藏玄机

89㎡三居室做到三面采光值得夸,但卫生间仅1个是硬伤。对比102㎡边户多出的1个卫生间和30万价差,建议二孩家庭直接冲边户。要注意的是,所有户型飘窗均不可拆除,改造党慎选。

买房这件事,适合别人的未必适合你。就像通勤便利和居住体验,总要找到自己的平衡点。你现在纠结的户型选择,五年前的我亦是如此。

该内容疑似使用AI技术合成,请谨慎甄别

编辑于2025-05-31 北京

投诉
#北京买房攻略 #通州学区房 #万科东庐评测 #户型避坑指南 #地铁房选择
说点什么…