1/3
美宅参谋团
关注

西四环「北京城建·玺院」值不值?优缺点扒光说透!

西四环改善房到底怎么选?号称「豪宅基因」的北京城建·玺院,真的能承载新生代家庭的生活理想吗?今天用生活场景带你看透真相!

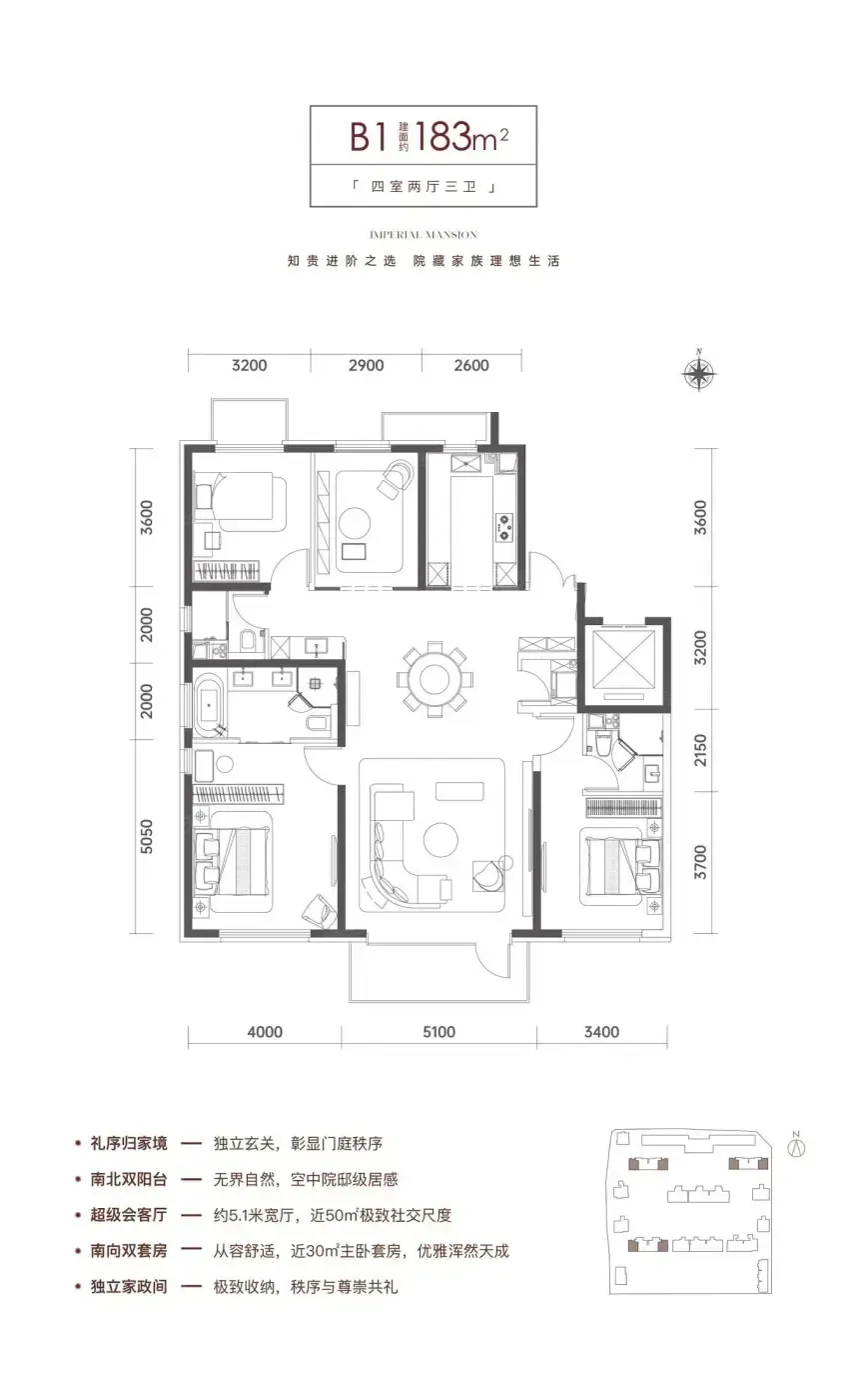
▼ 动静分区天花板?

户型确实做到主客分离,但183㎡四居次卧离公卫略远。实测深夜去卫生间要穿过5米走廊,家有老人需谨慎。不过南向双套房设计,三代同堂互不干扰是真的香!

▼ 地铁盘真相揭秘!

940米到大瓦窑站听着近,实测步行需12分钟。双轨交汇对望京通勤友好,但雨雪天带娃出门略显狼狈。好在社区规划人车分流,婴儿车进出超丝滑~

▼ 精装交付暗藏玄机!

厨房配置洗碗机解放双手,但吊柜高度对160cm主妇不太友好。飘窗改造潜力巨大,咖啡角/书桌都能DIY,不过低楼层采光会打折。

看完这些细节,你还觉得「豪宅」标签等于完美生活吗?房子终究要回归真实生活场景,你的日常痛点才是选房金标准!

该内容疑似使用AI技术合成,请谨慎甄别

编辑于2025-05-28 北京

投诉
#北京买房攻略 #西四环新房测评 #改善住房选择 #真实楼盘评测 #家庭居住规划
说点什么…