1/4
美宅参谋团
关注

大兴发展·梧桐府|永定河畔的烟火气,能治愈多少人的通勤焦虑?

听说最近北京楼市流行「第三空间」概念——除了公司和家,总要有个能喘气的地方。周末踩盘梧桐府时,站在222㎡样板间飘窗前突然懂了:当永定河的晚风穿过落地窗,案头咖啡和西晒阳光撞个满怀,这种「偷得浮生半日闲」的治愈感,确实比任何精装交付都动人。

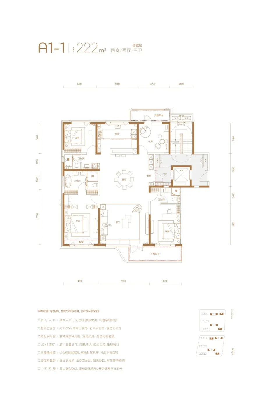
但冷静下来还是要说大实话:项目168-222㎡的四居户型,动静分区确实能玩出花——南向双套间给长辈留足尊严,北向书房改电竞房也不会吵到孩子。不过实测周边1公里内商业配套还在发育期,习惯了朝阳烟火气的朋友可能需要适应。

特别喜欢他们「会呼吸的玄关」设计:通顶鞋柜+雨伞烘干区+宠物洗澡台,把北京特有的沙尘天和突如其来的阵雨都安排得明明白白。但低密社区的通病也有——步行到最近地铁站要15分钟,早高峰得算好时间。

金句时间:「房子是生活的画布,户型决定了画笔的走向,而窗外风景才是灵魂的颜料。」当南城朋友在纠结「生态价值能不能当饭吃」时,梧桐府用永定河生态走廊给出解题新思路:周末骑行道变成孩子的自然课堂,滨河草坪就是现成的会客厅。

你向往推窗见绿的生活半径,还是执着于下楼即达的便利店帝国?要烟火气里的诗与远方,还是繁华中的方寸天地?当生态资源成为硬通货,每个选择都在重新定义「家的温度」。

该内容疑似使用AI技术合成,请谨慎甄别

编辑于2025-05-22 北京

投诉
#北京新房测评 #生态住宅 #生活美学 #居住体验 #户型设计
说点什么…