1/3
小小sq
关注

朝阳港·云筑倒挂7.5万?四环边「白菜价」背后的三大真相

四环现房卖不过期房?开发商在玩什么套路?今天用杠精视角扒开朝阳港·云筑的三大隐藏剧本!

【空间魔法师的障眼法】

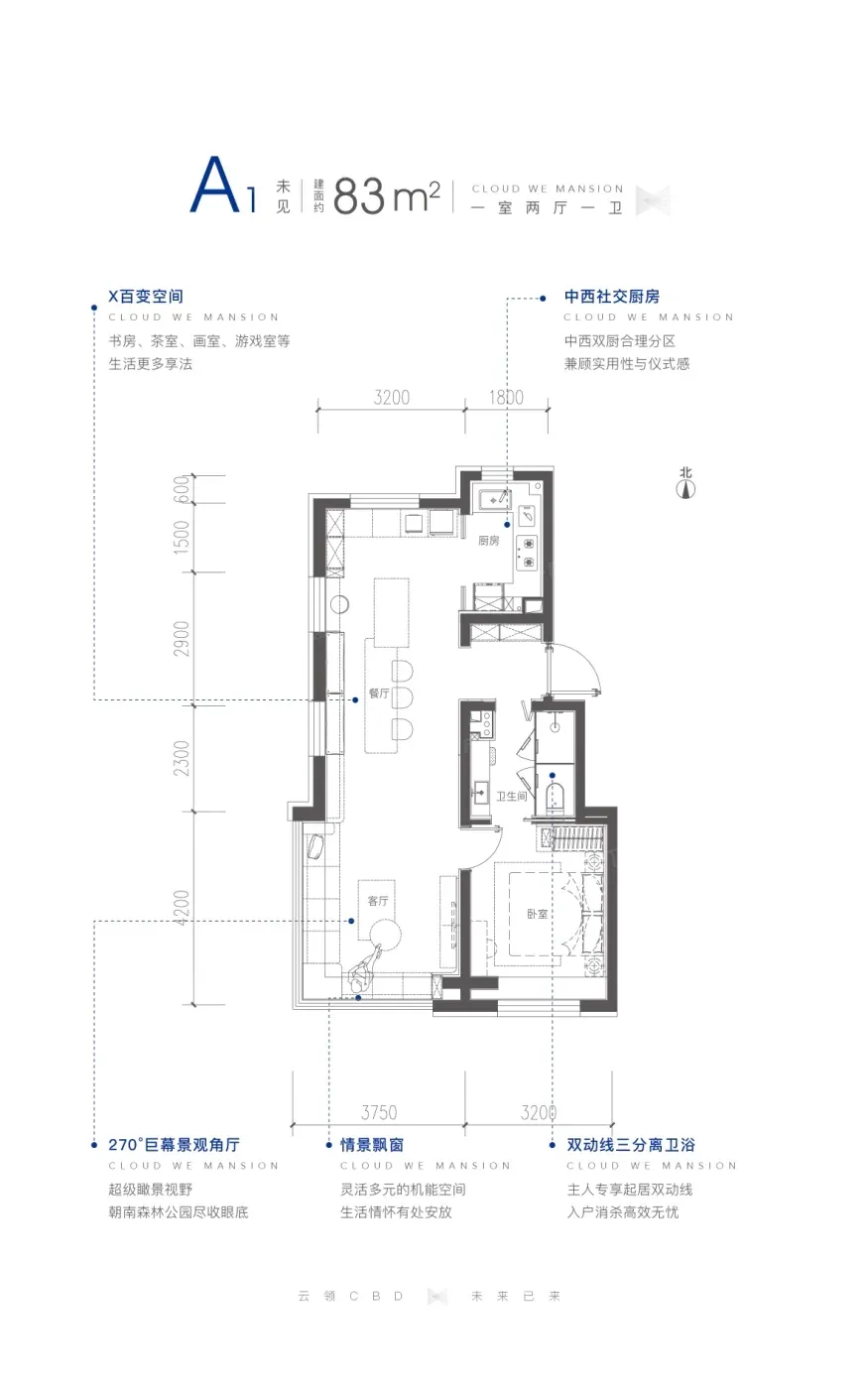
83㎡三居南向面宽10.5米看似血赚?北向次卧2.4米开间才是真刺客!样板间用折叠移门营造「百变空间」幻象,实际入住后定制家具成本够买半个飘窗柜。开发商敢标90%得房率,全靠75cm进深飘窗充数——改梳妆台要锯腿,改猫窝得防跳楼。

【规划红利的时空错位】

吹捧朝阳港TOD像15年前大望京?看看隔壁十八里店地铁站早高峰的「人体蜈蚣」名场面。规划中的18号线还在图纸阶段,现在的「地铁盘」标签就像预制板搭的彩虹桥——看着美好走着晃。

【精装包的俄罗斯套娃】

送车位送装修听着香?实测北向多功能房开间比儿童滑板车还窄,所谓「精装」在交付时大概率变身「简装PLUS」。开发商深谙心理学:当你为白得30万车位窃喜时,早就为溢价100万的空间魔术买了单。

现房不该是拆盲盒游戏!当你在沙盘前幻想未来时,建议带把卷尺量量飘窗的真实进深,打开手机查查地铁施工进度条。房子可以是诗和远方,但每个平方都要经得起游标卡尺的拷问。

该内容疑似使用AI技术合成,请谨慎甄别

编辑于2025-05-17 北京

投诉
#北京新房评测 #四环买房攻略 #房产避坑指南 #空间设计真相 #规划落地预测
说点什么…