1/5
鱼的记忆sq
关注

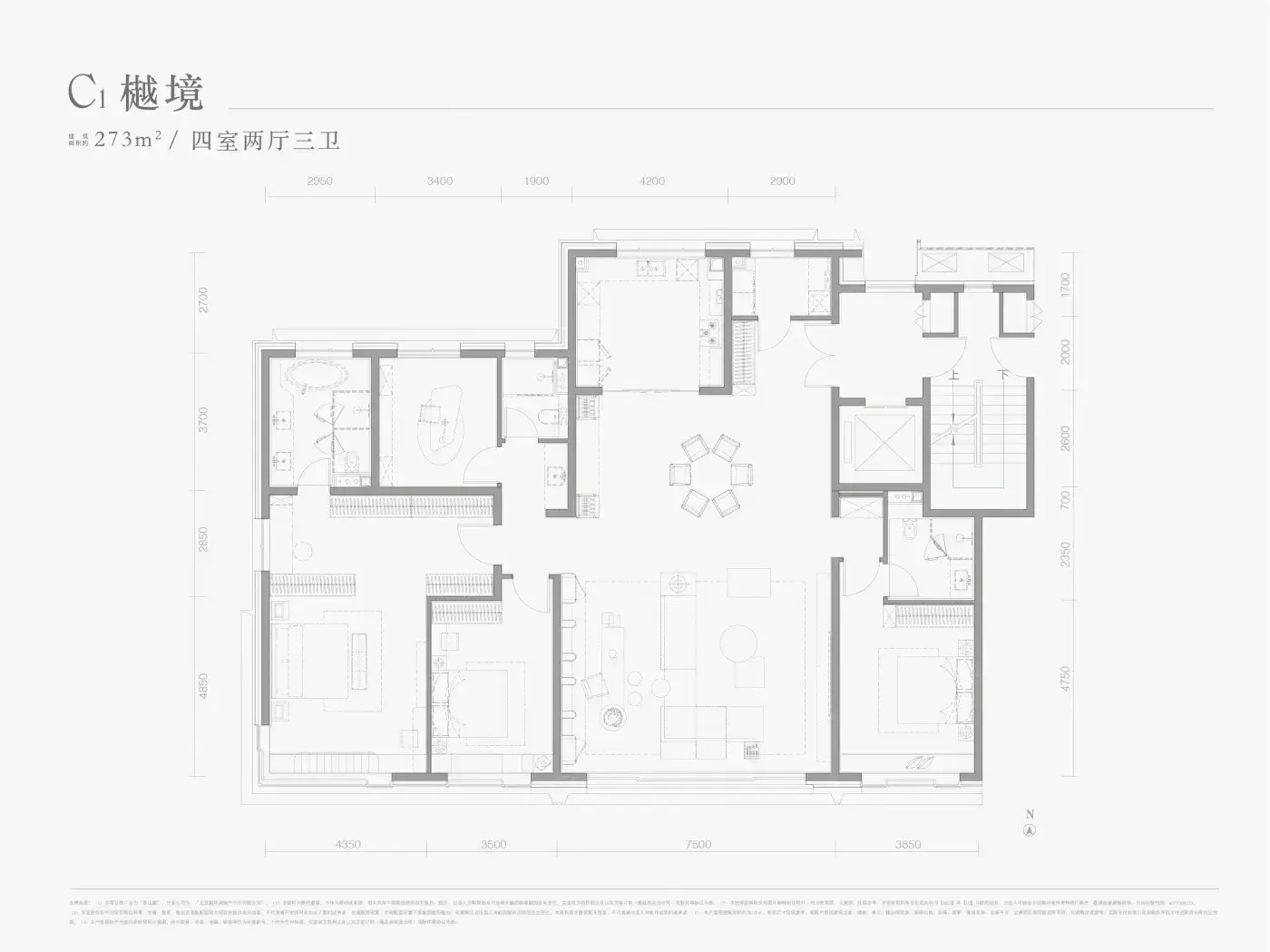
1.05容积率+4层平墅!440户家庭如何共享西山?

最近发现北京五环外有个神秘数字:1.05容积率搭配4层平墅,440户人家共享整片西山。朋友王哥刚搬进这样的社区,说每天开窗就像打开《千里江山图》。但入住三个月后,他家的飘窗咖啡角突然闲置了——原来西厨岛台正对儿童活动区,太太做饭时能盯着孩子写作业,这个设计让全家抢着用公共空间。

这种四叶草户型把三代人生活动线安排得明明白白,主卧带270°转角飘窗成了家庭影院,老人房配独立卫浴避免尴尬。但真实缺点也很明显:最近的商圈在3公里外,买杯奶茶要开车10分钟,快递柜偶尔爆仓。王哥却笑着说:"以前住CBD公寓,楼下就是商场,但全家半年没一起吃过晚饭。"

数据显示,这种低密社区的生活配套成熟度只有城市核心区的60%,但人均绿植接触时长是普通住宅的3倍。就像王哥家小朋友在作文里写的:"以前在阳台数车流,现在在露台数星星。"房子不是生活的全部,但能容纳你向往的生活样态。建议看房时带本诗集,说不定会邂逅属于自己的"悠然见南山"。

该内容疑似使用AI技术合成,请谨慎甄别

编辑于2025-05-16 北京

投诉
#低密生活 #西山居住体验 #户型设计 #改善型住房 #北京新房
说点什么…