1/5
星空明sq
关注

东坝红盘华樾国际,为什么有人爱到骨子里有人连夜退单?

最近朋友圈被华樾国际刷屏了!有人说这是东坝卷王,有人吐槽样板间像开盲盒。作为专注研究户型与生活关联性的博主,实测完89㎡三居后想说些大实话。

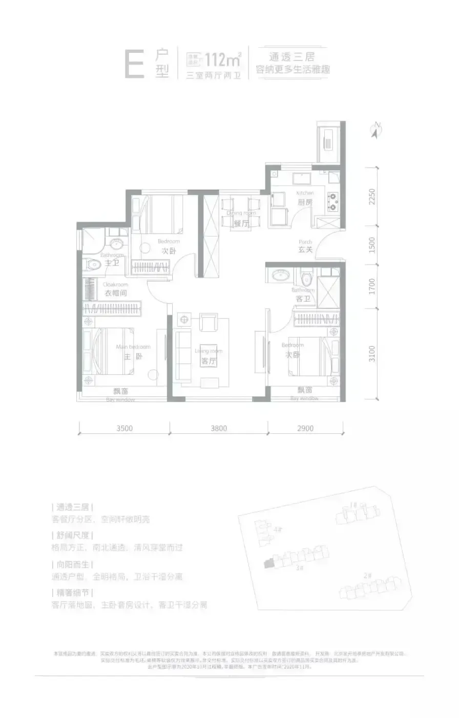
当北向次卧实测只有2.4米进深时,终于理解网友说的"给孩子买张书桌都要量三遍"。但南向主卧飘窗足足有80cm进深,改造成咖啡角后每天清晨都能闻着咖啡香看朝阳。

89㎡做三居确实够狠,但动静分区设计让客厅、餐厨与卧室形成天然结界。实测发现:主卧门距客厅3.2米,关门后分贝直降60%。不过需要提醒的是,样板间展示的112㎡户型实际得房率只有78%,这意味着你花40万买的可能是空气。

看到卫生间干湿分离设计时,突然想起老家同学120㎡大平层每次洗完澡都要擦整间浴室。但华樾国际部分户型厨房只有5㎡,当你在L型台面手忙脚乱煮泡面时,邻居可能正在开放式厨房优雅地煎牛排。

别人住的是房子,你住的是生活容器。当89㎡户型把飘窗变成观景台,把3.6米开间客厅变成家庭影院,那些被压缩的次卧面积,突然就成了为生活仪式感交的学费。

该内容疑似使用AI技术合成,请谨慎甄别

编辑于2025-05-15 北京

投诉
#北京新房测评 户型设计美学 华樾国际实探 生活容器研究所 买房避坑指南
说点什么…