1/4
onlysq
关注

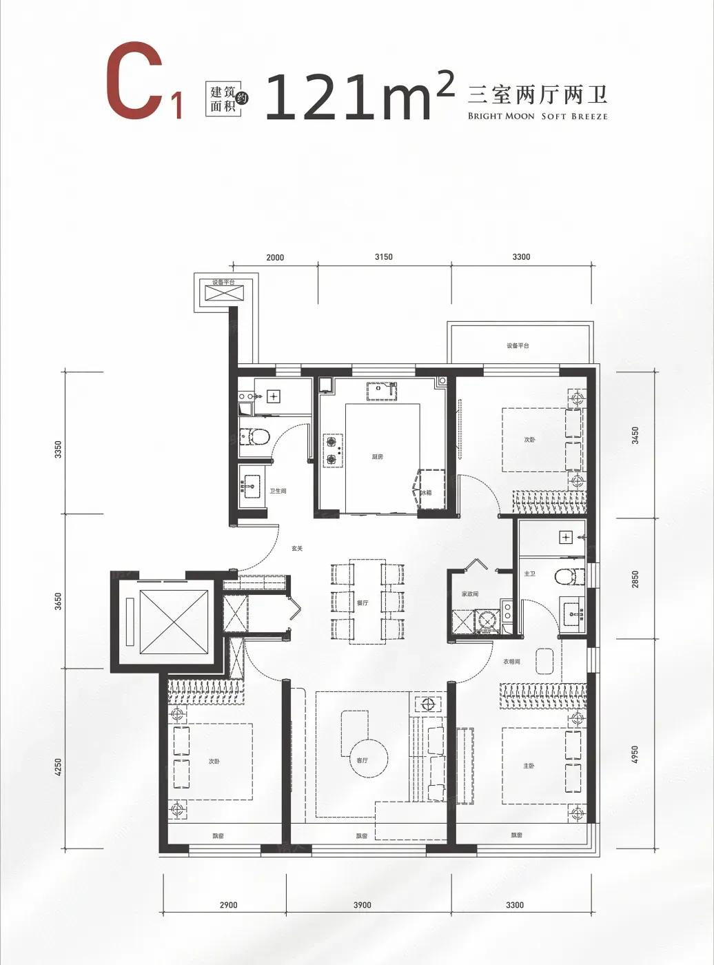
晓月和风户型大公开|121㎡做到全南向采光?看完想换房了

救命!现在的户型设计师是住过胶囊公寓吗?怎么把空间利用得这么绝!

上周末探盘的晓月和风,每个户型都藏着小心机:121㎡三居室居然实现全南向采光,主卧自带270°转角窗!更夸张的是144㎡四居,次卫和家政间共享下水管道,光水电改造就能省3w+

重点夸夸88㎡样板间,玄关柜暗藏折叠换鞋凳,厨房地柜标配下拉篮,连冰箱位都预留了散热空间!物业小哥偷偷说,他们实测过阳台承重,放三个大花盆完全没问题~

最让我心动的是176㎡顶配户型,在客厅装了整面生态绿植墙,温湿度自动调节!建议收藏这条,下次看房直接对照查细节,分分钟变身验房小能手~

该内容疑似使用AI技术合成,请谨慎甄别

编辑于2025-05-10 北京

投诉
#户型改造指南 #空间利用技巧 #装修避坑攻略
说点什么…