1/3
瑞通sq
关注

合景寰汇公馆|通州家长必看:30秒拆解教育配套真相

最近被问爆的划片上学问题 今天实地带着测距仪来了 项目距离通运门站836米是事实 但所谓的教育资源配套需要冷静分析 周边3公里内有北京小学通州分校不假 但写字楼性质物业是否会影响入学资格要打问号

开发商宣传的2025年3月交房时间也暗藏玄机 北京中小学入学登记通常在5月 这意味着当年入学的家庭要赌交付不延期 建议带着购房合同直接咨询教委更稳妥

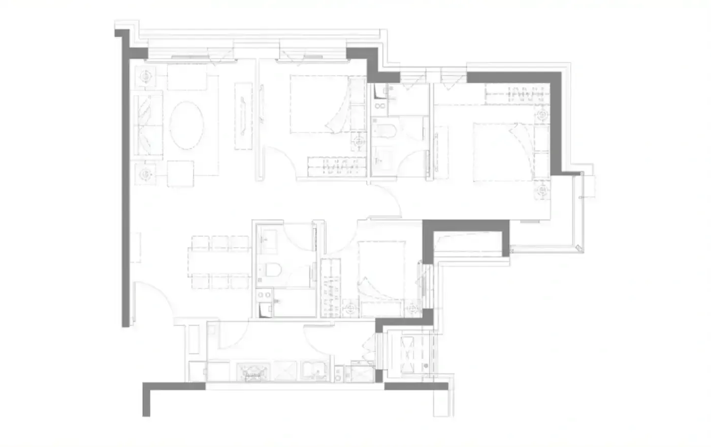
不过107平三室户型确实击中改善家庭痛点 主卫能放下浴缸的设计在通州新房市场少见 但要注意样板间镜面墙让空间显大的障眼法 实际交付时记得带卷尺验收

该内容疑似使用AI技术合成,请谨慎甄别

编辑于2025-05-10 北京

投诉
#通州教育配套解析 #北京购房指南 #家庭生活空间设计 #房产避坑攻略
说点什么…