1/4
金安萍sq
关注

北京新盘观察|融创户型设计藏着哪些小心机?

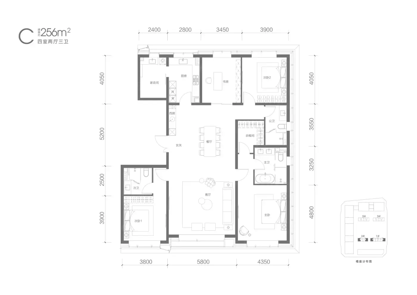
最近研究融创壹号院户型图到凌晨三点,发现设计师绝对是细节狂魔!就拿256㎡户型来说,家政间藏在厨房背后,动线完全避开客厅;主卧衣帽间预留了行李箱专区;连玄关都做了双层收纳系统。

更妙的是"成长型空间"设计,儿童房预留了未来打通的可能性。书房墙面预埋了穿线管,改电竞房都不用砸墙。这些藏在户型图里的人性化设计,可能比降价实在多了。

建议要去看房的朋友带把卷尺——他们的飘窗进深做到80cm,能直接当榻榻米用。现在明白为什么说"好房子自己会说话"了吧?欢迎设计师朋友来评论区battle户型设计!

该内容疑似使用AI技术合成,请谨慎甄别

编辑于2025-05-02 北京

投诉
#户型设计解析 #北京新房评测 #装修灵感库
说点什么…