1/3
星空明sq
关注

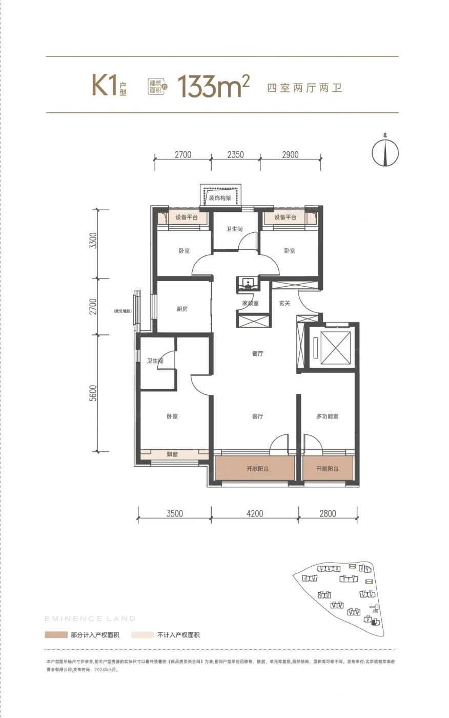
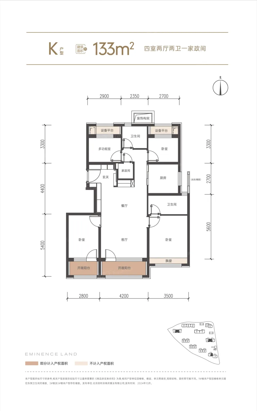
这个户型真的能打吗?实测后我闭嘴了

抱着挑刺心态去看中建新盘,结果被133㎡四居整破防了!北向房间居然也能全天采光?原来是把设备平台做成270°转角窗!厨房动线比我现住的大平层还合理,双开门冰箱旁边就是岛台,转身就是蒸烤箱组合。最绝的是家政间藏在玄关后,取快递-拆箱-洗烘动线一气呵成。看完默默把收藏的「网红户型图」全删了...原来真·改善盘早把细节做到纳米级!

该内容疑似使用AI技术合成,请谨慎甄别

编辑于2025-04-19 北京

投诉
#户型实测 #细节控狂喜 #北京新房测评 #空间魔法
说点什么…