1/2
王富艳sq
关注

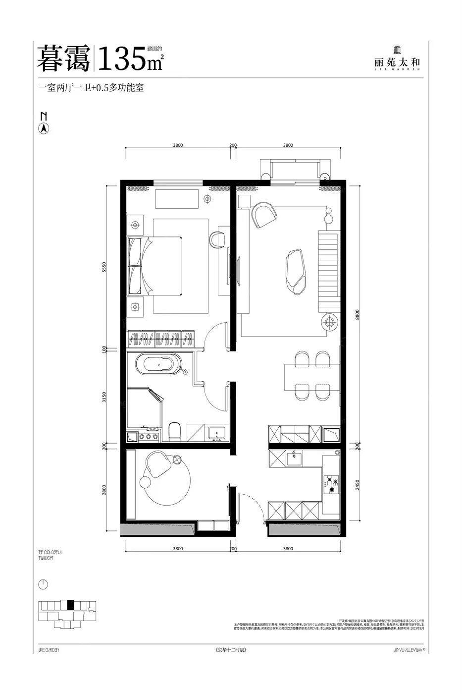
建筑系学姐的户型解剖课

毕业论文就写二环内住宅进化史,看到这个盘的135平户型直呼专业!7米面宽客厅正对小区中庭,L型厨房避开承重墙可改开放式。重点夸夸3.15米层高,比周边老豪宅多出30厘米空气感!

但必须吐槽所谓「动静分离」:主卧和次卧门对门的设计,真的考虑二胎家庭需求了吗?卫浴间暗卫问题倒是用三循环新风解决了。准备做深度实测,想看拆解的点个赞!

该内容疑似使用AI技术合成,请谨慎甄别

编辑于2025-04-18 北京

投诉
#户型深度解析 #住宅设计逻辑 #空间规划奥秘
说点什么…