1/3
王富艳sq
关注

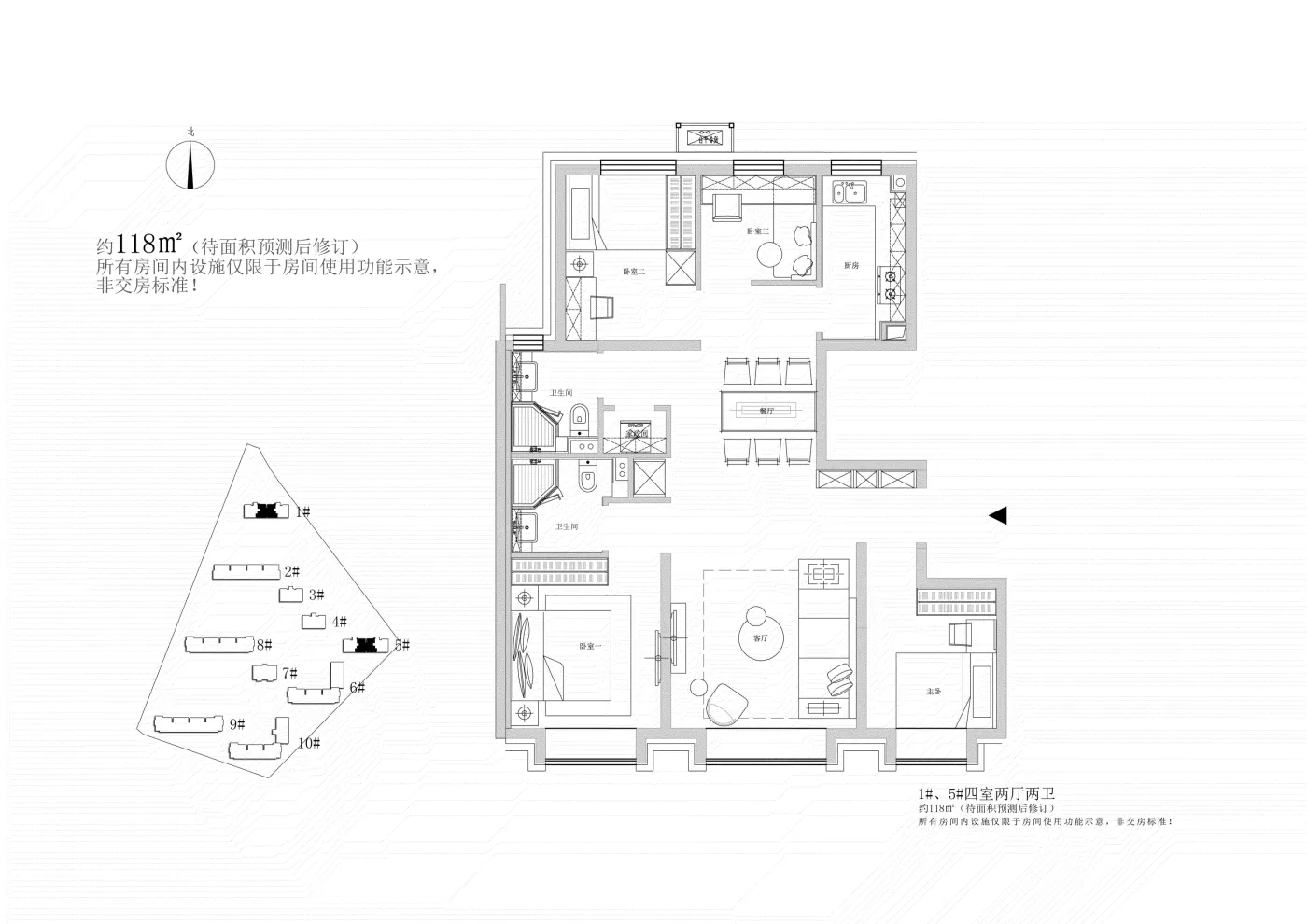
北京通州这个四居室让我想立刻搬家!

周末看房意外发现神仙户型!

118㎡做四居还能保持3.3米层高

主卧270°转角飘窗直接封神

最绝的是儿童房和老人房中间隔着客厅

三代人住互不打扰又有照应

厨房预留了双开门冰箱位+中岛台

开发商居然把收纳空间算到毫米级

连玄关换鞋凳下都藏着抽屉

现在买还能选到中间楼座

站在阳台就能看社区中央园林

想问买过这个盘的姐妹

物业费包含哪些服务呀?

该内容疑似使用AI技术合成,请谨慎甄别

编辑于2025-04-15 北京

投诉
#四居室设计 #家庭空间规划 #通州新房评测 #生活场景设计 #居住细节控
说点什么…