1/3
倪克文sq
关注

户型选择困难症必看!560万在五环能买到怎样的四居室?

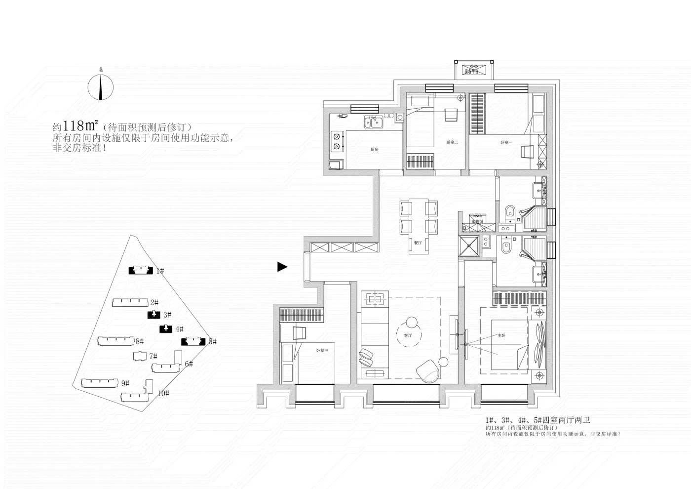
周末探盘发现宝藏!这个五环边的四居室让我重新认识了空间利用率💡 118㎡居然能隔出独立家政间+双卫浴+儿童游戏区!

现场实测主卧开间3.6米,放完2米大床还能摆下梳妆台+婴儿床👶 最妙的是L型飘窗设计,闺蜜当场脑补出咖啡角+书吧的改造方案。不过北向的次卧确实有点小,实测宽度2.7米,放完衣柜就剩1米过道...

看到样板间才懂什么叫细节控!玄关柜自带旋转鞋架,卫浴做了双地漏防堵设计,连空调外机位都预留了降噪隔板🔇 但厨房操作台面只有5米,对烘焙爱好者可能不太友好🧁

现在特别好奇,560万这个价位在五环边能买到四居室,是不是真的性价比之选?有没有懂行的来说说,同等预算还有更好的选择吗?

该内容疑似使用AI技术合成,请谨慎甄别

编辑于2025-04-07 北京

投诉
#四居室测评 #五环新房对比 #家居空间改造 #精装细节解析 #新生代置业
说点什么…