1/5
玛卡巴卡
关注

新消息—国贸海屿佘山年底入市

上海松江佘山全新项目—国贸海屿佘山即将入市,规划有小高层、合院和叠加产品,指导价4.9万元/㎡。社区设计人车分流,周边商业资源丰富,教育、交通配套齐全。喜欢这一区域的朋友们,可以关注一下这个新盘。

这个小区的东侧有一片超大的绿地,南边也有两块绿地,真的是绿化做得不错。社区里配套设施也很全面,包括养老服务、老年活动室、居委会和文化活动室等。

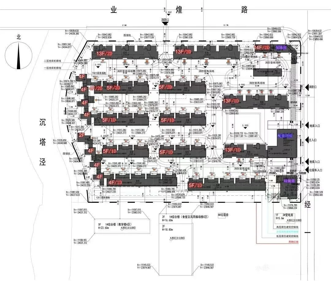
这块地的容积率是1.8,主力产品有13层的小高层、4-5层的叠加产品和2-4层的合院。小区西侧靠近沉塔泾的地方有几栋建筑进行了调整,比如12号楼的P站调到了西南角,垃圾房和K站还连在一起。考虑到电力部门的要求和住户的日照问题,有些楼栋的间距和层数也做了相应的调整,目标是让每一户的居住环境都更舒适。

这个项目的位置也很好,离山姆会员店只有900米,周边的商业配套非常丰富,有青浦奥特莱斯、合生新天地、元祖梦世界等大型商业体。周围的学校资源也很强大,有佘山外国语学校、协和双语学校、宋庆龄学校等。交通方面,自驾非常方便,离G50高速入口只有2.5公里,周边还有嘉松中路、沈海高速、嘉闵高架路等主干道,去大虹桥和市区都很方便。

此外,国贸海屿佘山的产品设计也很有亮点,提供了多种户型选择,满足了不同家庭的需求。对于有老人居住的家庭来说,社区内的养老服务设施和老年活动室也非常贴心。总的来说,这个项目在各方面都做得非常到位,是一个值得关注的优质楼盘。

2024-11-13 北京

投诉
说点什么…