³Á¼Å¶àÄê£¬ÏæÌ¶Î¨Ò»Ì¨×ʵزúÏîÄ¿»»¶«¼Ò£¬¹éÀ´ÔÚ¼´£¡
ÄÇÒ»ÌìµÄɽºÍÊ÷2019/03/28 17:14
¾Å»ªÐÂÇøÓÐÒ»ÌõËijµµÀµÄ¶«Î÷×ßÏòÊÐÕþµÀ·£¬Ãû½Ð¡°¿ªÔ´Â·¡±¡£ÔÚĿǰÒѳɹæÄ£µÄ¾Å»ªÊÐÕþµÀÂ·ÍøÂçÖУ¬Ëü²¢²»¿í³¨£¬Ò²Ì¸²»ÉÏÊǹؼüÖ÷¸ÉµÀ¡£µ«¾ÍÊÇÕâÌõ·£¬³ÉΪ¾Å»ª»ùʯËùÔÚ£¬¾Å»ª×î³õ½¨ÉèµÄ¼¸ºõËùÓзǹ¤ÒµÉèÊ©»ù±¾¶¼¼¯ÖÐÔÚÕâÌõ·ÉÏ£¬¹ÊÃû¡°¿ªÔ´¡±¡£ÕâÆäÖÐ×ÔȻҲ°üÀ¨Á˾ŻªÆô¶¯µÄÒ»Åú·¿µØ²ú¿ª·¢ÏîÄ¿£¬¶øÔÚÕâÅúµì»ùÁ˾ŻªµØ²ú°å¿éµÄ´´Ê¼ÏîÄ¿ÖУ¬ÓÐÒ»¸öÏà¶ÔÌØÊâµÄµØ²úÏîÄ¿¡°ÏæÌ¨¹ú¼Ê»¨Ô°¡±£¬ËüÊÇÄ¿Ç°ÎªÖ¹ÏæÌ¶µĄ̈×ʱ³¾°µØ²úÏîÄ¿¡£²»½öÈç´Ë£¬ËüµÄ´æÔÚ»¹ÌåÏÖÁËÔçÆÚ¾Å»ªÔÚ´´ÒµÊ±µÄÒ»Ð©ÌØÕ÷¡ª¡ª×öÊ´ֲڣ¬µ«¸ÒÏë¸Ò¸É£¬ÈݵÃÏÂÃÎÏ룬ҲÄܰüÈÝÍýÄÈÃÒ»ÇÐÔÚÒ°ÂùÉú³¤Öз¢Õ¹¡£
¿ªÔ´Â·ÓëÏæÌ¨¹ú¼Ê»¨Ô°ÇøÎ»±ê×¢
¿ÉÒÔÈ·¶¨µÄÊÇ£¬µ±³õ¡°ÏæÌ¨¹ú¼Ê»¨Ô°¡±µÄµ®Éú£¬¾ÍÊÇһȺ̨Íå¼®ÉÌÈËÁ¦Í¼ÔھŻªÌÔ½ðµÄ²úÎï¡£ËûÃÇץסÁËÏæÌ¶¶ÔÓŲ́ÉÌͶ×ʶøÑÔÊ®·Ö¶ÌÔÝÇÒ½öÓеĴ°¿ÚÆÚ£¬ÔÚ2009Äêǰºó½øÈëÏæÌ¶²¢ÇÒÆô¶¯ÁË¡°ÏæÌ¨¹ú¼Ê»¨Ô°¡±µÄ¿ª·¢ÔË×÷¡£Óм£Ïó±íÃ÷£¬µ±³õÏîÄ¿µÄÄ»ºóͶ×ÊÈ˳ýÁĘ̈×Ê£¬»¹ÓнøÈë¾Å»ªµÄÆäËûÍâ×Ê¡£Òò´Ë¿ÉÒÔ˵£¬¡°ÏæÌ¨¹ú¼Ê»¨Ô°¡±ÆäʵÊÇÍâ×ʶÔÏæÌ¶Â¥ÊеÄÒ»´Î¼¯ÖÐÊÔË®¡£¶øÖ§³ÅÕâȺÍâÉÌͶ×ÊÈËÃÎÏëµÄ»ù´¡£¬Êǵ±Ê±¾Å»ª²»¿É˼ÒéµÄµÍµØ¼Û£¬ÒÔ¼°Èç½ñÉÌÒµ»¯µØ²ú¿ª·¢²»¿ÉÄÜÔÙÓеļòµ¥¹ºµØ·½Ê½¡ª¡ªÐÒéתÈá£
Ôø¾µÄ¡°ÏæÌ¨¹ú¼Ê»¨Ô°¡±ÕûÌåÄñî«Í¼£¨ÖÆ×÷ÓÚ2011Äêǰºó£©
ÓеÍÁ®µÄ½»Ò׳ɱ¾×öµ×£¬¶øµ±Ê±µÄÏæÌ¶Â¥Êл¹´¦ÔÚ¡°µçÌÝ·¿¡±Óë¡°Â¥ÌÝ·¿¡±²¢´æÓÚÒ»¸öÊг¡µÄ¹ý¶ÉʱÆÚ£¬Ëùν¡°Â¥ÅÌÆ·ÖÊ¡±ÔÚÏæÌ¶·¿²úÏû·ÑȺÌåÖÐҲûÓÐÔ¼¶¨Ë׳ɵįձé¹ÛÄÕâ¾ÍΪ¡°ÏæÌ¨¹ú¼Ê»¨Ô°¡±ÀûÓÃÆä13ÍòƽÃ׵ؿé´òÔì¡°Æ·ÖÊÂ¥ÅÌ¡±Ô¤ÁôÁ˷ḻµÄ»ØÐý¿Õ¼ä¡£Îª´Ë£¬¿ª·¢ÉÌ×ÅÁ¦ÓªÔìÏîÄ¿µÄ¸÷ÖÖÓëÖÚ²»Í¬£¬ÀýÈç¶ÔÓÚǰÍùÊÛÂ¥²¿×ÉѯµÄ¿Í»§£¬¸øËûÃǶËÉÏÀ´µÄË®±Àï³Ë·ÅµÄ²»ÊÇ´¿¾»Ë®£¬Ò²²»ÊÇÆÕͨÂ̲裬¶øÊÇרÈËÅݳöµĄ̈Íå¸ßÉ½ÔÆÎí²è£¬ÓÉ´ËÕ¹Ïֵľ«ÖÂϸ½Ú£¬ÖÁ½ñÄÑÍü¡£
Ôø¾µÄ¡°ÏæÌ¨¹ú¼Ê»¨Ô°¡±Éè¼Æ·½°¸Ö®Ò»
ÕýÊÇÔÚÕâÑùµÄ»·¾³Ï£¬¡°ÏæÌ¨¹ú¼Ê»¨Ô°¡±ÔÚÉè¼ÆÊ±¾Í±»¸³ÓèÁËÖÚ¶àÂôµã£¬ÈçÉÏͼËùʾ£¬À¶É«Ô²È¦±ê×¢µÄÊÇË®¾°£¬³ÈÉ«·½¿ò±ê×¢µÄÊÇÌåÓýÉèÊ©£¬ÂÌÉ«Èý½Ç±ê×¢µÄÊÇÓ×¶ùÔ°£¬ÕâЩÉèÊ©ÔÚ2010ÄêǰºóµÄÏæÌ¶Â¥ÊÐÖпÉνг±£»¶ø×÷Ϊ¡°ÏæÌ¨¹ú¼Ê»¨Ô°¡±Ô°ÁÖÌØÉ«µÄ²¿·Ö£¬¿ª·¢ÉÌ¿ÌÒâ±£ÁôÁ˵ؿéÖеÄ×ÔȻɽÇð£¬ÒÔ´ËÓªÔìÂ̵أ¬³ÉΪÏîÄ¿×îÉÁÁÁµÄÃûƬ¡ª¡ª¡°´òÔì´¿Õý̨ÍåɽÁÖ¾ÓËù¡±¡£Î§ÈÆ×ÅÕâЩ԰ÁÖ¾°¹ÛºÍÉçÇøÉèÊ©µÄ£¬ÊÇ31´±¸ß²ãÓëС¸ß²ãסլ¥ÓëÅäÌ×ÉÌÒµ½¨Öþ¼°È«µØÏÂÍ£³µ¿âËù×é³ÉµÄÔ¼45ÍòƽÃ׵Ľ¨ÖþÉèÊ©¡£ÔÚµ±Ê±µÄÏæÌ¶Â¥ÊУ¬ÕâÒѾÊÇÃû¸±ÆäʵµÄ´óÅÌ¡£´ËÍ⣬µĄ̈ʽ»áËùÓëÐ¡Çø¸½Êô¸ß¶û·òÁ·Ï°³¡£¬ÒÔ¼°´óÃæ»ýÔùË͵ϧÐÍ£¬ÕâЩÍê³ÉµÄϸ½Ú£¬¶¼ÖðÒ»³ÉΪ¡°ÏæÌ¨¹ú¼Ê»¨Ô°¡±¶ÔÍâÐû´«µÄ½¾°ÁËùÔÚ£¬¿ÉνÉÁÁÁÁ«³Ç¡£
È»¶ø£¬Ò»ÇÐÉÁÁÁÔÚ2014Äêê©È»¶øÖ¹£¬µ±Äê¡°ÏæÌ¨¹ú¼Ê»¨Ô°¡±ÔڵؿéÄϲ¿µÄÒ»ÆÚ¿ª·¢½Ó½üβÉùʱͻȻֹͣÁ˺óÐøÐû´«£¬Í¬Ê±¿ª·¢ÉÌÒ²·¢ÉúÁ˹¤ÉÌÐÅÏ¢±ä¶¯£¬ÏÔʾͶ×ÊÈËȺÌåÄÚ²¿³öÏÖ²»Îȶ¨×´¿ö£¬ÆäÖÐϸ½Ú²»Îª¾ÖÍâÈËËùÖª£¬²»¹ý2012ÄêÖ®ºóµÄÏæÌ¶·¿µØ²úÊг¡ÖÜÆÚµ÷ÕûÏÔÈ»ÊÇÍÆ¶¯ÕâÒ»±ä»¯µÄÖ÷Òò£¬¼Ǫ֮́×ÊͶ×ÊÈËÔÚ¾Àú2010ÄêǰºóÒ»¸ö¼«Îª¶ÌÔݵĴ°¿ÚÆÚºóÖ±½ÓÃæÁÙÕþÖλ·¾³±ä»¯´øÀ´µÄͶ×Ê·çÏÕ£¬¶¼Ê¹µÃ¡°ÏæÌ¨¹ú¼Ê»¨Ô°¡±ºóÐø¿ª·¢ÄÑÒÔΪ¼Ì£¬Õû¸öÏîĿͣÖÍÔÚÁËÒ»ÆÚ½»·¿Ö®ºó£¬Ïà¹ØÐÅÏ¢¸üÐÂÔÚ2016ÄêºóÈ«ÃæÍ£Ö¹£¬»ù±¾±»Êг¡ÒÅÍü¡£
2018ÄêÄê³õ£¬¡°ÏæÌ¨¹ú¼Ê»¨Ô°¡±ÏîÄ¿µÄÄ»ºóͶ×ʹ«Ë¾·¢Éú±ä¶¯£¬²¿·ÖÔͶ×ÊÈËÀ볡»òÍ˾ӶþÏߣ¬Ò»¼Ò×¢²áµØÔÚ³¤É³µÄµØ²ú¹«Ë¾¶ÔÆä½øÐÐÁËÖØ×飬´Ó¶ø½ÓÊÖÁË¡°ÏæÌ¨¹ú¼Ê»¨Ô°¡±Ïà¹Ø×ʲú¡£Óм£ÏóÏÔʾ£¬Õâ¼Ò³¤É³¹«Ë¾µÄʵ¼Ê¿ØÖÆÈËΪ¹úÄÚÐÐÒµÅÅÃûǰ40룬ÓÉÔÁÒáÉÌÈ˽¨Á¢µÄÃöϵµØ²ú¹«Ë¾¡ª¡ª¸£êɼ¯ÍÅ£¬²¢ÇÒ´Ëǰ¸£êɼ¯ÍÅÒѾÒÔͬÑùµÄÐÎʽ½ÓÊÖÁËÏæÌ¶ÁíÒ»¸öµØ²úÏîÄ¿¡ª¡ªÎ»ÓÚÏæÌ¶Ó볤ɳ½»½ç´¦µÄ¡°ºÍ´ï±õ½»¨Ô°¡±£¬¡°ÏæÌ¨¹ú¼Ê»¨Ô°¡±ÊǸ£êɼ¯ÍÅÔÚÏæÌ¶½ÓÊֵĵڶþ¸öµØ²úÏîÄ¿£¬¸ÃÏîÄ¿ÓÉ´ËÖØÆôÁËÆä¿ª·¢¼Æ»®¡£
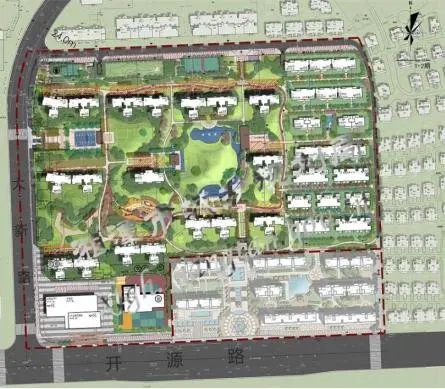
2018ÄêϰëÄ꣬¡°ÏæÌ¨¹ú¼Ê»¨Ô°¡±¼Ó¿ìÁËÖØÐÂÔË×÷µÄ²½·¥£¬ÓÚÄêµ×ͨ¹ýÁËÏæÌ¶¹æ»®Ö÷¹Ü²¿ÃŵĹ滮µ÷ÕûÉóÅúÓ빫ʾ£¬½ø¶øÓÖÔÚ2019ÄêÄê³õÍê³ÉÁËÊ©¹¤Ç°µÄ½¨É蹤³ÌÉè¼Æ·½°¸£¨×Üͼ¼°½¨Öþ·½°¸£©Éó²é£¬ÎªÏîÄ¿ÖØÐ¿ª¹¤ÆÌƽÁ˵À·£¬Ò»µ©Ê±»ú³ÉÊì£¬ËæÊ±¿ÉÒÔÖØÐÂÆô¶¯ÏîÄ¿µÄÓªÏúÍÆ¹ã¹¤×÷¡£
Ð޸ĺó²¢Í¨¹ýÉóºËµÄ¹æ»®×Üͼ
´ÓÐ޸ĺóµÄÏîÄ¿¹æ»®×Üͼ¿ÉÒÔ¿´³ö£¬Î´À´µÄ¡°ÏæÌ¨¹ú¼Ê»¨Ô°¡±ºóÐø¿ª·¢ÓÅ»¯ÁËÔÓн¨Öþ²¼¾Ö£¬Ñ¹ËõÁËÎ÷ÄϵؿéµÄÉÌÒµ¼°¹«Ô¢Â¥¿ª·¢Ãæ»ý£¬ÌÚ³öµÄÍÁµØÓÃÓÚ½¨ÉèÓ×¶ùÔ°£¬¶øÔ±¾½¨ÉèÓ×¶ùÔ°µÄÏîÄ¿Î÷±±µØ¿éÔò¼¯ÖÐÉèÖø÷ÀàÌåÓý»î¶¯ÉèÊ©£¬Ó×¶ùÔ°ÓëÌåÓýÉèÊ©µÄÃæ»ý¶¼ÓÐËùÀ©´ó£»ÏîÄ¿Î÷ÃæÓëÖÐÑ벿·ÖµØ¿é±»¹æ»®Îª¸ß²ãסլ£¬²¢ÇÒËùÓн¨Öþ½á¹¹ÓÉÒ»ÌÝÁ½»§¸ÄΪÁ½ÌÝËÄ»§£¬Ôö¼ÓÁËסլÊýÁ¿£¬»¹À©´óÁËÂ¥¶°¼äµÄÂ̵ØÃæ»ý£»ÏîÄ¿µÄ¶«ÃæµØ¿éÔòÈ¡ÏûÁËÔÓи߲㷽°¸£¬¼Æ»®¼¯Öпª·¢ÁªÅűðÊûÓë¶à²ãÑó·¿£»´ËÍâÐ¡ÇøÔ°ÁÖÂ̵ػù±¾Î¬³ÖÁËÔÓеÄɽÇðµØÃ²£¬µ«Êʵ±Ôö¼ÓÁËË®ÌåÃæ»ý¡£ÕûÌåÀ´¿´£¬Õ⽫ÊÇÒ»¸öÖµµÃÆÚ´ýµÄÓÅÖʵزúÏîÄ¿¡£
¸ù¾ÝÐ޸ĺóµÄ¹æ»®×ÜÍ¼ÖÆ×÷µÄÏîÄ¿Äñî«Í¼
¿ÉÒÔ˵£¬³Á¼Å¶àÄêµÄ¡°ÏæÌ¨¹ú¼Ê»¨Ô°¡±ÖØÐÂÆô¶¯£¬ÔÚÏÖ½ñµÄÏæÌ¶Â¥ÊÐÖоø·Ç¹ÂÁ¢ÏÖÏó¡£ÊÂʵÉÏ£¬2018ÄêÆÚ¼ä£¬½öÔھŻªÇøÓò£¬ÄÇЩ2010ÄêÖÁ2015ÄêÆÚ¼äµÄδÄÜÆô¶¯»òÕßÍ£Ö¹¿ª·¢µÄÐݿ˵زúÏîÄ¿ÕýÔÚ³ÉÅú¸´»î£¬²¢ÇÒ¼ÓËÙÈëÊС£Óë2018ÄêÂÅÂÅÁ÷ÅĵÄÍÁµØÊг¡ÐγÉÏÊÃ÷¶Ô±È£¬Æä±³ºó·´Ó³µÄÊǵ±Ç°ÏæÌ¶Â¥ÊеÄÏÖ×´£¬Êг¡ËäÈ»ÔÝʱÇåµ£¬ÒÀÈ»ÓÐÀû¿Éͼ£¬Ö»ÊÇÃæ¶ÔĿǰ¾Ó¸ß²»ÏµÄÍÁµØ¼Û¸ñÓëÍ£ÖͲ»Ç°µÄ·¿¼Û£¬ÄÇЩÄõسɱ¾µÍÁ®µÄÀϾÉÏîÄ¿£¬¶Ùʱ¾Í³ÉÁËÏãâÄâÄ£¬Îª¸÷·ÈÔÈ»¼á³Ö´ÓʵزúͶ×ʵÄͶ×ÊÈËËùÇ÷Ö®ÈôðÍ¡£ÓÉ´ËÒý·¢µÄÊг¡Á¬Ëø·´Ó¦£¬ÖµµÃ³ÖÐø¹Û²ì¡£










