【滨海新村】| 上海市金山区石化滨海一村7号206室(含空调等室内物品)的一处不动产
- 22万
起拍价
- 32万
评估价
拍卖信息
- 保证金:
¥44,000
- 起拍价:
¥224,000
- 加价幅度:
¥2,000
- 单价:
7212元/㎡
- 折价率:
7折
- 面积:
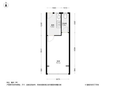
31.06㎡
- 楼型:
板楼
- 拍卖方式:
升价拍
- 优先购买权人:
无
- 延时周期:
暂无
- 小区:
标的物详情
拍卖标的调查情况表(网2025-542号上海申价评估)
2026年2月9日
拍品名称 | 上海市金山区石化滨海一村7号206室(含空调等室内物品)的一处不动产 | |
权利来源 | 司法裁定 | |
权证情况 | 1. 法院执行裁定书 2. 房屋权属登记表及土地登记表 | |
拍品所有人 | 被执行人王某 | |
拍品现状
| 房屋用途及土地性质 | 1.居住 2.出让 |
租赁情况 | 无 | |
钥匙 | 有【附件已上传 有意者可下载查看】 | |
是否腾空 | 否(室内物品一并拍卖) | |
权利限制情况及瑕疵情况 | 1.被乐清市人民法院查封 2.本次拍卖包含评估报告所列的家具、家电及物品等 | |
提供的文件 | 1. 法院裁定书 2.《拍卖成交确认书》 3.《协助执行通知书》 | |
拍品介绍 1.拍卖对象:详见竞买公告及附件。 2.费用承担:详见竞买公告。 3.限购情况:房产是否限购,请自行咨询当地相关主管部门。 4.不动产于签署《拍卖成交确认书》后交付,以实际交付现状为准,未注明瑕疵不在拍卖人承担范围,其风险由买受人自行承担,竞买人需自行前往房屋所在地看样后再慎重决定是否参与竞买。 | ||
拍卖工具
房屋价值7.7分
- 市场价值8.5
- 交易价值7.5
- 成交价值7.0
区位价值8.8分
- 小区品质8.3
同区域的法拍房
小区攻略
小区信息全方位解读
特点全面解析

小区概况
- 建筑年代
1994
- 物业类型
住宅
- 房屋总数
378户
- 楼栋总数
45栋
- 绿化率
30%
- 容积率
1.90
- 产权描述
70年产权
- 建筑类型
板楼
- 物业费
0.3元/㎡·月
- 区域
金山 金山新城
- 物业公司
上海临南物业经营管理有限公司
- 停车位
67个停车位
- 开发商
无开发商
周边配套
交通综合评分
查看全部超过上海94.4%的小区
- 地铁公交5.0
- 驾车出行8.0
- 城际交通5.0
- 暂无
本月挂牌均价
- 持平
环比上月
小区成交历史(94)
热门问题
问参与司法拍卖需要做哪些准备工作?
答 竞拍前请务必遵照《竞买公告》的要求,进行实地看样、调查标的物信息(如过户要求、违章情况等)、了解竞买资质、委托代理及尾款支付方式等内容。如违反相关规定,您的保证金可能会被法院划扣并产生其他司法处罚等后果,请理性参拍!问参与司法拍卖报名须知?
答 凡具备完全民事行为能力的公民、法人和其他组织均可参加竞买。如参与竞买人未开设相关拍卖站点账户,可委托代理人(具备完全民事行为能力的自然人)进行,但必须在竞价程序开始前向法院提交委托材料(随带营业执照副本、授权委托书、委托代理人身份证等),经法院确认后可参与竞买。问法拍房限购吗?
答 2021年12月31日之前,全国仅部分地区(例如北京)是将法拍房纳入了限购范围,但是在2021年12月19日最高人民法院发布《最高人民法院关于人民法院司法拍卖房产竞买人资格若干问题的规定》中明确,自2022年1月1日起法拍房全面纳入限购,人民法院组织的司法拍卖房产活动,受房产所在地限购政策约束的竞买人申请参与竞拍的,人民法院不予准许。 具体限购政策需参考房产所在地情况。问竞买保证金是什么?
答 竞买保证金是对竞买人可能出现的违约责任的救济行为,属于担保的范围,表现为竞买人支付一定数额的现金,作为参与竞买并遵守拍卖规则和各种竞买规定的担保。 《拍卖法》对于保证金的收取并未做出明确的规定,只是要求竞买人参与竞买应当办理竞买手续。但一些部门的文件要求参加竞买必须交纳竞买保证金。在实际操作中,拍卖企业也都要求竞买人缴纳竞买保证金,否则,将不能取得竞买资格。问如何“交保证金报名”?
答 请在拍品竞买站点详情页点击“交保证金报名”按钮进入报名流程并交纳保证金,报名前请先登录相关站点账号,具体操作参见相关站点要求。问保证金能退吗?
答 保证金在以下情况下是可以退的: (1)竞买人未成功竞拍商品:例如在竞拍过程中始终未出价、在竞拍过程中放弃加价等情况; (2)竞买人已交纳保证金,法院将拍品撤回、暂缓、中止拍卖。 竞拍结束后,保证金会被返还,但具体到账时间需要以银行信息提示为准。 如您交纳的竞拍保证金符合退还条件,但是未予退还,您可以联系相关竞买站点客服进行处理。问竞拍成功后如何支付剩余成交款?
答 如果用户竞拍成功,保证金将转化为部分成交款直接划转至法院指定账户,剩余未支付的成交款,需用户在法院规定时间内通过银行汇款或网银支付的方式缴纳至法院指定账户(法院账户信息及缴款时限具体见拍卖公告和竞拍须知)。问网银支付限额怎么办?
答 司法拍卖拍品往往涉及金额较大,为避免您在支付的过程中,遇到因限额而导致无法支付的问题,建议您提前尝试交保,如支付额度不足,请及时去相关银行办理转账以及支付限额的业务,最高限额以各银行的规定为准,大额转账方式需将汇付识别码填写在用途/备注/摘要栏。问法拍房拍下来就能正常使用吗?
答 房屋能否正常使用主要看是否有人居住在里面,主要关注以下两方面: 1、是否腾空? 如果房主或其他人住在里面,需要联系法院,确认法院是否负责腾空 2、有无租赁? 如有租赁,不影响过户,但需注意∶租赁合同不会因为拍卖结束而失效。如果房子租出去了,竞拍成功后到租赁结束这段时间的租金,可以与法院确认是否会结算给买受人;如果要解除租赁,需要自行与承租人协调。问法拍房能申请贷款吗?
答 大部分法院拍卖的房产是要求购买者一次性支付全款,但如今已经有部分城市开始进行了法拍房贷款的试点工作,关于拍卖标的房屋能否贷款,请仔细阅览标的物竞买站点详情页面。问拍下不想要有啥后果?
答 如果拍下后不想要了,保证金会被罚没。 除此之外,如果重新拍卖后的价格低于此次毁拍的金额,法院有权要求买受人补齐差价,具体以法院要求为准。
同城拍卖
即将开始【龙柏四村】| 上海市闵行区虹桥镇龙柏四村60号402室房产
50.77㎡ 闵行区-龙柏
低于评估价30%一拍起拍价¥123万评估价¥175万2026-02-21 10:00:00开始
即将开始【汇秀景苑】| 上海市闵行区浦航路178弄11号1302室
55.66㎡ 闵行-浦江
一拍起拍价¥126万评估价 --2026-02-23 10:00:00开始
即将开始【万豪公寓】| 上海市静安区塘沽路835号603室房地产
111.72㎡ 静安-西藏北路
低于评估价30%一拍起拍价¥499万评估价 --2026-02-23 10:00:00开始
即将开始【华宁路189号】| 上海市闵行区华宁路191弄78号1室的不动产
53.15㎡ 闵行-老闵行
低于评估价30%一拍起拍价¥111万评估价¥159万2026-02-23 10:00:00开始
即将开始【报春路293弄】| 上海市闵行区报春路218弄15号302室
92.17㎡ 闵行
低于评估价30%一拍起拍价¥333万评估价¥475万2026-02-23 10:00:00开始
即将开始【美高嘉年华】| 上海市青浦区徐泾镇高泾路689弄133号全幢房产
562.09㎡ 青浦-朱家角
低于评估价30%一拍起拍价¥3470万评估价¥4957万2026-02-23 10:00:00开始
即将开始【江南苑】| 上海市闵行区莘朱路222弄18号102室房屋
142.89㎡ 闵行区-莘庄
低于评估价44%二拍起拍价¥462万评估价¥825万2026-02-23 10:00:00开始
即将开始【外冈壹号】| 上海市嘉定区外钱公路99弄172号全幢房产
252.2㎡ 嘉定-外冈
低于评估价44%二拍起拍价¥423万评估价¥755万2026-02-23 10:00:00开始
即将开始【长风二村】| 上海市普陀区长风二村50号303-4的不动产
66.1㎡ 普陀区-长风
低于评估价28%一拍起拍价¥250万评估价¥350万2026-02-23 10:00:00开始
即将开始上海市松江区佘山镇赵昆公路3928弄320号
451.01㎡ 松江区
低于评估价30%一拍起拍价¥1143万评估价¥1633万2026-02-24 10:00:00开始
即将开始上海市闵行区莘松路958弄78号501室
140.39㎡ 闵行区
低于评估价30%一拍起拍价¥385万评估价¥550万2026-02-24 10:00:00开始
即将开始上海市松江区佘山镇辰花路5000弄4号203室
60.24㎡ 松江
一拍起拍价¥86万评估价 --2026-02-24 10:00:00开始
即将开始上海市松江区佘山镇辰花路5000弄3号222室
64.28㎡ 松江
一拍起拍价¥94万评估价 --2026-02-24 10:00:00开始
即将开始【祥东小区松江】| 上海市松江区车墩镇车峰路199弄168号103室
76.93㎡ 松江-车墩
低于评估价30%一拍起拍价¥78万评估价¥111万2026-02-24 10:00:00开始
即将开始【惠阳苑】| 上海市宝山区德都路399弄3号102室
125.48㎡ 宝山-月浦
低于评估价30%一拍起拍价¥214万评估价¥306万2026-02-24 10:00:00开始
即将开始【祥东小区松江】| 上海市松江区车墩镇车峰路199弄52号402室
129.02㎡ 松江-车墩
低于评估价30%一拍起拍价¥140万评估价 --2026-02-24 10:00:00开始
即将开始【新城金郡】| 上海市嘉定区云屏路1399弄5号103室
86.41㎡ 嘉定-嘉定新城
低于评估价30%一拍起拍价¥266万评估价¥380万2026-02-24 10:00:00开始
即将开始【西南名苑】| 上海市松江区泗泾镇泗陈公路501弄42号301室
176.08㎡ 松江-泗泾
一拍起拍价¥469万评估价¥670万2026-02-24 10:00:00开始
即将开始【殷行路571弄小区】| 上海市杨浦区殷行路571弄33号303室
34.97㎡ 杨浦-中原
一拍起拍价¥130万评估价¥130万2026-02-24 10:00:00开始
即将开始【阳光威尼斯二期】| 上海市普陀区定边路377弄9号1103室
91.33㎡ 普陀-真光
低于评估价30%一拍起拍价¥322万评估价¥460万2026-02-24 10:00:00开始


























































