【七彩龙都】| 伊川县七彩龙都风情园8幢102号房产
- 168万
起拍价
- 233万
评估价
拍卖信息
- 保证金:
¥167,000
- 起拍价:
¥1,677,299
- 加价幅度:
¥8,300
- 单价:
3826元/㎡
- 折价率:
7.2折
- 面积:
438.41㎡
- 楼型:
板楼
- 朝向:
南北
- 装修:
毛坯
- 拍卖方式:
升价拍
- 优先购买权人:
无
- 延时周期:
暂无
- 小区:
标的物详情
| 住宅标的调查情况表 | |||
| 标的名称 | 伊川县七彩龙都风情园8幢102号房产 | ||
| 权证情况 | 法院执行裁定书 | (2025)豫0329执1862号 | |
| 不动产权证号 | 无 | ||
| 土地产权证 | |||
| 标的所有人 | **有限公司 | ||
| 评估基准日 | 2025.9.15 | ||
| 标的现状 | 房屋用途 | 住宅 | |
| 是否已腾空 | |||
| 租赁情况 | 无 | ||
| 过户情况 | 以不动产登记中心为准 | ||
| 钥 匙 | 无 | ||
| 权利限制情况 | 查封 | 被伊川法院查封 | |
| 抵押 | 无(银行抵押不影响买受人权益,买受人所缴纳的房款为全款,买受人缴纳尾款后,法院拿拍卖款优先和银行结算剩余房贷款,再办理过户交接手续) | ||
| 提供的文件 | 1、《执行裁定书》2、《拍卖成交确认书》3、《协助执行通知书》 | ||
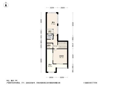
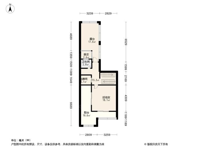
| 标的物介绍 | 建筑总面积 | 438.41平方米 | |
| 装修情况 | 毛坯 | ||
| 房屋户型 | 6室4厅6卫 | ||
| 房屋楼层 | 所在-1-4层 | ||
| 房屋朝向 | 南北 | ||
| 周边配套 | 该房产位于河南省洛阳市伊川县七彩龙都风情园 | ||
| 特别提醒 | 1、竞买人需亲临现场,实地看样,未看样的竞买人视为对本标的实物现状的确认,慎重决定竞买行为,竞买人一旦作出竞买决定,即表明已完全了解,并接受标的物的现状和一切已知及未知的瑕疵2、房屋户口不在执行范围内,需竞买人自行前往公安机关了解 3、如需补缴土地出让金,具体金额请咨询相关部门,买受人应充分了解后购买,各项税费由相关人员依法依规承担。可能存在暂时考虑不到的风险,风险均由买受人承担。 | ||
| 其他介绍 | 小区目前因其他原因已停工,该房屋暂不具备入住条件,请购买者谨慎考虑,该房产现登记在案外人名下,暂不具备办证条件,水电、物业费等需竞买人自行了解 | ||
| 标的物估值 | 评估价 | 2329581.45元 | |
| 费用总价 | 费用详情咨询相关部门 | ||
拍卖工具
房屋价值8.3分
- 市场价值8.5
- 成交价值7.0
- 居住价值9.5
区位价值8.9分
- 小区品质9.5
- 区位交通7.7
- 教育资源10.0
- 生活服务6.9
同区域的法拍房
即将开始【建业·洛邑府】| 河南省洛阳市伊川县滨河街道办建业洛邑新筑3幢1单元1-1403号房产
127.46㎡ 伊川县
低于评估价20%一拍起拍价¥43万评估价¥54万2026-02-26 10:00:00开始
即将开始【建业·洛邑府】| 河南省洛阳市伊川县滨河街道办建业洛邑新筑3幢1单元1-902号房产
117.33㎡ 伊川县
低于评估价20%一拍起拍价¥40万评估价¥50万2026-02-26 10:00:00开始
即将开始【建业·洛邑府】| 河南省洛阳市伊川县滨河街道办建业洛邑新筑3幢1单元1-802号房产
117.33㎡ 伊川县
低于评估价20%一拍起拍价¥40万评估价¥50万2026-02-26 10:00:00开始
小区攻略
小区信息全方位解读
特点全面解析

小区概况
- 建筑年代
2019
- 物业类型
住宅
- 房屋总数
704户
- 楼栋总数
暂无
- 绿化率
39.5%
- 容积率
1.48
- 产权描述
七彩龙都普通住宅产权为70年,联排产权为70年,双拼产权为70年,叠拼产权为70年
- 建筑类型
板楼
- 物业费
1.5元/㎡·月
- 区域
伊川 伊川
- 物业公司
洛阳七彩风情园物业管理有限公司
- 停车位
停车位充足,1:1.
- 开发商
洛阳汇悦实业有限公司
周边配套
- 暂无
本月挂牌均价
- 持平
环比上月
小区法拍房历史成交
热门问题
问参与司法拍卖需要做哪些准备工作?
答 竞拍前请务必遵照《竞买公告》的要求,进行实地看样、调查标的物信息(如过户要求、违章情况等)、了解竞买资质、委托代理及尾款支付方式等内容。如违反相关规定,您的保证金可能会被法院划扣并产生其他司法处罚等后果,请理性参拍!问参与司法拍卖报名须知?
答 凡具备完全民事行为能力的公民、法人和其他组织均可参加竞买。如参与竞买人未开设相关拍卖站点账户,可委托代理人(具备完全民事行为能力的自然人)进行,但必须在竞价程序开始前向法院提交委托材料(随带营业执照副本、授权委托书、委托代理人身份证等),经法院确认后可参与竞买。问法拍房限购吗?
答 2021年12月31日之前,全国仅部分地区(例如北京)是将法拍房纳入了限购范围,但是在2021年12月19日最高人民法院发布《最高人民法院关于人民法院司法拍卖房产竞买人资格若干问题的规定》中明确,自2022年1月1日起法拍房全面纳入限购,人民法院组织的司法拍卖房产活动,受房产所在地限购政策约束的竞买人申请参与竞拍的,人民法院不予准许。 具体限购政策需参考房产所在地情况。问竞买保证金是什么?
答 竞买保证金是对竞买人可能出现的违约责任的救济行为,属于担保的范围,表现为竞买人支付一定数额的现金,作为参与竞买并遵守拍卖规则和各种竞买规定的担保。 《拍卖法》对于保证金的收取并未做出明确的规定,只是要求竞买人参与竞买应当办理竞买手续。但一些部门的文件要求参加竞买必须交纳竞买保证金。在实际操作中,拍卖企业也都要求竞买人缴纳竞买保证金,否则,将不能取得竞买资格。问如何“交保证金报名”?
答 请在拍品竞买站点详情页点击“交保证金报名”按钮进入报名流程并交纳保证金,报名前请先登录相关站点账号,具体操作参见相关站点要求。问保证金能退吗?
答 保证金在以下情况下是可以退的: (1)竞买人未成功竞拍商品:例如在竞拍过程中始终未出价、在竞拍过程中放弃加价等情况; (2)竞买人已交纳保证金,法院将拍品撤回、暂缓、中止拍卖。 竞拍结束后,保证金会被返还,但具体到账时间需要以银行信息提示为准。 如您交纳的竞拍保证金符合退还条件,但是未予退还,您可以联系相关竞买站点客服进行处理。问竞拍成功后如何支付剩余成交款?
答 如果用户竞拍成功,保证金将转化为部分成交款直接划转至法院指定账户,剩余未支付的成交款,需用户在法院规定时间内通过银行汇款或网银支付的方式缴纳至法院指定账户(法院账户信息及缴款时限具体见拍卖公告和竞拍须知)。问网银支付限额怎么办?
答 司法拍卖拍品往往涉及金额较大,为避免您在支付的过程中,遇到因限额而导致无法支付的问题,建议您提前尝试交保,如支付额度不足,请及时去相关银行办理转账以及支付限额的业务,最高限额以各银行的规定为准,大额转账方式需将汇付识别码填写在用途/备注/摘要栏。问法拍房拍下来就能正常使用吗?
答 房屋能否正常使用主要看是否有人居住在里面,主要关注以下两方面: 1、是否腾空? 如果房主或其他人住在里面,需要联系法院,确认法院是否负责腾空 2、有无租赁? 如有租赁,不影响过户,但需注意∶租赁合同不会因为拍卖结束而失效。如果房子租出去了,竞拍成功后到租赁结束这段时间的租金,可以与法院确认是否会结算给买受人;如果要解除租赁,需要自行与承租人协调。问法拍房能申请贷款吗?
答 大部分法院拍卖的房产是要求购买者一次性支付全款,但如今已经有部分城市开始进行了法拍房贷款的试点工作,关于拍卖标的房屋能否贷款,请仔细阅览标的物竞买站点详情页面。问拍下不想要有啥后果?
答 如果拍下后不想要了,保证金会被罚没。 除此之外,如果重新拍卖后的价格低于此次毁拍的金额,法院有权要求买受人补齐差价,具体以法院要求为准。
同城拍卖
即将开始【珠江路小区】| 河南省洛阳市涧西区珠江路369号25幢1-2318
39.65㎡ 涧西-珠江路
低于评估价23%二拍起拍价¥22万评估价¥28万2026-02-18 10:00:00开始
即将开始【五栋楼小区】| 河南省洛阳市老城区苗南路2号院1幢2-601
78.84㎡ 老城-道北
低于评估价10%二拍起拍价¥18万评估价¥20万2026-02-18 10:00:00开始
即将开始【百姓家】| 河南省洛阳市涧西区广文路百姓家小区5幢1-302号房产
90.56㎡ 涧西区-谷水
低于评估价15%一拍起拍价¥32万评估价¥38万2026-02-19 10:00:00开始
即将开始河南省洛阳市涧西区芳华路中段芳华苑小区109幢1-402号房产
147.45㎡ 涧西
低于评估价15%一拍起拍价¥57万评估价¥68万2026-02-19 10:00:00开始
即将开始【滨河苑】| 河南省洛阳市新安县城关镇河南社区水岸名邸1号楼1单元502室
109.31㎡ 新安
低于评估价28%二拍起拍价¥21万评估价¥30万2026-02-19 10:00:00开始
即将开始【洛一高家属院】| 洛阳市瀍河回族区民族路20号院1幢2-501号房产
88.8㎡ 瀍河回族-东花坛
低于评估价24%二拍起拍价¥28万评估价¥36万2026-02-19 10:00:00开始
即将开始【后庄社区】| 河南省洛阳市偃师区城关镇塔庄社区11栋1单元1502室
60.0㎡ 偃师
低于评估价40%二拍起拍价¥15万评估价 --2026-02-20 10:00:00开始
即将开始【中州东路11号】| 洛阳市瀍河回族区中州东路东段1号17幢1-701号房产
147.27㎡ 瀍河回族区-下园
低于评估价20%一拍起拍价¥70万评估价¥87万2026-02-20 10:00:00开始
即将开始河南省洛阳市嵩县县城东环路以西威尼斯·海景名邸12号楼3单元601号房产
137.04㎡ 嵩县
一拍起拍价¥49万评估价¥49万2026-02-20 10:00:00开始
即将开始河南省洛阳市偃师区城关镇商都路偃化口的房产
192.69㎡ 偃师
低于评估价19%二拍起拍价¥66万评估价 --2026-02-20 10:00:00开始
即将开始河南省洛阳市偃师区伊洛街道华夏路41号粤海国际1幢1单元406室
77.04㎡ 偃师区
低于评估价28%二拍起拍价¥24万评估价¥34万2026-02-20 10:00:00开始
即将开始【嵩县安居小区】| 洛阳市嵩县嵩洲路东丰巷(安沟)安居公寓12楼顶楼外加顶楼平台(11楼顶房屋。小产权,钢构房)
140.0㎡ 嵩县
一拍起拍价¥33万评估价¥33万2026-02-21 10:00:00开始
即将开始【老城区道南路七号院】| 洛阳市老城区道南路7号2幢1-602房产
97.34㎡ 老城区-西关
一拍起拍价¥40万评估价¥40万2026-02-21 10:00:00开始
即将开始【富康小区】| 河南省洛阳市洛龙区钱江路9号32幢4-102号房产
153.45㎡ 洛龙-关林
低于评估价30%一拍起拍价¥193万评估价¥275万2026-02-21 10:00:00开始
即将开始【手表厂家属院】| 河南省洛阳市西工区纱厂南路31号银街.锦华园3幢2-102号房产
135.68㎡ 西工区-新都汇
低于评估价10%一拍起拍价¥72万评估价¥80万2026-02-21 10:00:00开始
即将开始河南省洛阳市宜阳县新风小区六号楼一单元101号房产
102.11㎡ 宜阳
低于评估价23%二拍起拍价¥16万评估价¥21万2026-02-21 10:00:00开始
即将开始【玉恒·桥郡】| 河南省洛阳市宜阳县香鹿山镇牌窑村李贺大道北侧玉恒桥郡8幢1单元101号房产
325.83㎡ 宜阳县
低于评估价14%二拍起拍价¥164万评估价¥192万2026-02-21 10:00:00开始
即将开始【九都春天】| 河南省洛阳市涧西区南昌路10号25幢3-301号房产
54.02㎡ 涧西-万达广场
低于评估价20%一拍起拍价¥26万评估价¥32万2026-02-22 10:00:00开始
即将开始【纱厂西路84号院】| 河南省洛阳市西工区纱厂西路世华园4幢6-702号房产
88.21㎡ 西工-纱厂路
低于评估价10%一拍起拍价¥37万评估价¥41万2026-02-22 10:00:00开始
即将开始【中州中路603号院】| 河南省洛阳市西工区中州中路6号院中泰新城泰华苑15D号房产
98.22㎡ 西工-行署路
低于评估价10%一拍起拍价¥53万评估价¥59万2026-02-22 10:00:00开始

























































