【鑫秋大厦】| 长沙市雨花区树木岭路469号鑫秋大厦1013
- 23万
起拍价
- 35万
评估价
拍卖信息
- 保证金:
¥34,037
- 起拍价:
¥226,910.72
- 加价幅度:
¥2,000
- 单价:
4920元/㎡
- 折价率:
6.4折
- 面积:
46.12㎡
- 楼型:
塔楼
- 装修:
简装
- 拍卖方式:
升价拍
- 优先购买权人:
无
- 延时周期:
暂无
- 地铁:
- 小区:
标的物详情
拍卖标的物调查情况表 | |||||||
标的名称 | 长沙市雨花区树木岭路469号鑫秋大厦1013房屋 | ||||||
权证情况 | 法院执行裁定书 | (2023)湘0103执2596号之二 | |||||
房屋产权证 | 权证号码:20170032407 | ||||||
权利限制情况 | 已查封,抵押权利限制 | ||||||
成交后提供文件 | 1、《执行裁定书》;2、《协助执行通知书》;3、《拍卖成交确认书》 | ||||||
标的物现状说明 | |||||||
房屋用途 | 住宅 | 产权产别 | 私有房产 | ||||
腾房及租赁情况 | 空置/无 | 优先竞买权 | 无 | ||||
钥 匙 | 有 | 看样联系 | 宋 13142243437 | ||||
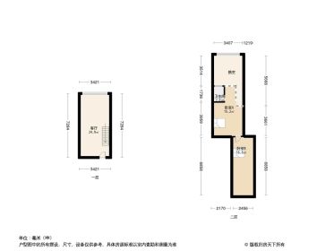
建筑总面积 | 46.12平方米 | 分摊面积 | 10.96平方米 | ||||
装修情况 | 简装 | 房屋楼层/户型 | 32/10 | ||||
案件承办人或书记员 | 饶星法官 | 办公地址 | 309 | ||||
标的物介绍 | |||||||
位于长沙市雨花区树木岭路469号鑫秋大厦1013房屋,不动产权证号:20170032407。房屋用途:住宅,建筑总面积:46.12平方米,分摊面积:10.96平方米,房屋为钢筋混凝土结构,建成时间为2015年2月9日,总楼层为32层,标的物位于第10层,装修情况:简装。占用情况:空置,承租情况:无,是否可以看房:是。 | |||||||
其他情况说明 | |||||||
A、法院已将本次拍卖辅助工作委托湖南华鸿拍卖有限公司,除本公告中公布的联系人和联系电话外,未委托任何中介或其他机构。为避免您有可能产生超出实际交易的支出,请勿通过中介或其他机构参与竞拍。 B、标的物依现状拍卖,是否存在瑕疵,请前往现场自行了解,未实地看样的竞买人视为对本标的物现状已确认,责任自负。 C、拍卖标的物建筑面积、性质、用途、是否欠地价及土地使用费等,以相关主管部门最后核定为准,如与实际不符,其风险由买受人自行承担。 D、因交易而产生的税、费依照相关法律、行政法规的规定各自承担。标的物转让登记手续由买受人自行办理,因交易环节而产生的相关税、费依照相关法律、行政法规的规定各自承担。应由被执行人承担的费用由买受人先行垫付,买受人提请法院退还已垫付的税款,需提供以原产权人名义,由税务部门开具的税务完税凭证等相关资料,并且在税收款书备注中注明涉税房产坐落地址信息,地址信息要求与拍卖公告中房产地址信息一致,买受人应及时办理过户手续并交纳相关的过户税费,在法院将过户执行裁定书、协助执行通知书、拍卖成交确认书等文书送达至有关财产管理部门后十个工作日内及时向本院申请退还已垫付税费,逾期不办理退还税(费)手续的,将视为买受人自愿承担该部分税费,本院将及时发还该拍卖款项,不再退还该部分税费。未明确缴费义务人的费用由买受人承担,【如遇涉及有关财产财产管理机构或其他客观原因无法及时办理税费代缴手续的,需在期限届满前向本院提交书面延缓申请及附相应证明材料】。 E、(1)竞买人办理竞买手续时必须承诺符合现行当地有关房地产调控政策规定的条件。(2)能否办理产权过户手续请竞买人在竞买前自行到相关职能部门咨询确认。(3)房屋户口、学位不在执行范围内,请竞买人自行了解。(4)如因买受人不符合有关房地产调控政策条件,导致无法办理产权过户手续的风险和后果,由买受人自行承担。 F、标的物可能存在的物业费、停车费、水、电、燃气等欠费均由买受人自行办理相关户名变更手续,相关费用自理,未明确缴费义务的费用由买受人承担。 G、本次拍卖不包含屋内可移动的家具家电 | |||||||
拍卖工具
房屋价值8.0分
- 市场价值9.0
- 成交价值7.0
区位价值9.4分
- 小区品质7.9
- 区位交通10.0
- 教育资源10.0
- 生活服务10.0
同区域的法拍房
小区攻略
小区信息全方位解读
特点全面解析

小区概况
- 建筑年代
2013
- 物业类型
住宅
- 房屋总数
575户
- 楼栋总数
1栋
- 绿化率
40%
- 容积率
4.00
- 产权描述
1栋商住楼,产权70年。
- 建筑类型
塔楼
- 物业费
2元/㎡·月
- 区域
雨花 树木岭
- 物业公司
湖南智远物业管理有限公司
- 停车位
共200个车位,其中地下150个,地上50个。
- 开发商
湖南鑫秋投资有限公司
周边配套
交通综合评分
查看全部超过长沙22.2%的小区
- 地铁公交10.0
- 驾车出行10.0
- 城际交通4.0
- 8594元/㎡
本月挂牌均价
- 0.13%
环比上月
小区成交历史(42)
热门问题
问参与司法拍卖需要做哪些准备工作?
答 竞拍前请务必遵照《竞买公告》的要求,进行实地看样、调查标的物信息(如过户要求、违章情况等)、了解竞买资质、委托代理及尾款支付方式等内容。如违反相关规定,您的保证金可能会被法院划扣并产生其他司法处罚等后果,请理性参拍!问参与司法拍卖报名须知?
答 凡具备完全民事行为能力的公民、法人和其他组织均可参加竞买。如参与竞买人未开设相关拍卖站点账户,可委托代理人(具备完全民事行为能力的自然人)进行,但必须在竞价程序开始前向法院提交委托材料(随带营业执照副本、授权委托书、委托代理人身份证等),经法院确认后可参与竞买。问法拍房限购吗?
答 2021年12月31日之前,全国仅部分地区(例如北京)是将法拍房纳入了限购范围,但是在2021年12月19日最高人民法院发布《最高人民法院关于人民法院司法拍卖房产竞买人资格若干问题的规定》中明确,自2022年1月1日起法拍房全面纳入限购,人民法院组织的司法拍卖房产活动,受房产所在地限购政策约束的竞买人申请参与竞拍的,人民法院不予准许。 具体限购政策需参考房产所在地情况。问竞买保证金是什么?
答 竞买保证金是对竞买人可能出现的违约责任的救济行为,属于担保的范围,表现为竞买人支付一定数额的现金,作为参与竞买并遵守拍卖规则和各种竞买规定的担保。 《拍卖法》对于保证金的收取并未做出明确的规定,只是要求竞买人参与竞买应当办理竞买手续。但一些部门的文件要求参加竞买必须交纳竞买保证金。在实际操作中,拍卖企业也都要求竞买人缴纳竞买保证金,否则,将不能取得竞买资格。问如何“交保证金报名”?
答 请在拍品竞买站点详情页点击“交保证金报名”按钮进入报名流程并交纳保证金,报名前请先登录相关站点账号,具体操作参见相关站点要求。问保证金能退吗?
答 保证金在以下情况下是可以退的: (1)竞买人未成功竞拍商品:例如在竞拍过程中始终未出价、在竞拍过程中放弃加价等情况; (2)竞买人已交纳保证金,法院将拍品撤回、暂缓、中止拍卖。 竞拍结束后,保证金会被返还,但具体到账时间需要以银行信息提示为准。 如您交纳的竞拍保证金符合退还条件,但是未予退还,您可以联系相关竞买站点客服进行处理。问竞拍成功后如何支付剩余成交款?
答 如果用户竞拍成功,保证金将转化为部分成交款直接划转至法院指定账户,剩余未支付的成交款,需用户在法院规定时间内通过银行汇款或网银支付的方式缴纳至法院指定账户(法院账户信息及缴款时限具体见拍卖公告和竞拍须知)。问网银支付限额怎么办?
答 司法拍卖拍品往往涉及金额较大,为避免您在支付的过程中,遇到因限额而导致无法支付的问题,建议您提前尝试交保,如支付额度不足,请及时去相关银行办理转账以及支付限额的业务,最高限额以各银行的规定为准,大额转账方式需将汇付识别码填写在用途/备注/摘要栏。问法拍房拍下来就能正常使用吗?
答 房屋能否正常使用主要看是否有人居住在里面,主要关注以下两方面: 1、是否腾空? 如果房主或其他人住在里面,需要联系法院,确认法院是否负责腾空 2、有无租赁? 如有租赁,不影响过户,但需注意∶租赁合同不会因为拍卖结束而失效。如果房子租出去了,竞拍成功后到租赁结束这段时间的租金,可以与法院确认是否会结算给买受人;如果要解除租赁,需要自行与承租人协调。问法拍房能申请贷款吗?
答 大部分法院拍卖的房产是要求购买者一次性支付全款,但如今已经有部分城市开始进行了法拍房贷款的试点工作,关于拍卖标的房屋能否贷款,请仔细阅览标的物竞买站点详情页面。问拍下不想要有啥后果?
答 如果拍下后不想要了,保证金会被罚没。 除此之外,如果重新拍卖后的价格低于此次毁拍的金额,法院有权要求买受人补齐差价,具体以法院要求为准。
同城拍卖
即将开始长沙市雨花区劳动东路821号明昇时代广场二期4栋303室
168.73㎡ 雨花区
低于评估价15%一拍起拍价¥177万评估价¥208万2026-02-08 10:00:00开始
即将开始湖南省宁乡市白马桥乡三水厂南侧(爱琴湾)15栋1603号房屋
151.3㎡ 宁乡
低于评估价10%一拍起拍价¥70万评估价¥78万2026-02-08 10:00:00开始
即将开始长沙市望城区金山桥街道湖南报业文化城二期高16栋203室
95.96㎡ 望城
低于评估价20%一拍起拍价¥62万评估价¥77万2026-02-08 10:00:00开始
即将开始浏阳经济技术开发区康天路金阳湾小区3、4、5号栋904房
112.16㎡ 浏阳市
低于评估价20%一拍起拍价¥38万评估价¥47万2026-02-08 10:00:00开始
即将开始长沙县星沙镇东四线以东、凉塘路以北鹏基诺亚山林维也纳1栋706室不动产
130.13㎡ 长沙
低于评估价20%一拍起拍价¥69万评估价¥86万2026-02-08 10:00:00开始
即将开始【韶山中路424号】| 湖南省长沙市雨花区韶山中路113号(原韶山路119号)002栋503的不动产
59.12㎡ 雨花区-雨花亭
低于评估价30%一拍起拍价¥52万评估价¥74万2026-02-08 10:00:00开始
即将开始【恒大名都】| 长沙市望城区月亮岛街道恒大名都小区5、6、7栋206房
90.09㎡ 望城区-普瑞大道
低于评估价10%一拍起拍价¥41万评估价¥45万2026-02-08 10:00:00开始
即将开始【书院路中医院宿舍】| 长沙市天心区书院路9号安玺雅苑A8栋605号房产
136.17㎡ 天心区-黄土岭
低于评估价20%一拍起拍价¥191万评估价¥239万2026-02-08 10:00:00开始
即将开始【长沙县湘龙街道万家丽北路以东、蟠龙路以南】| 湘龙街道南塘路6号花样年华2栋702房产
99.07㎡ 长沙县-万家丽北
低于评估价15%一拍起拍价¥58万评估价¥68万2026-02-08 10:00:00开始
即将开始【领东汇】| 长沙经济技术开发区榔梨街道黄兴大道南段59号领东汇住宅小区6栋1806室
118.13㎡ 长沙-泉塘
低于评估价20%一拍起拍价¥59万评估价¥74万2026-02-08 10:00:00开始
即将开始【高峰锦园】| 长沙市天心区高云路77号龙湾国际三期2016栋606号房
124.84㎡ 天心-省政府
低于评估价20%一拍起拍价¥53万评估价¥66万2026-02-08 10:00:00开始
即将开始【湘龙紫晶城】| 长沙县湘龙路35号四季星城二期9栋501号不动产
109.07㎡ 长沙
低于评估价1%一拍起拍价¥47万评估价¥48万2026-02-08 10:00:00开始
即将开始【人民新村】| 长沙市芙蓉区人民东路199号世嘉·国际华城6栋302号房及室内物品
172.92㎡ 芙蓉区-识字岭
低于评估价20%一拍起拍价¥99万评估价¥123万2026-02-08 10:00:00开始
即将开始【洞井小区】| 长沙市井圭路32号景湾小区7栋501室不动产
102.54㎡ 雨花-红星
低于评估价15%一拍起拍价¥46万评估价¥54万2026-02-08 10:00:00开始
即将开始【解放东路3号小区】| 长沙市芙蓉区解放东路89号天心电子世界7016号房
172.63㎡ 芙蓉区
低于评估价20%一拍起拍价¥83万评估价¥104万2026-02-08 10:00:00开始
即将开始【老物资局宿舍(远大一路)】| 长沙市芙蓉区远大一路1389号卓越汇富苑2栋1505室不动产
110.06㎡ 芙蓉
低于评估价20%一拍起拍价¥64万评估价¥80万2026-02-08 10:00:00开始
即将开始【马王堆新合村】| 长沙市芙蓉区马王堆新桥村古汉城1栋201室
88.39㎡ 芙蓉-万家丽广场
低于评估价20%二拍起拍价¥43万评估价¥53万2026-02-08 10:00:00开始
即将开始【火星七片】| 长沙市芙蓉区火星开发区七片016栋706号房
78.48㎡ 芙蓉-马王堆
低于评估价36%二拍起拍价¥27万评估价¥42万2026-02-08 10:00:00开始
即将开始【华远·海蓝郡(长沙)】| 长沙县星沙街道星沙大道198号蓝山郡一期D栋3102室
128.79㎡ 长沙
低于评估价36%二拍起拍价¥63万评估价¥99万2026-02-08 10:00:00开始
即将开始【美利新世界】| 长沙市开福区福元中路66号美利新世界小区5栋1306号房
开福-广电中心
低于评估价20%二拍起拍价¥60万评估价¥75万2026-02-08 10:00:00开始










































