【东亚上北中心】| 北京市昌平区回龙观西大街9号院10号楼5层1单元605不动产
- 157万
起拍价
- 184万
评估价
拍卖信息
- 保证金:
¥160,000
- 起拍价:
¥1,570,084
- 加价幅度:
¥8,000
- 单价:
25693元/㎡
- 折价率:
8.5折
- 面积:
61.11㎡
- 楼型:
板塔结合
- 拍卖方式:
升价拍
- 优先购买权人:
无
- 延时周期:
暂无
- 地铁:
- 小区:
标的物详情
标的物调查情况表 (2023)皖01执2105号 | ||
拍品名称 | 北京市昌平区回龙观西大街9号院10号楼5层1单元605不动产 | |
权证情况 | X京房权证昌字第622756号 | |
拍品所有人 | 曹** | |
拍品现状 | 租赁情况 | / |
钥匙 | / | |
权利限制情况及瑕疵情况 | 有查封、有抵押 | |
成交后提供的文件 | 1、法院裁定书2、《拍卖成交确认书》3、《协助执行通知书》。 | |
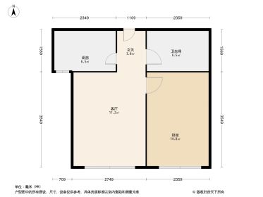
拍品介绍 1、拍卖标的物权属状况:位于北京市昌平区回龙观西大街9号院10号楼5层1单元605不动产;权证字号:X京房权证昌字第622756号;房屋用途:办公;建筑结构:钢混;所在层/总层数:5/22F;建筑面积:61.11平方米;建成年代:约2009年;土地使用权类型:出让;土地终止日期:土地剩余使用年限约为32年。 2、标的物四至:东至文华路,南至支路,西至文华西路,北至龙禧三街。 3、公共配套情况:该区域周边有学校、医院等公共服务设施,公共服务设施完备。 4、商业氛围:附近有华府9号、尚城等商办楼,区域商办集聚度一般。 5、交通情况:附近有462路、551路等公交车经过,出行较方便。 6、特殊说明:依照《最高人民法院网络司法拍卖若干规定》第七条规定,社会机构或组织网络司法拍卖辅助工作所支出的必要费用由被执行人承担。 依照《最高人民法院关于人民法院司法拍卖房产竞买人资格若干问题的规定》,人民法院组织的司法拍卖活动,竞买人申请参与竞拍的,受房产所在地限购政策约束,必须承诺具备购房资格及自愿承担法律后果(包括但不限于没收保证金、成交价全款等)。 竞买人申请参与竞拍的,需自行了解标的物所在地不动产交易政策,如是否限购等,如因不符合有关政策购买的,导致无法办理产权过户手续等风险和后果,由买受人自行承担。 买受人在司法拍卖房产成交后,签署成交确认书时,需向法院提交自其申请参与竞拍到成交裁定书出具时具备购房资格的证明材料。买受人虚构购房资格参与司法拍卖房产活动且拍卖成交,拍卖行为无效,应当依法承担赔偿责任。竞买人虚构购房资格或者当事人之间恶意串通,侵害他人合法权益或者逃避履行法律文书确定的义务的,人民法院应当根据情节轻重予以罚款、拘留;构成犯罪的,依法追究刑事责任。 拍卖标的面积系根据不动产登记部门提供的查询资料确定,过户过程中如面积发生变动,成交价款不予变更。 标的物过户登记手续由买受人自行办理,过户所需税费按法律规定(包括不含因政策性原因可能需向政府有关部门缴纳、补缴的土地出让金或出让金差额或土地使用租金、规费及可能存在的物业费、水、电等欠费和标的自身可能隐含存在的其他一切欠交或补交费用),具体情况请竞买人自行至相关单位查询,与拍卖人无涉。 竞买人具有完全民事行为能力和商业信誉的境内法人可参加竞买,法律另有规定除外。(特别提示:竞买人为自然人、企业法人的应在竟拍前向房屋所在地房屋管理部门核实后参与竞拍,对于不符合规定仍参与竞买的,人民法院将不予办理产权登记手续,相应法律后果自行承担)。 拍卖标的物的交付。拍卖标的物按照现状进行交付。财产权自拍卖成交确认裁定送达买受人时转移。 上述拍卖标的物,竞买的资格、拍卖公告及通知当事人等按照最高人民法院《关于民事执行中拍卖、变卖财产的规定》、《最高人民法院关于人民法院网络司法拍卖若干问题的规定》执行。 7、辅助咨询电话:13721027699。 | ||
拍卖工具
房屋价值7.1分
- 市场价值7.5
- 交易价值7.0
- 成交价值7.0
- 居住价值7.0
区位价值8.7分
- 小区品质7.0
- 区位交通9.2
- 教育资源10.0
- 生活服务10.0
同区域的法拍房
小区攻略
小区信息全方位解读
特点全面解析

小区概况
- 建筑年代
2000
- 物业类型
商业
- 房屋总数
4115户
- 楼栋总数
18栋
- 绿化率
35%
- 容积率
2.50
- 产权描述
50年产权
- 建筑类型
板塔结合
- 物业费
1.98元/㎡·月
- 区域
昌平 回龙观
- 物业公司
北京诚智慧中物业管理有限公司
- 停车位
共1549个停车位,比例:723:1549,地上车位723个;地下车位826个
- 开发商
北京东亚信鸿国际会展中心有限公司
周边配套
交通综合评分
查看全部超过北京81.6%的小区
- 地铁公交10.0
- 驾车出行10.0
- 39954元/㎡
本月挂牌均价
- 2.2%
环比上月
小区成交历史(3)
热门问题
问参与司法拍卖需要做哪些准备工作?
答 竞拍前请务必遵照《竞买公告》的要求,进行实地看样、调查标的物信息(如过户要求、违章情况等)、了解竞买资质、委托代理及尾款支付方式等内容。如违反相关规定,您的保证金可能会被法院划扣并产生其他司法处罚等后果,请理性参拍!问参与司法拍卖报名须知?
答 凡具备完全民事行为能力的公民、法人和其他组织均可参加竞买。如参与竞买人未开设相关拍卖站点账户,可委托代理人(具备完全民事行为能力的自然人)进行,但必须在竞价程序开始前向法院提交委托材料(随带营业执照副本、授权委托书、委托代理人身份证等),经法院确认后可参与竞买。问法拍房限购吗?
答 2021年12月31日之前,全国仅部分地区(例如北京)是将法拍房纳入了限购范围,但是在2021年12月19日最高人民法院发布《最高人民法院关于人民法院司法拍卖房产竞买人资格若干问题的规定》中明确,自2022年1月1日起法拍房全面纳入限购,人民法院组织的司法拍卖房产活动,受房产所在地限购政策约束的竞买人申请参与竞拍的,人民法院不予准许。 具体限购政策需参考房产所在地情况。问竞买保证金是什么?
答 竞买保证金是对竞买人可能出现的违约责任的救济行为,属于担保的范围,表现为竞买人支付一定数额的现金,作为参与竞买并遵守拍卖规则和各种竞买规定的担保。 《拍卖法》对于保证金的收取并未做出明确的规定,只是要求竞买人参与竞买应当办理竞买手续。但一些部门的文件要求参加竞买必须交纳竞买保证金。在实际操作中,拍卖企业也都要求竞买人缴纳竞买保证金,否则,将不能取得竞买资格。问如何“交保证金报名”?
答 请在拍品竞买站点详情页点击“交保证金报名”按钮进入报名流程并交纳保证金,报名前请先登录相关站点账号,具体操作参见相关站点要求。问保证金能退吗?
答 保证金在以下情况下是可以退的: (1)竞买人未成功竞拍商品:例如在竞拍过程中始终未出价、在竞拍过程中放弃加价等情况; (2)竞买人已交纳保证金,法院将拍品撤回、暂缓、中止拍卖。 竞拍结束后,保证金会被返还,但具体到账时间需要以银行信息提示为准。 如您交纳的竞拍保证金符合退还条件,但是未予退还,您可以联系相关竞买站点客服进行处理。问竞拍成功后如何支付剩余成交款?
答 如果用户竞拍成功,保证金将转化为部分成交款直接划转至法院指定账户,剩余未支付的成交款,需用户在法院规定时间内通过银行汇款或网银支付的方式缴纳至法院指定账户(法院账户信息及缴款时限具体见拍卖公告和竞拍须知)。问网银支付限额怎么办?
答 司法拍卖拍品往往涉及金额较大,为避免您在支付的过程中,遇到因限额而导致无法支付的问题,建议您提前尝试交保,如支付额度不足,请及时去相关银行办理转账以及支付限额的业务,最高限额以各银行的规定为准,大额转账方式需将汇付识别码填写在用途/备注/摘要栏。问法拍房拍下来就能正常使用吗?
答 房屋能否正常使用主要看是否有人居住在里面,主要关注以下两方面: 1、是否腾空? 如果房主或其他人住在里面,需要联系法院,确认法院是否负责腾空 2、有无租赁? 如有租赁,不影响过户,但需注意∶租赁合同不会因为拍卖结束而失效。如果房子租出去了,竞拍成功后到租赁结束这段时间的租金,可以与法院确认是否会结算给买受人;如果要解除租赁,需要自行与承租人协调。问法拍房能申请贷款吗?
答 大部分法院拍卖的房产是要求购买者一次性支付全款,但如今已经有部分城市开始进行了法拍房贷款的试点工作,关于拍卖标的房屋能否贷款,请仔细阅览标的物竞买站点详情页面。问拍下不想要有啥后果?
答 如果拍下后不想要了,保证金会被罚没。 除此之外,如果重新拍卖后的价格低于此次毁拍的金额,法院有权要求买受人补齐差价,具体以法院要求为准。
同城拍卖
即将开始位于北京市延庆区南浦路2号院4号楼二单元502号房产
90.53㎡ 延庆
变卖起拍价¥119万评估价 --2026-02-15 10:00:00开始
即将开始位于北京市延庆区南浦路2号院1号楼四单元502号房产
60.9㎡ 延庆
变卖起拍价¥78万评估价 --2026-02-15 10:00:00开始
即将开始位于北京市延庆区南浦路2号院5号楼三单元502号房产
90.22㎡ 延庆
变卖起拍价¥119万评估价 --2026-02-15 10:00:00开始
即将开始位于北京市延庆区南浦路2号院5号楼四单元202号房产
60.55㎡ 延庆
变卖起拍价¥77万评估价 --2026-02-15 10:00:00开始
即将开始房山区阜盛西街6号院7号楼2层2单元202
房山
一拍起拍价¥256万评估价 --2026-02-16 10:00:00开始
即将开始【永兴嘉园】| 北京市门头沟区永兴小区7号楼2层2单元201号
门头沟-永定
低于评估价25%一拍起拍价¥160万评估价¥214万2026-02-17 10:00:00开始
即将开始【万寿路乙15号院】| 关于位于北京市海淀区翠微中里18号楼1605房产
78.29㎡ 海淀-公主坟
一拍起拍价¥572万评估价 --2026-02-17 10:00:00开始
即将开始【燕化星城】| 北京市房山区燕化星城健德一里31楼1-402号
95.72㎡ 房山-阎村
低于评估价44%二拍起拍价¥90万评估价¥160万2026-02-18 10:00:00开始
即将开始【果园西里】| 北京市密云区果园西里9号楼4单元501号房产
73.89㎡ 密云区-密云果园
低于评估价28%变卖起拍价¥82万评估价¥114万2026-02-18 10:00:00开始
即将开始【黄寺大街小区】| 北京市西城区黄寺大街23号院5号楼-1层159车位一个
西城区-德胜门
二拍起拍价¥128万评估价 --2026-02-19 10:00:00开始
即将开始【小康家园】| 北京市大兴区旧宫镇小红门路136号3层301
94.6㎡ 大兴-亦庄
变卖起拍价¥90万评估价¥161万2026-02-19 10:00:00开始
即将开始【小康家园】| 北京市大兴区旧宫镇小红门路136号3层302
91.11㎡ 大兴-亦庄
变卖起拍价¥86万评估价¥154万2026-02-19 10:00:00开始
即将开始北京市昌平区立汤路60号院25号楼2层1单元201号房屋
89.12㎡ 昌平区
低于评估价36%变卖起拍价¥192万评估价¥300万2026-02-19 10:00:00开始
即将开始北京市昌平区北环里55号楼5层3单元503房屋
112.77㎡ 昌平区
低于评估价44%变卖起拍价¥148万评估价¥264万2026-02-19 10:00:00开始
即将开始【合立方街商铺】| 北京市昌平区立汤路60号院26号楼2层1单元201号房屋
89.2㎡ 昌平区-立水桥
低于评估价36%变卖起拍价¥192万评估价¥300万2026-02-19 10:00:00开始
即将开始【铂铭郡】| 房山区长阳镇嘉州水郡129号9层1单元902
87.62㎡ 房山区-窦店
低于评估价44%二拍起拍价¥111万评估价¥197万2026-02-20 10:00:00开始
即将开始【碧桂园小区C区】| 房山区长阳镇碧桂园50号楼6层2单元602
116.54㎡ 房山区-长阳
低于评估价44%二拍起拍价¥154万评估价¥276万2026-02-20 10:00:00开始
即将开始北京市海淀区清河西三旗建材生活西小区5号楼1层4门1号
61.2㎡ 海淀
低于评估价15%一拍起拍价¥216万评估价¥255万2026-02-21 10:00:00开始
即将开始北京市房山区辰光东路16号院9号楼7层707
房山
一拍起拍价¥110万评估价 --2026-02-21 10:00:00开始
即将开始【常营民族家园】| 北京市朝阳区常营中路1号院2号楼2层206号
88.75㎡ 朝阳区-常营
低于评估价14%变卖起拍价¥330万评估价¥386万2026-02-21 10:00:00开始


























































